New Instruction
Set Thorns Road, Sway, Lymington, Hampshire, SO41
3 bedroom house in Sway
£550,000 Freehold
- 3
- 2
- 1
PICTURES AND VIDEOS
KEY INFORMATION
- Tenure: Freehold
- Council Tax Band: D
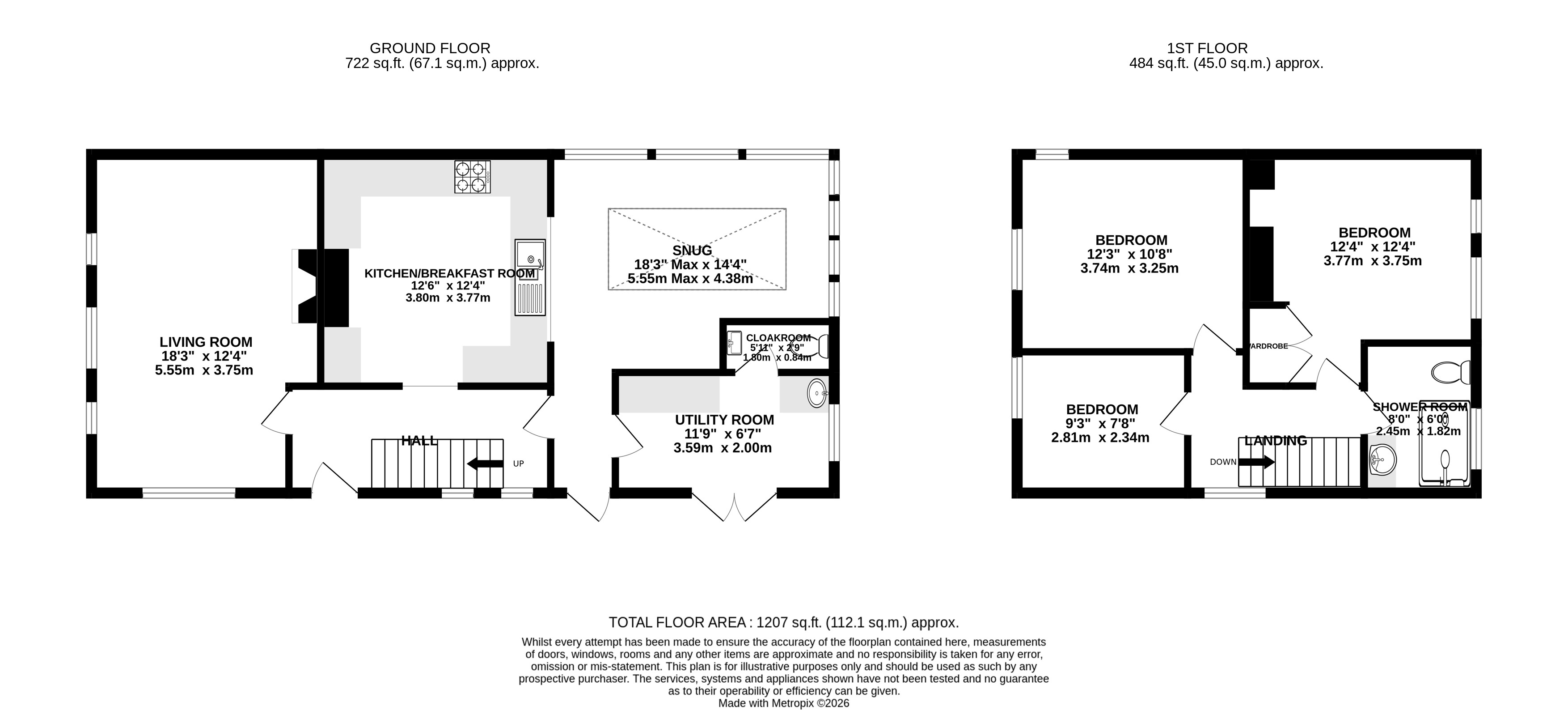
Description
Approach:
Covered entrance porch with brick step up to a part wooden, part double glazed door leading to the:
Entrance Hallway:
Italian porcelain flooring and underfloor heating throughout hallway space, single radiator, ceiling light point, under stairs storage cupboard.
Sitting room:
Double glazed windows to the side and rear, two double radiators, ceiling light point, fireplace with brick hearth and wood burning stove, wall mounted storage cupboard, carpet flooring, power points and television aerial points.
Snug/Second Sitting Room:
Double glazed windows to the front and side, Clearview wood burning stove ceiling spotlight points, Italian porcelain flooring, power points.
Utility Room/Study:
Ceiling light points, half bowl stainless steel sink with mono tap, power point. Door to the:
Downstairs Cloakroom:
Low level WC with concealed cistern, wash hand basin with mono tap over, laminate flooring.
Kitchen:
Quartz work surface in part to four walls. A range of base and drawer units with matching wall mounted base units. Wall mounted cupboard housing the Worcester gas central heating boiler, four ring Mielle gas hob with electric Mielle oven below, 1 1/2 bowl stainless steel sink with mono tap over, space and plumbing for washing machine, integrated fridge and integrated freezer, integrated dishwasher, ceiling spotlight points, power points, space for dining room table, storage cupboard to one side, Italian porcelain flooring with underfloor heating.
Stairs leading to the:
First Floor Landing:
Access to all first floor landing accommodation, double glazed window to the side, carpet flooring, ceiling light point, single radiator, power points. Loft Hatch giving Access to:
Attic/Loft room:
Has been converted, carpet flooring, ceiling spotlight with dimmer, with full central heating in attic.
Bedroom One/Principal Bedroom:
Two double glazed windows to the front and side, carpet flooring, single radiator, one ceiling light point, fitted double wardrobe, power points.
Bedroom Two:
Two double glazed windows to the side and to the rear, carpet flooring, ceiling light points, power points and space for cupboards and storage.
Bedroom Three:
Double glazed window to the front and rear, carpet flooring, ceiling light point, power point, single radiator. Door to:
Family Shower Room:
Walk in shower with shower attachment, vanity wash hand basin with mono taps over, wall mounted storage cupboard, low level WC, wall mounted ladder style radiator, tiling in part to all walls, Italian porcelain tiled flooring.
Outside:
The outside is approached by a single driveway, it is enclosed by fencing with side access to the property, it has been laid mainly to lawn with earth dug borders. There is a timber patio area at the front for alfresco dining. The side garden is laid mainly to lawn with a raised pond.
Garage:
There is a detached single garage with power and lighting.
Marketed by
Winkworth Milford On Sea
Properties for sale in Milford On SeaArrange a Viewing
Fill in the form below to arrange your property viewing.
Mortgage Calculator
Fill in the details below to estimate your monthly repayments:
Approximate monthly repayment:
For more information, please contact Winkworth's mortgage partner, Trinity Financial, on +44 (0)20 7267 9399 and speak to the Trinity team.
Stamp Duty Calculator
Fill in the details below to estimate your stamp duty
The above calculator above is for general interest only and should not be relied upon
Meet the Team
Our team are here to support and advise our customers when they need it most. We understand that buying, selling, letting or renting can be daunting and often emotionally meaningful. We are there, when it matters, to make the journey as stress-free as possible.
See all team members