Skip to main content

MyWinkworth

Sold

Picture No. 16
Picture No. 08
Picture No. 13
Picture No. 06
Picture No. 14
Picture No. 11
Picture No. 12
Picture No. 03
Picture No. 02
Picture No. 05
Picture No. 15
Picture No. 09
Picture No. 04
Picture No. 07
6/14

Senlac Road, Lee, London, SE12

3 bedroom house

Guide Price £450,000 Freehold

  • Bedrooms 3
  • Bathrooms 1
  • Reception rooms 2
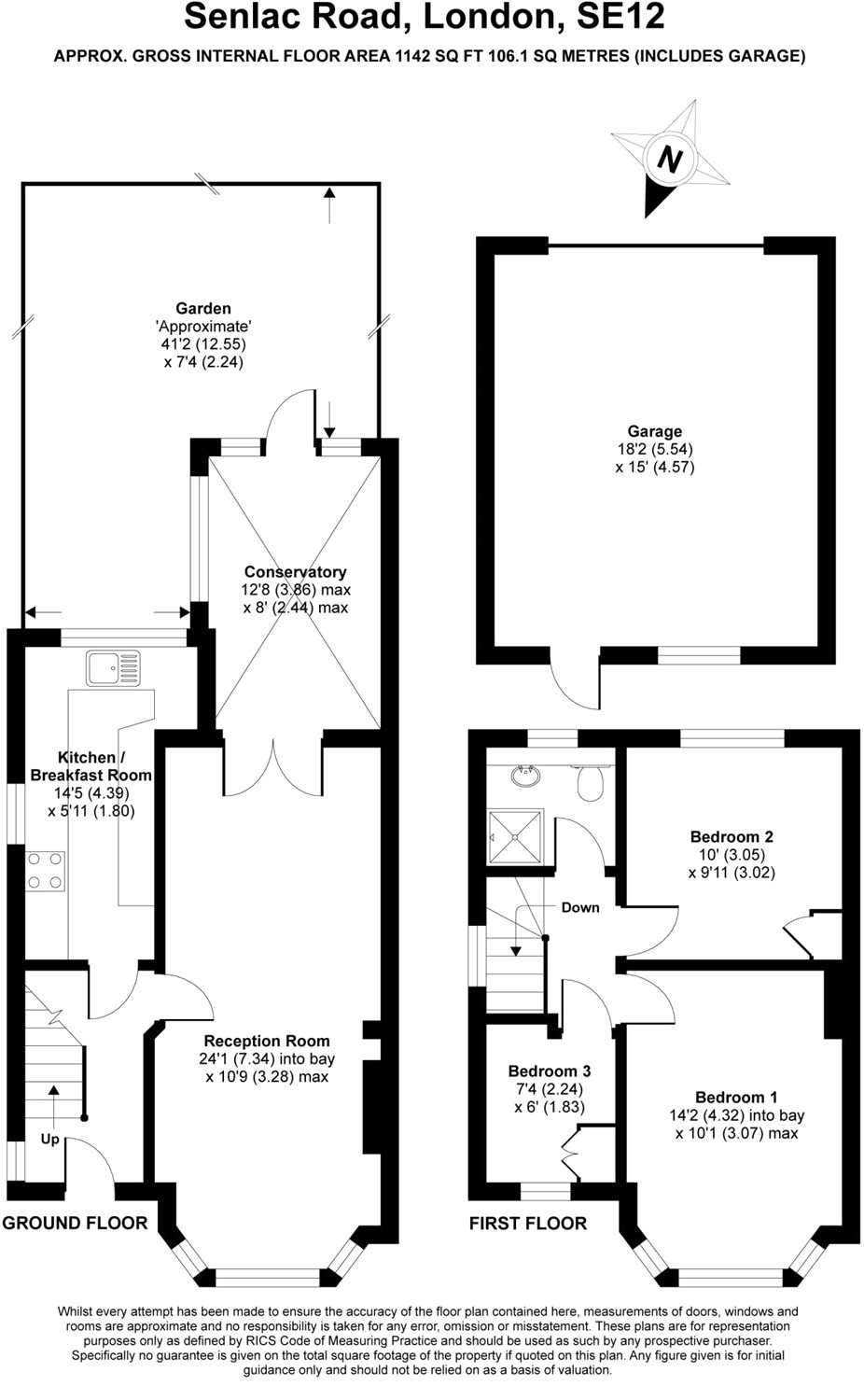
  • Floorplan

PICTURES AND VIDEOS

KEY FEATURES

  • semi-detached house
  • three bedrooms
  • through reception room
  • conservatory
  • modern bathroom
  • south facing garden
  • double garage
  • off street parking

KEY INFORMATION

  • Tenure: Freehold

Description

Guide Price £450,000-£475,000. A spacious three bedroom semi-detached 1930's house with a 40ft south facing garden and a large double garage in this quiet residential location close to Horn Park.

The property is in good decorative order although still with scope to enhance. Features include double glazed windows, wood flooring and gas fired central heating.

The accommodation comprises to the ground floor; a large galley kitchen with range style oven and a good sized 24ft through reception room with feature fireplace and leading to a large conservatory. Upstairs are three bedrooms including a large 14'2 x 10'1 master and a modern shower room with under floor heating.

To the rear is a beautiful 40ft south facing garden with side access, patio, lawn and flower beds. At the end of the garden is superb 18'2 x 15'5 double garage and there is off street parking to the front.

This is a lovely home and early viewing is advised. Virtual tours can be seen at winkworth.co.uk

Senlac is very well located for a number of local amenities including Mottingham Farm Riding School, the recently renovated Crown Tavern Gastro pub and the Eric Liddell Sports Centre. There are several highly sight after schools close by including Eltham College, Eltham College Junior School and Colfes. Grove Park Station is just 0.6 miles away and Lee station is 0.8 miles with both providing regular services into London Bridge, Cannon Street and Charing Cross.

Guide Price £450,000-£475,000.
Introduction text for the mortgage calculator

Mortgage Calculator

Fill in the details below to estimate your monthly repayments:

Approximate monthly repayment:

For more information, please contact Winkworth's mortgage partner, Trinity Financial, on +44 (0)20 7267 9399 and speak to the Trinity team.

Stamp Duty Calculator

Fill in the details below to estimate your stamp duty

The above calculator above is for general interest only and should not be relied upon

6/14
Picture No. 16
Picture No. 08
Picture No. 13
Picture No. 06
Picture No. 14
Picture No. 11
Picture No. 12
Picture No. 03
Picture No. 02
Picture No. 05
Picture No. 15
Picture No. 09
Picture No. 04
Picture No. 07

Meet the Team

As one of the oldest estate agents in Blackheath, ranked no 1 for both sales and lettings, our local knowledge and expertise is second to none. Our recently refurbished flagship office is found in the heart of the Village, directly opposite Blackheath Station, where you can call in for advice seven days a week.

See all team members

Got a question about this property?

This site is protected by reCAPTCHA and the Google Privacy Policy and Terms of Service apply.

More Properties like this

Video Tour

Shooters Hill Road, Blackheath, London, SE3

OIRO £2,500,000 Freehold

Video Tour

Under Offer

Manor Way, Blackheath, London, SE3

£2,250,000 Freehold

Virtual Tour

Under Offer

Westcombe Park Road, Blackheath, London, SE3

Guide Price £2,000,000 Freehold

North Park, Eltham, London, SE9

£2,000,000 Freehold

Video Tour

Under Offer

Ulundi Road, Blackheath, London, SE3

OIRO £2,000,000 Freehold

Video Tour

Coleraine Road, Blackheath, London, SE3

Guide Price £2,000,000 Freehold

Online Valuations Aren’t Worth The Paper They’re Printed On.

When online valuations don’t give you the whole picture - try Winkworth’s expert service. Get a free property appraisal. Accurate valuations from our local property experts. No obligation to list with Winkworth. Choose a time convenient for you with our online booking system.

Fill in your details and someone will be in touch soon:

You have provisionally booked a valuation for . Please confirm your details below

We don't have date info available for this property, but if you fill in your details below, someone will be in touch to arrange a date soon

Please fill in the required fields below marked with *

This site is protected by reCAPTCHA and the Google Privacy Policy and Terms of Service apply.