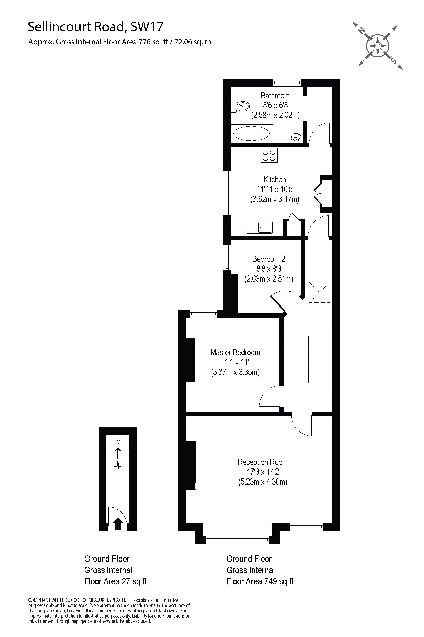
Sellincourt Road, London, SW17
2 bedroom maisonette in London
£550,000 Share of Freehold
- 2
- 1
- 1
PICTURES AND VIDEOS












KEY FEATURES
- Two Bedrooms
- Maisonette
- Wandsworth Council Tax Band: C
KEY INFORMATION
- Tenure: Share of Freehold
- Lease Length: 998 yrs left
Description
Both bedrooms are well-lit, each with a double-glazed window and engineered wood flooring. The bathroom is equally bright, offering tiled flooring and splashback, along with a modern three-piece suite and contemporary fixtures and fittings.
Sellincourt Road is a peaceful residential street in the heart of Tooting, surrounded by the area’s distinctive mix of character and community. The road is lined with attractive period properties, giving it plenty of charm, while just a short walk away you’ll find Tooting’s bustling high street with its cafés, restaurants, and independent shops. For transport, both Tooting Broadway (0.3miles) and Tooting Bec (0.9miles) Underground stations are within easy reach, providing straightforward links across London. Nearby green spaces add to the appeal, offering a balance of city convenience and a welcoming neighbourhood atmosphere.
Wandsworth Council Tax Band: C
Marketed by
Winkworth Tooting
Properties for sale in TootingArrange a Viewing
Fill in the form below to arrange your property viewing.
Mortgage Calculator
Fill in the details below to estimate your monthly repayments:
Approximate monthly repayment:
For more information, please contact Winkworth's mortgage partner, Trinity Financial, on +44 (0)20 7267 9399 and speak to the Trinity team.
Stamp Duty Calculator
Fill in the details below to estimate your stamp duty
The above calculator above is for general interest only and should not be relied upon
Meet the Team
Our team at Winkworth Tooting Estate Agents are here to support and advise our customers when they need it most. We understand that buying, selling, letting or renting can be daunting and often emotionally meaningful. We are there, when it matters, to make the journey as stress-free as possible.
See all team members