Skip to main content

MyWinkworth

External
Living Room
Kitchen
Kitchen
Conservatory
Downstairs Wc
Bedroom 1
Bedroom 2
Bedroom 3
Family Bathroom
Patio Area
Patio Area View
Garden
Garden
Picture No. 09
6/14

Sefton Avenue, Harrow, HA3

3 bedroom house

£575,000 Freehold

  • Bedrooms 3
  • Bathrooms 2
  • Reception rooms 1
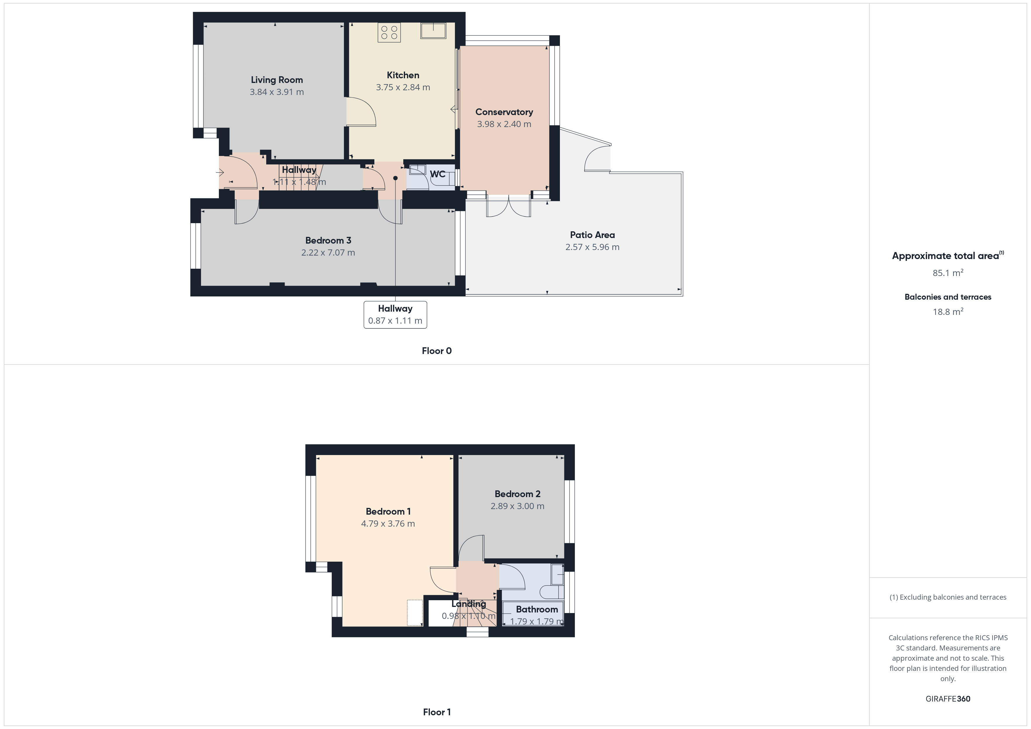
  • Dimensions 904 sq ft
    84 sq m
  • Floorplan

PICTURES AND VIDEOS

KEY FEATURES

  • Spacious three-bedroom home on a peaceful Harrow Weald street
  • Driveway providing secure off-street parking
  • Flexible layout with two bedrooms upstairs and one on the ground floor
  • Close to top local schools including Whitefriars, Salvatorian College & Cedars Manor
  • Private rear garden ideal for children, pets, or entertaining
  • Family bathroom plus convenient downstairs W/C for modern living

KEY INFORMATION

  • Tenure: Freehold
  • Council Tax Band: D
  • Local Authority: London Borough Of Harrow

Description

Set on a quiet residential street in the heart of Harrow Weald, this attractive three-bedroom home delivers space, flexibility, and an excellent lifestyle opportunity.

The layout works brilliantly for modern living, with two bedrooms upstairs and a versatile ground-floor bedroom ideal for a home office or guest space. A bright living room leads into a generous kitchen/diner, which flows directly into a sun-filled conservatory—creating a fantastic additional living area overlooking the garden and perfect for entertaining or family life. A family bathroom upstairs and a downstairs W/C add everyday convenience.

Outside, the large rear garden is a standout feature, offering plenty of room for children, social gatherings, or future potential.

The location is a major selling point, with highly regarded schools nearby including Whitefriars, Salvatorian College, and Cedars Manor. Headstone Lane and Harrow & Wealdstone stations are within easy walking distance, providing fast, direct links into central London via the Overground and Bakerloo line.

Offering generous living space, a private garden, and excellent transport connections, this is a superb opportunity in a popular North West London location—ideal for families and buyers looking to upsize without sacrificing connectivity.

Early viewing is highly recommended to fully appreciate the space, setting, and potential on offer—contact us today to arrange your appointment.

Tenure: Freehold
Council Tax Band: D (London Borough of Harrow)
EPC Rating: D

Marketed by

Winkworth Harrow

Properties for sale in Harrow

Arrange a Viewing

Fill in the form below to arrange your property viewing.

This site is protected by reCAPTCHA and the Google Privacy Policy and Terms of Service apply.
Introduction text for the mortgage calculator

Mortgage Calculator

Fill in the details below to estimate your monthly repayments:

Approximate monthly repayment:

For more information, please contact Winkworth's mortgage partner, Trinity Financial, on +44 (0)20 7267 9399 and speak to the Trinity team.

Stamp Duty Calculator

Fill in the details below to estimate your stamp duty

The above calculator above is for general interest only and should not be relied upon

6/14
External
Living Room
Kitchen
Kitchen
Conservatory
Downstairs Wc
Bedroom 1
Bedroom 2
Bedroom 3
Family Bathroom
Patio Area
Patio Area View
Garden
Garden
Picture No. 09

Meet the Team

Our team at Winkworth Harrow Estate Agents are here to support and advise our customers when they need it most. We understand that buying, selling, letting or renting can be daunting and often emotionally meaningful. We are there, when it matters, to make the journey as stress-free as possible.

See all team members

Got a question about this property?

This site is protected by reCAPTCHA and the Google Privacy Policy and Terms of Service apply.

More Properties like this

Duchess Crescent, Stanmore, HA7

£3,250,000

Virtual Tour

Sheridan Gardens, Harrow, HA3

Offers in excess of £1,000,000 Freehold

Under Offer

Kingshill Avenue, Harrow, HA3

£675,000

Virtual Tour

Harley Crescent, Harrow, Middx, HA1

Offers in excess of £625,000

Chestnut Grove, Wembley, HA0

Offers in excess of £625,000 Freehold

Virtual Tour

Under Offer

Shaftesbury Avenue, South Harrow, Harrow, HA2

£600,000 Freehold

Online Valuations Aren’t Worth The Paper They’re Printed On.

When online valuations don’t give you the whole picture - try Winkworth’s expert service. Get a free property appraisal. Accurate valuations from our local property experts. No obligation to list with Winkworth. Choose a time convenient for you with our online booking system.

Fill in your details and someone will be in touch soon:

You have provisionally booked a valuation for . Please confirm your details below

We don't have date info available for this property, but if you fill in your details below, someone will be in touch to arrange a date soon

Please fill in the required fields below marked with *

This site is protected by reCAPTCHA and the Google Privacy Policy and Terms of Service apply.