Seaward Avenue, Bournemouth, Dorset, BH6
3 bedroom house in Bournemouth
Guide Price £675,000 Freehold
- 3
- 1
- 2
PICTURES AND VIDEOS




















KEY FEATURES
- Marketed Solely By Winkworth Southbourne
- Three Double Bedrooms
- Kitchen / Breakfast Room
- Balcony From Primary Bedroom
- Enviable Location
- 300 Metres To Southbourne High Street
- 250 Metres To Southbourne Cliff Tops
- Off Road Parking
- EPC: D
- COUNCIL TAX: E
- FREEHOLD
KEY INFORMATION
- Tenure: Freehold
- Council Tax Band: E
Description
A three double bedroom detached family home with off road parking just 300 metres to Southbourne highstreet and Southbourne cliff tops
Guide Price £675,000 - £700,000
Why Seaward Avenue?
Seaward Avenue enjoys an enviable location just 300 meters to Southbourne high street which has been rejuvenated in recent years to include an array of independent cafés, restaurants and convenience shops. There are excellent transport links to Christchurch and Bournemouth along with Pokesdown train station for anyone looking to commute.
The cliff tops are also just 250 meters away where you can admire the breathtaking panoramic views from the Isle of Wight to Old Harry Rocks. Stroll down the zig zag to find miles of golden sandy beach and the promenade from Hengistbury Head to Sandbanks. There are a number of water sports available by Boscombe Pier with numerous beach side cafe, bars and restaurants to take in along the way. Whatever you decide, there is something for everyone to enjoy.
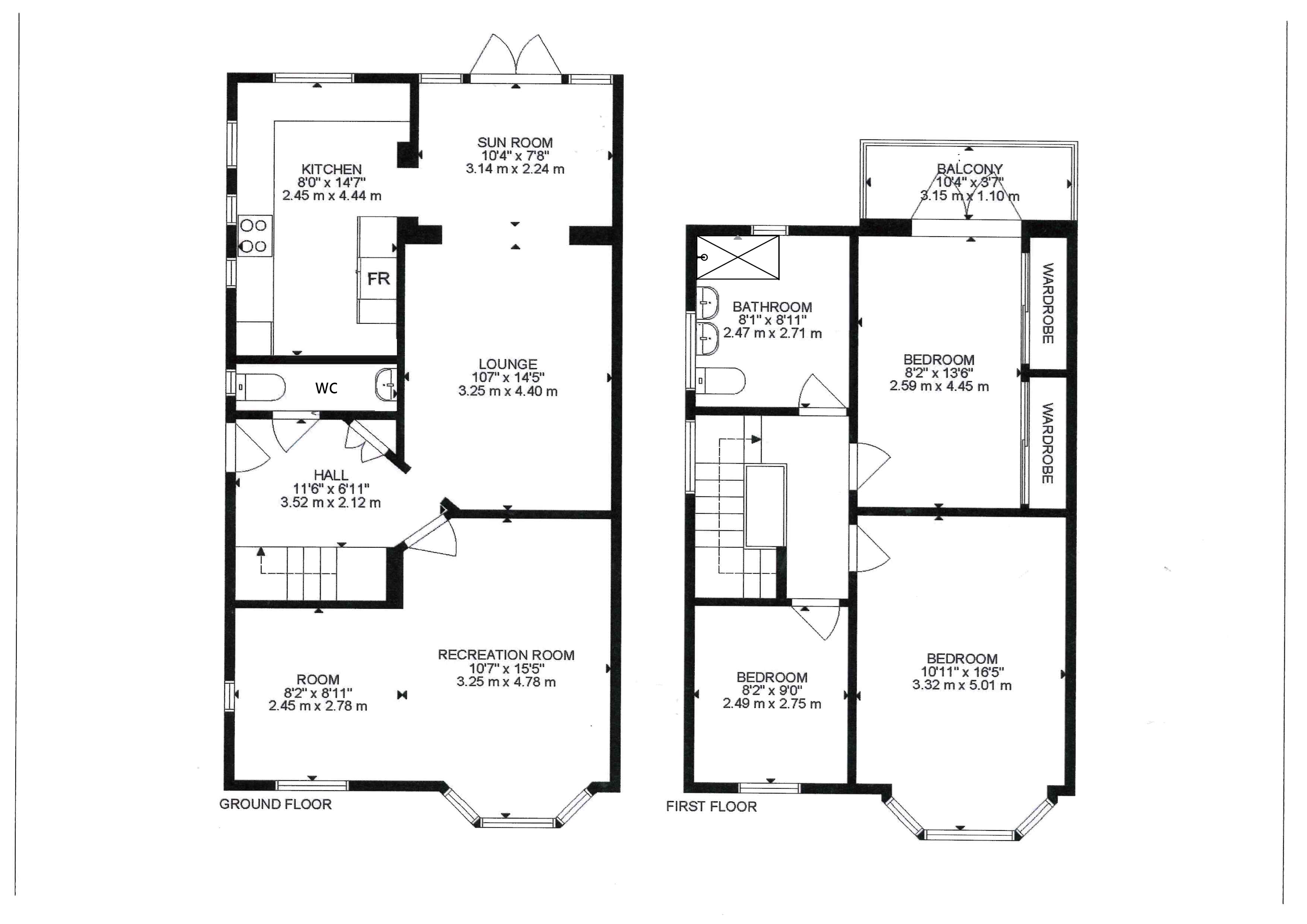
This family home has undergone extensive modernisation throughout by its current owners. The kitchen is well equipped with a range of modern cabinets, integrated appliances with counter tops to complement. An arch leads through to the spacious dining room which is flooded with natural light and double doors giving direct access to the rear garden. There is a further reception room and ground floor cloakroom
All three bedrooms are double in size with the primary benefiting from built in wardrobes and a balcony. The second bedroom enjoys sea glimpses. The family bathroom has been sumptuously fitted with a large walk in shower, double basin’s and wc with stylish walls and flooring to complement.
Outside the rear garden has been designed for low maintenance with a useful garden room with power and light currently used as a home gym.Off road parking for multiple vehicles.
Location
Southbourne is part of the beautiful coastline with award winning sandy beaches and a level promenade which stretches from Sandbanks to Hengistbury Head. Southbourne enjoys a vibrant and bustling high street which has been rejuvenated in recent years to include many independent cafés, restaurants, delicatessen and boutique style shops and good transport links. Also located nearby is the famous New Forest national park.
DISCLAIMER:
Winkworth wishes to inform prospective buyers that these particulars are a guide and act as information only. All our details are given in good faith and believed to be correct at the time of issue but they don't form part of an offer or contract. No Winkworth employee has authority to make or give any representation or warranty in relation to this property. All fixtures and fittings, whether fitted or not are deemed removable by the vendor unless stated otherwise and room sizes are measured between internal wall surfaces, including furnishings.
Marketed by
Winkworth Southbourne
Properties for sale in SouthbourneArrange a Viewing
Fill in the form below to arrange your property viewing.
Mortgage Calculator
Fill in the details below to estimate your monthly repayments:
Approximate monthly repayment:
For more information, please contact Winkworth's mortgage partner, Trinity Financial, on +44 (0)20 7267 9399 and speak to the Trinity team.
Stamp Duty Calculator
Fill in the details below to estimate your stamp duty
The above calculator above is for general interest only and should not be relied upon
Meet the Team
Our team at WInkworth Southbourne Estate Agents are here to support and advise our customers when they need it most. We understand that buying, selling, letting or renting can be daunting and often emotionally meaningful. We are there, when it matters, to make the journey as stress-free as possible.
See all team members