Skip to main content

MyWinkworth

Sold

Picture No. 06
Picture No. 10
Picture No. 08
Picture No. 07
Picture No. 04
Picture No. 02
Picture No. 03
Picture No. 05
Picture No. 09
Picture No. 11
6/14

Rowan Road, Brook Green, London, W6

3 bedroom house

£1,450,000 Freehold

  • Bedrooms 3
  • Bathrooms 1
  • Reception rooms 2
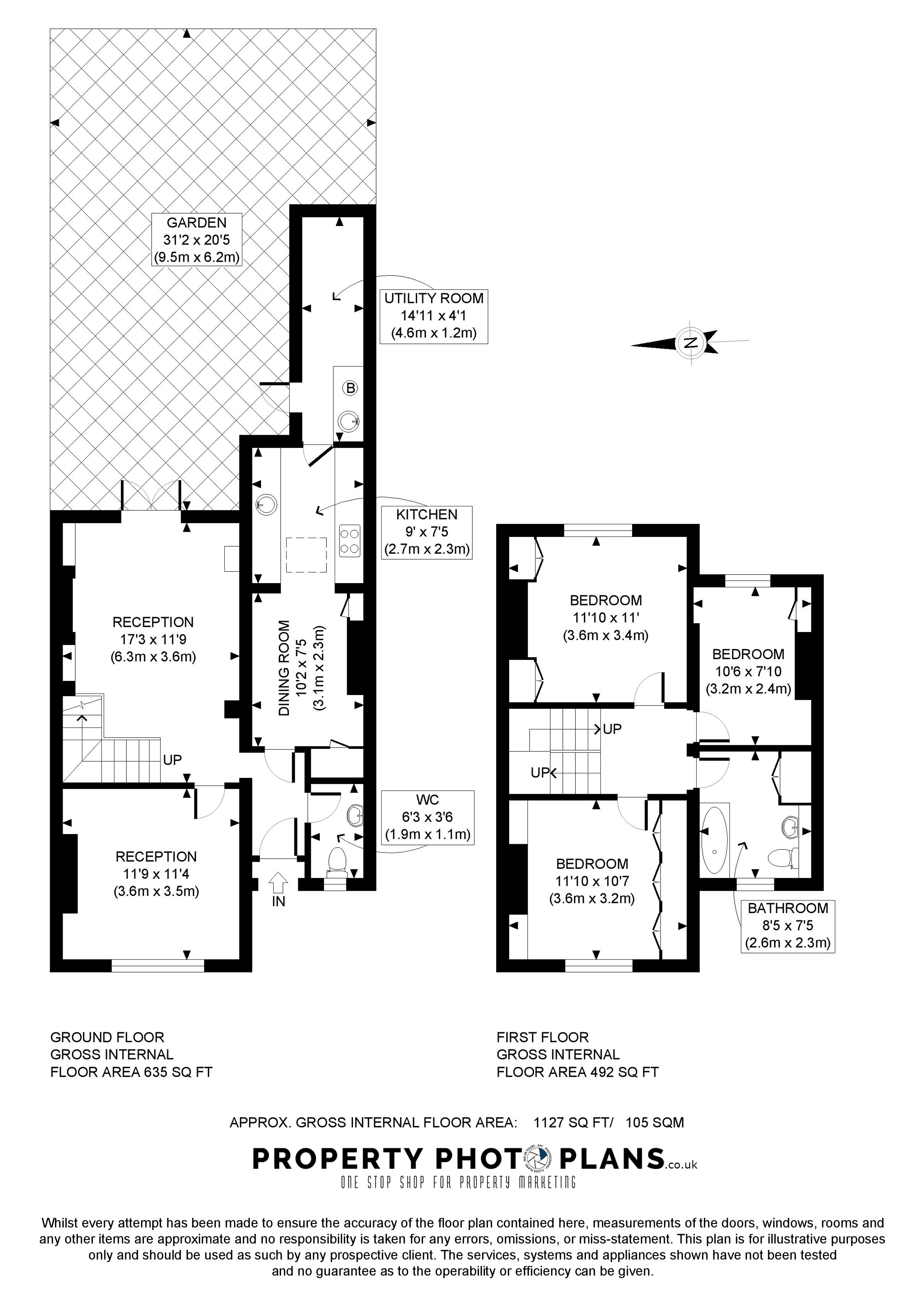
  • Floorplan

PICTURES AND VIDEOS

KEY FEATURES

  • 2 Reception Rooms
  • Kitchen / Dining Area
  • 3 Bedrooms
  • Bathroom
  • Cloakroom
  • Utility Room
  • Garden
  • 1127 Sq Ft / 105 Sq M
  • EPC Rating Band D

KEY INFORMATION

  • Tenure: Freehold
  • Council Tax Band: G
  • Local Authority: Hammersmith & Fulham

Description

A Grade II listed three bedroom Victorian cottage with private garden on this most sought after street just south of Brook Green.

A video viewing of this property is available. Please enquire for further details.

Whilst presented in good order throughout, the property offers the opportunity to reconfigure/extend, subject to the usual necessary consents being obtained. Accommodation currently comprises entrance hall, two reception rooms, dining room, cloakroom, kitchen and utility room on the ground floor; the first floor offers three bedrooms and bathroom. There are also private front and rear gardens.

Location

Rowan Road runs directly off Brook Green, ideal for the numerous amenities on offer including some superb pubs and restaurants. A number of excellent schools in both private and state sectors are also close to hand. The closest station is Hammersmith, where four Underground lines are on offer, including Piccadilly and District lines, whilst London Overground services are available at both Kensington Olympia and Shepherds Bush.
Introduction text for the mortgage calculator

Mortgage Calculator

Fill in the details below to estimate your monthly repayments:

Approximate monthly repayment:

For more information, please contact Winkworth's mortgage partner, Trinity Financial, on +44 (0)20 7267 9399 and speak to the Trinity team.

Stamp Duty Calculator

Fill in the details below to estimate your stamp duty

The above calculator above is for general interest only and should not be relied upon

6/14
Picture No. 06
Picture No. 10
Picture No. 08
Picture No. 07
Picture No. 04
Picture No. 02
Picture No. 03
Picture No. 05
Picture No. 09
Picture No. 11

Meet the Team

The office has been established on the corner of Brook Green for many years, where the team have in excess of 30 years' experience in the area, just with Winkworth. Our longevity has led to a great deal of repeat business, selling and renting the same properties many times over.

See all team members

Got a question about this property?

This site is protected by reCAPTCHA and the Google Privacy Policy and Terms of Service apply.

More Properties like this

New Instruction

Sinclair Road, London, W14

£2,350,000 Freehold

Under Offer

Applegarth Road, Brook Green, London, W14

£2,000,000 Freehold

Under Offer

Cromwell Grove, Brook Green, London, W6

£2,000,000 Freehold

Banim Street, London, W6

£995,000 Freehold

Online Valuations Aren’t Worth The Paper They’re Printed On.

When online valuations don’t give you the whole picture - try Winkworth’s expert service. Get a free property appraisal. Accurate valuations from our local property experts. No obligation to list with Winkworth. Choose a time convenient for you with our online booking system.

Fill in your details and someone will be in touch soon:

You have provisionally booked a valuation for . Please confirm your details below

We don't have date info available for this property, but if you fill in your details below, someone will be in touch to arrange a date soon

Please fill in the required fields below marked with *

This site is protected by reCAPTCHA and the Google Privacy Policy and Terms of Service apply.