Ronald Court, 95 Hadley Road, New Barnet, EN5
1 bedroom flat/apartment in 95 Hadley Road
Offers in excess of £300,000 Leasehold
- 1
- 1
- 1
PICTURES AND VIDEOS
 
                             
                             
                             
                             
                             
                             
                             
                            KEY INFORMATION
- Tenure: Leasehold
- Lease Length: 125 yrs left
Description
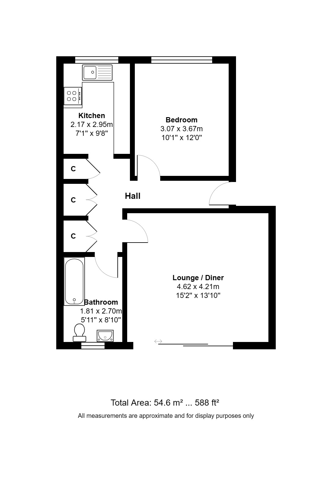
The accommodation includes a double bedroom, a good sized reception room with direct access to a well maintained communal garden, a separate fitted kitchen and bathroom.
The property also benefits from a long lease of approximately 125 years remaining.
Situated in this sought after residential road popular with families due to proximity to highly regarded schools, local and main shopping areas, transport connections (inc High Barnet tube station and New Barnet mainline station) as well as nearby recreational areas including Tudor Park and Hadley Woods.
Lease term: 189 years from 24 June 1962 (125 years remaining)
Service Charge: Approx. £1,000 p/a (provided by vendor)
Ground Rent: N/A
Building Insurance: £300 p/a
Council Tax band: C
Marketed by
Winkworth Barnet
Properties for sale in BarnetArrange a Viewing
Fill in the form below to arrange your property viewing.
Mortgage Calculator
Fill in the details below to estimate your monthly repayments:
Approximate monthly repayment:
For more information, please contact Winkworth's mortgage partner, Trinity Financial, on +44 (0)20 7267 9399 and speak to the Trinity team.
Stamp Duty Calculator
Fill in the details below to estimate your stamp duty
The above calculator above is for general interest only and should not be relied upon
Meet the Team
Paul leads an impressive team who have been together for over 25 years, live locally, went to local schools and really understand the area. We have a deep understanding of the Barnet area and provide honest advice to our clients.
See all team members 
                     
                                                 
                                                 
                                                 
                                                 
                                                