Skip to main content

MyWinkworth

Sold

Picture No. 04
Picture No. 12
Picture No. 09
Picture No. 07
Picture No. 16
Picture No. 19
Picture No. 15
Picture No. 14
Picture No. 01
Picture No. 02
Picture No. 03
Picture No. 05
Picture No. 06
Picture No. 08
Picture No. 10
Picture No. 11
Picture No. 13
Picture No. 17
Picture No. 18
6/14

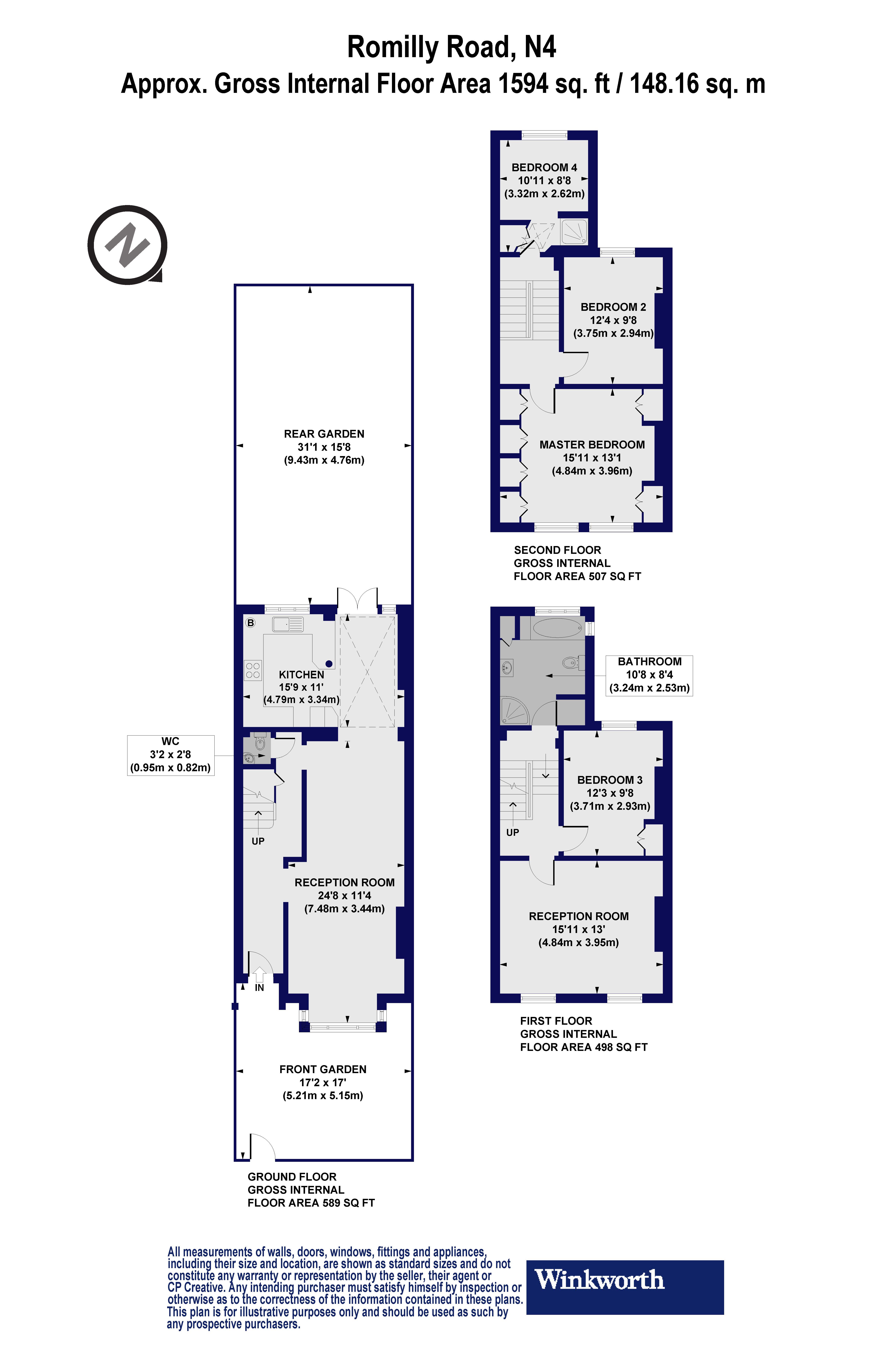
Romilly Road, London, N4

4 bedroom house in London

Offers in excess of £1,600,000 Freehold

  • Bedrooms 4
  • Bathrooms 2
  • Reception rooms 3
  • Floorplan

PICTURES AND VIDEOS

KEY INFORMATION

  • Tenure: Freehold
  • Council Tax Band: G
  • Local Authority: Islington Council

Description

A spacious, four bedroom, three reception room, two bathroom freehold home positioned on a handsome Victorian terrace moments from outstanding schools and transport links. Set across three floors, the property has tremendous charm sweeping through every level and would make an ideal setting for any growing family. Accommodation comprises of a wonderfully bright double reception room on the ground floor, leading through to a cleverly designed kitchen and dining area with the most delightful view out to a west facing, mature private garden. The first floor occupies a further reception room spanning the full width of the house, which could easily be a fifth bedroom, plus a good-sized double bedroom and sizeable family bathroom to the rear. The second floor presents an additional three bedrooms, all of which are doubles with the rear bedroom benefiting from a shower sweetly tucked away. The property is completed with a downstairs wc and the potential to extend further subject to planning permission.
Romilly Road is set in the popular 'Blackstock Triangle' known for its village atmosphere and tree lined streets. The property is located a short distance to a number of leading Islington schools and the Highbury Barn locale. For the outdoor enthusiast there are several sporting options nearby with Finsbury Park, Clissold Park and Highbury Fields offering wonderful spaces for recreation, and Gillespie Nature reserve and the Parkland walk for a leisurely stroll. Transport links are amongst some of the best in London with Arsenal (Piccadilly line) and the Finsbury Park hub (Victoria and Piccadilly lines and over ground services and substantial bus network) offering speedy access to Upper Street, the City, the West End, and International rail services at Kings Cross St Pancras.
Introduction text for the mortgage calculator

Mortgage Calculator

Fill in the details below to estimate your monthly repayments:

Approximate monthly repayment:

For more information, please contact Winkworth's mortgage partner, Trinity Financial, on +44 (0)20 7267 9399 and speak to the Trinity team.

Stamp Duty Calculator

Fill in the details below to estimate your stamp duty

The above calculator above is for general interest only and should not be relied upon

6/14
Picture No. 04
Picture No. 12
Picture No. 09
Picture No. 07
Picture No. 16
Picture No. 19
Picture No. 15
Picture No. 14
Picture No. 01
Picture No. 02
Picture No. 03
Picture No. 05
Picture No. 06
Picture No. 08
Picture No. 10
Picture No. 11
Picture No. 13
Picture No. 17
Picture No. 18

Meet the Team

From our office on Highbury Park, we pride ourselves on our unrivalled local knowledge. Many of the team here at Winkworth Highbury Estate Agents live locally and whether it's sales, lettings or property management, we're always striving to provide an unparalleled service and tailor it to your exacting needs.

See all team members

Got a question about this property?

This site is protected by reCAPTCHA and the Google Privacy Policy and Terms of Service apply.

More Properties like this

Video Tour

Wilberforce Road, London, N4

£1,990,000 Freehold

Under Offer

Herrick Road, London, N5

£1,715,000 Freehold

Under Offer

Plimsoll Road, London, N5

Offers in excess of £1,600,000 Freehold

Under Offer

Riversdale Road, Highbury, London, N5

£1,400,000 Freehold

Under Offer

Gillespie Road, London, N5

£1,350,000 Freehold

Under Offer

Laura Terrace, London, N4

£1,350,000 Freehold

Online Valuations Aren’t Worth The Paper They’re Printed On.

When online valuations don’t give you the whole picture - try Winkworth’s expert service. Get a free property appraisal. Accurate valuations from our local property experts. No obligation to list with Winkworth. Choose a time convenient for you with our online booking system.

Fill in your details and someone will be in touch soon:

You have provisionally booked a valuation for . Please confirm your details below

We don't have date info available for this property, but if you fill in your details below, someone will be in touch to arrange a date soon

Please fill in the required fields below marked with *

This site is protected by reCAPTCHA and the Google Privacy Policy and Terms of Service apply.