Skip to main content

MyWinkworth

Sold

Exterior Front
Principal Bedroom
Bedroom Two
Bathroom
Bedroom Two
Park View
Kitchen
Kitchen
Principal Bedroom
6/14

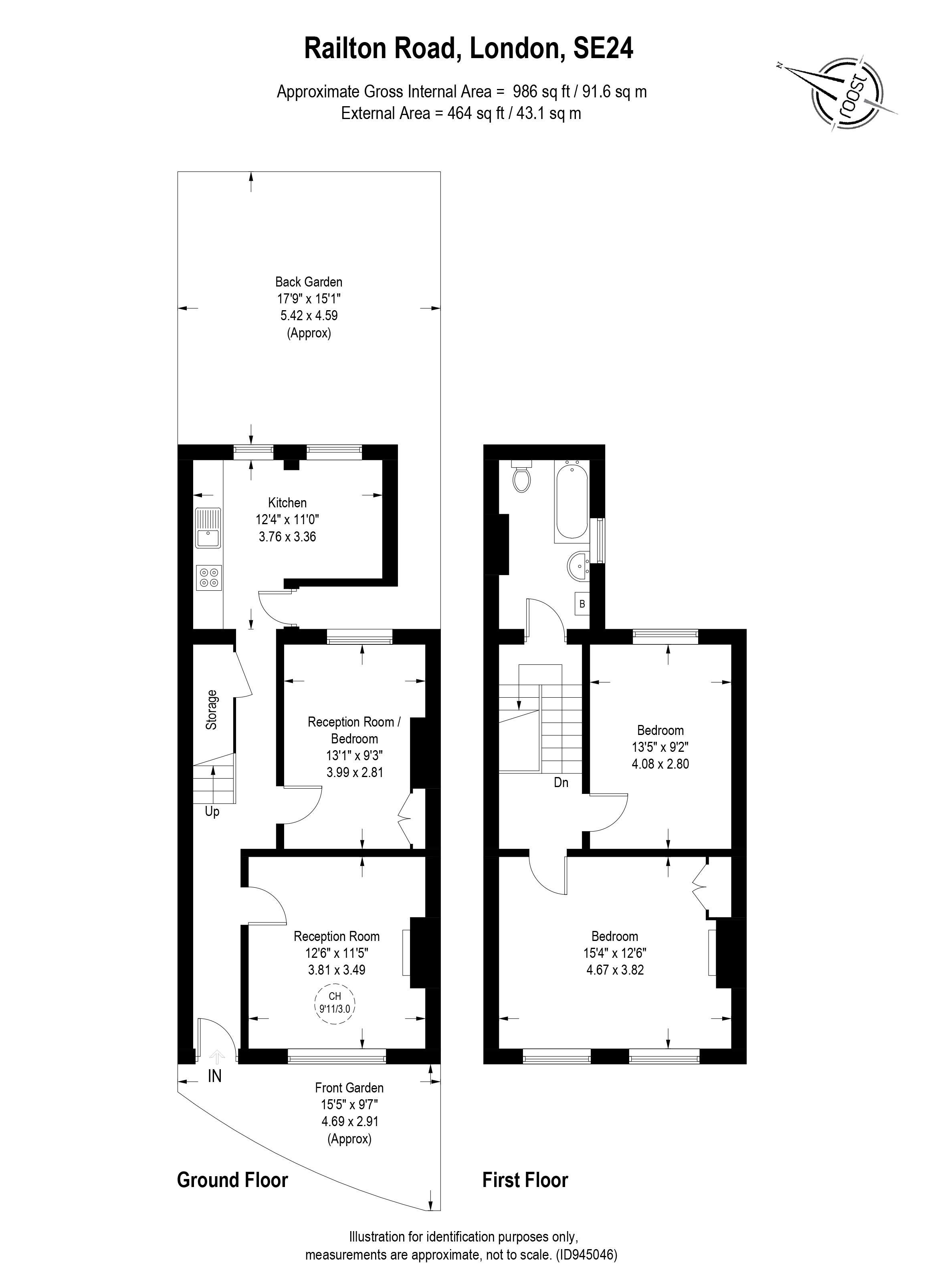
Railton Road, London, SE24

3 bedroom house in London

£750,000 Freehold

  • Bedrooms 3
  • Bathrooms 1
  • Reception rooms 1
  • Dimensions 986 sq ft
    91 sq m
  • Floorplan

PICTURES AND VIDEOS

KEY FEATURES

  • Victorian Terraced House
  • Two/Three Bedrooms
  • Family Bathroom
  • One/Two Reception Rooms
  • Fitted Kitchen
  • Garden
  • Chain Free
  • Council Tax Band: E (Lambeth)
  • Freehold
  • Scope to Extend STPP.
  • Sole Agent

KEY INFORMATION

  • Tenure: Freehold
  • Council Tax Band: E
  • Local Authority: Lambeth

Description

A great opportunity to create a wonderful family home. End of terrace three double bedroom Victorian house needing full refurbishment. The property is set on a quiet residential street of Herne Hill just a short walk to the station and Herne Hill Village and the lovely Brockwell Park.

Available exclusively through Winkworth, we are delighted to present this terraced house located within the heart of Herne Hill.
On the ground floor there is a reception room to front and a kitchen breakfast room to the rear of the house with a door to the garden. the second reception/double bedroom is located to the rear of the property.
On the first floor there are two large double bedrooms and a family bathroom, located on the half landing. Offered with no on-going chain, this property is ideal for those who value peace and quiet and are looking for a freehold house to update with their own touches.
Ideally located for the amenities and transport links of Herne Hill and Brixton tube and also only a short walk to the ever-popular Brockwell Park with its iconic Lido. The property is also within the catchment area for some good local primary/nursey schools.
This property also has the potential to extend into the loft STPP.

Location

Herne Hill
Introduction text for the mortgage calculator

Mortgage Calculator

Fill in the details below to estimate your monthly repayments:

Approximate monthly repayment:

For more information, please contact Winkworth's mortgage partner, Trinity Financial, on +44 (0)20 7267 9399 and speak to the Trinity team.

Stamp Duty Calculator

Fill in the details below to estimate your stamp duty

The above calculator above is for general interest only and should not be relied upon

6/14
Exterior Front
Principal Bedroom
Bedroom Two
Bathroom
Bedroom Two
Park View
Kitchen
Kitchen
Principal Bedroom

Meet the Team

Our team at Winkworth Herne Hill Estate Agents are here to support and advise our customers when they need it most. We understand that buying, selling, letting or renting can be daunting and often emotionally meaningful. We are there, when it matters, to make the journey as stress-free as possible.

See all team members

Got a question about this property?

This site is protected by reCAPTCHA and the Google Privacy Policy and Terms of Service apply.

More Properties like this

Ferndene Road, London, SE24

Offers in excess of £1,500,000 Freehold

Kellett Road, London, SW2

Offers in excess of £1,400,000 Freehold

Romola Road, London, SE24

£1,375,000 Freehold

Under Offer

Romola Road, London, SE24

£1,350,000 Freehold

Endymion Road, London, SW2

Offers in excess of £1,300,000 Freehold

Mauleverer Road, London, SW2

£1,150,000 Freehold

Online Valuations Aren’t Worth The Paper They’re Printed On.

When online valuations don’t give you the whole picture - try Winkworth’s expert service. Get a free property appraisal. Accurate valuations from our local property experts. No obligation to list with Winkworth. Choose a time convenient for you with our online booking system.

Fill in your details and someone will be in touch soon:

You have provisionally booked a valuation for . Please confirm your details below

We don't have date info available for this property, but if you fill in your details below, someone will be in touch to arrange a date soon

Please fill in the required fields below marked with *

This site is protected by reCAPTCHA and the Google Privacy Policy and Terms of Service apply.