Skip to main content

MyWinkworth

Sold

Picture No. 36
Picture No. 48
Picture No. 44
Picture No. 41
Picture No. 40
Picture No. 39
Picture No. 45
Picture No. 37
Picture No. 38
Picture No. 43
Picture No. 46
Picture No. 42
Picture No. 47
6/14

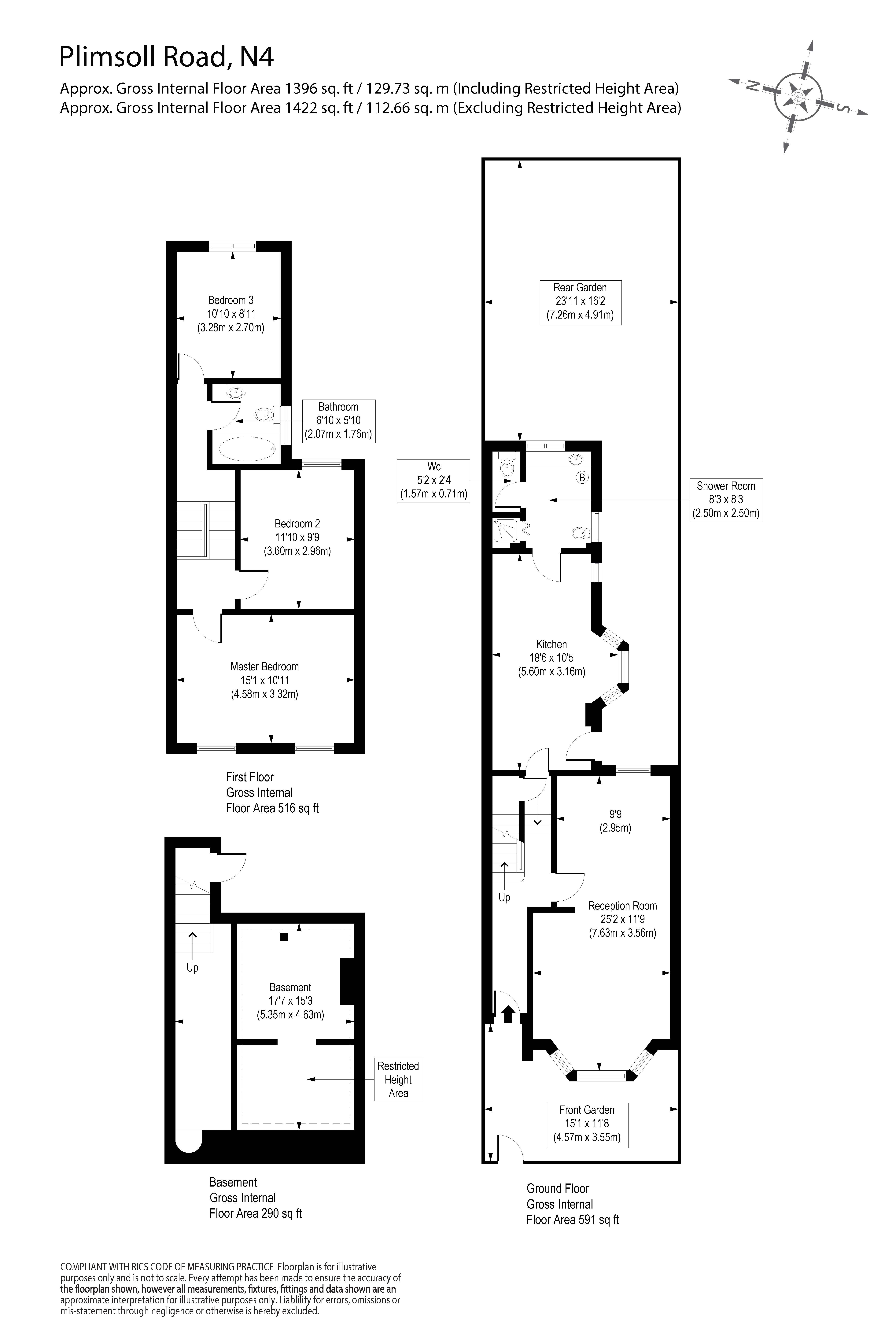
Plimsoll Road, Highbury, London, N4

3 bedroom house in Highbury

£1,250,000

  • Bedrooms 3
  • Bathrooms 1
  • Reception rooms 1
  • Dimensions 1114 sq ft
    103 sq m
  • Floorplan

PICTURES AND VIDEOS

KEY INFORMATION

  • Council Tax Band: E
  • Local Authority: Islington Council

Description

A charming three bedroom family home positioned on a quiet, residential street in Highbury. A generous double reception room offers lots of natural light through the bay window and provides a wonderful entertaining space. The kitchen is located to the rear of the house and offers ample space for dining although this could be rearranged to include a side return as many others in the street have done. Access is provided to a mature rear garden from the kitchen while basement storage is located from the hallway. Three double bedrooms and family sized bathroom are located over the upper floors although a further two rooms could be created with the addition of a dormer and pod subject to consent.

Plimsoll Road is a tree-lined street in the Blackstock triangle which is renowned for its neighbourly feel. Furthermore, the property falls within the catchment area of several local schools rated “Outstanding” by Ofsted, including the very popular Gillespie and Ambler Schools. The property is perfectly situated for an array of local amenities, including independent shops, restaurants and coffee shops, as well as being in easy reach of three local parks and Gillespie nature reserve. Upper Street is only a short distance away and transport links are some of the best around, with Arsenal station providing the Piccadilly line and Finsbury Park offering overground services (including the Thameslink network serving the City and Gatwick Airport) and underground services including the Victoria line. Drayton Park also provides direct links to Moorgate, whilst numerous bus routes offer effortless transport to the City and West End.
Introduction text for the mortgage calculator

Mortgage Calculator

Fill in the details below to estimate your monthly repayments:

Approximate monthly repayment:

For more information, please contact Winkworth's mortgage partner, Trinity Financial, on +44 (0)20 7267 9399 and speak to the Trinity team.

Stamp Duty Calculator

Fill in the details below to estimate your stamp duty

The above calculator above is for general interest only and should not be relied upon

6/14
Picture No. 36
Picture No. 48
Picture No. 44
Picture No. 41
Picture No. 40
Picture No. 39
Picture No. 45
Picture No. 37
Picture No. 38
Picture No. 43
Picture No. 46
Picture No. 42
Picture No. 47

Meet the Team

From our office on Highbury Park, we pride ourselves on our unrivalled local knowledge. Many of the team here at Winkworth Highbury Estate Agents live locally and whether it's sales, lettings or property management, we're always striving to provide an unparalleled service and tailor it to your exacting needs.

See all team members

Got a question about this property?

This site is protected by reCAPTCHA and the Google Privacy Policy and Terms of Service apply.

More Properties like this

Video Tour

Wilberforce Road, London, N4

£1,990,000 Freehold

Under Offer

Herrick Road, London, N5

£1,715,000 Freehold

Under Offer

Plimsoll Road, London, N5

Offers in excess of £1,600,000 Freehold

Under Offer

Riversdale Road, Highbury, London, N5

£1,400,000 Freehold

Under Offer

Gillespie Road, London, N5

£1,350,000 Freehold

Under Offer

Laura Terrace, London, N4

£1,350,000 Freehold

Online Valuations Aren’t Worth The Paper They’re Printed On.

When online valuations don’t give you the whole picture - try Winkworth’s expert service. Get a free property appraisal. Accurate valuations from our local property experts. No obligation to list with Winkworth. Choose a time convenient for you with our online booking system.

Fill in your details and someone will be in touch soon:

You have provisionally booked a valuation for . Please confirm your details below

We don't have date info available for this property, but if you fill in your details below, someone will be in touch to arrange a date soon

Please fill in the required fields below marked with *

This site is protected by reCAPTCHA and the Google Privacy Policy and Terms of Service apply.