Skip to main content

MyWinkworth

Picture No. 14
Picture No. 24
Picture No. 22
Picture No. 23
Picture No. 19
Picture No. 20
Picture No. 15
Picture No. 16
Picture No. 17
Picture No. 18
Picture No. 25
Picture No. 21
6/14

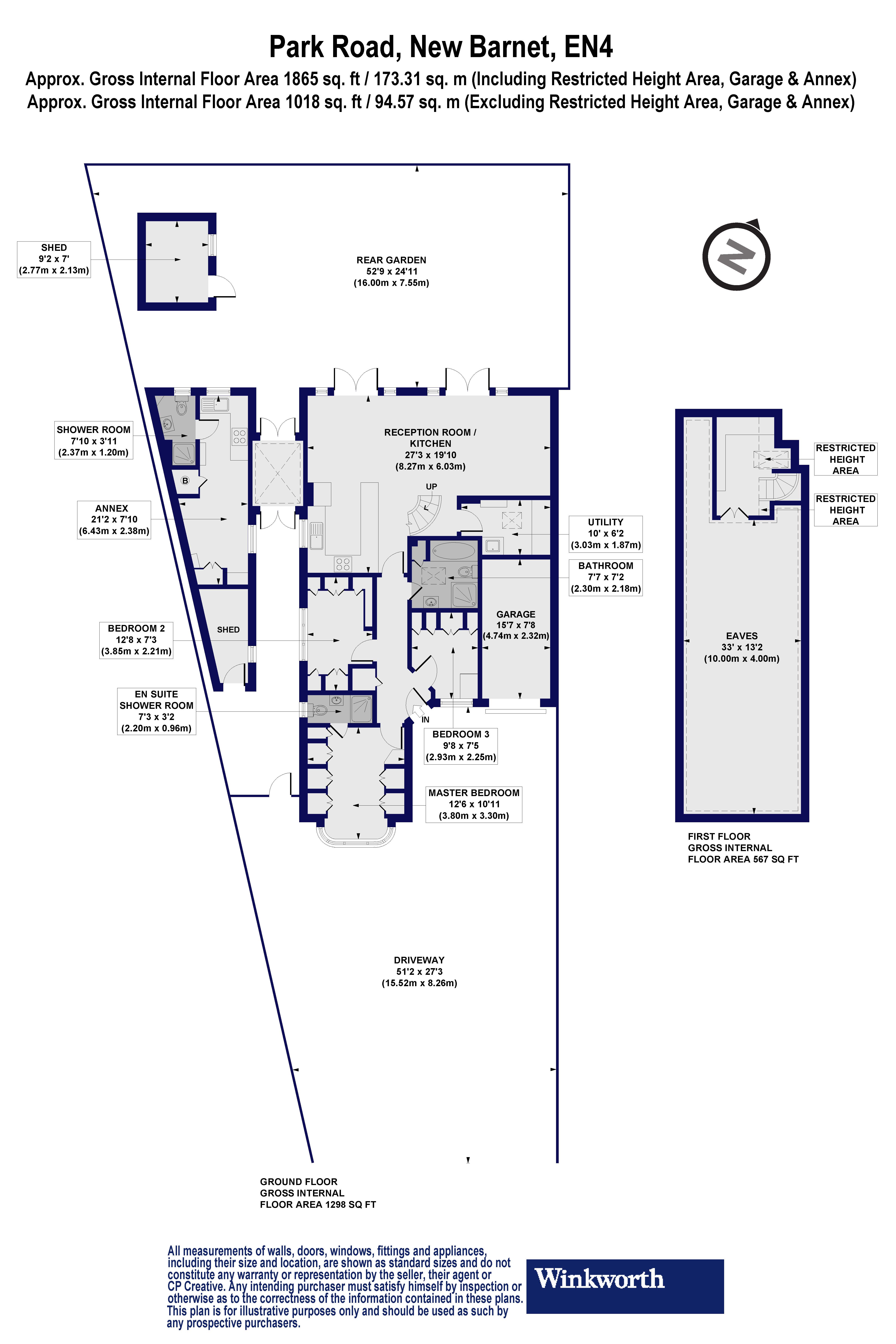
Park Road, New Barnet, EN4

3 bedroom bungalow in New Barnet

OIRO £850,000 Freehold

  • Bedrooms 3
  • Bathrooms 3
  • Reception rooms 1
  • Dimensions 1865 sq ft
    173 sq m
  • Floorplan

PICTURES AND VIDEOS

KEY INFORMATION

  • Tenure: Freehold

Description

A detached three/four bedroom three bathroom bungalow which has been the subject of significant improvement and extension by the present owner.

The accommodation is light and spacious and includes large through lounge/dining room which opens to a modern fitted kitchen and a separate utility room. There is a bespoke spiral staircase which leads to the first floor where you will find a separate study with electric Velux windows. There are three main bedrooms with the master bedroom benefitting from en-suite. In addition there is a covered walkway which connects the main accommodation to an annex which itself has its own kitchen area, lounge and a separate shower room/wc as well as independent gas central heating boiler. There is a further room which could be connected via a stud wall (currently used as storage space.

Externally: There is a good sized rear garden of approximately 50ft which is well maintained. At the front there is off street parking for a number of vehicles and access to the integral garage.

Situated in this sought after location popular with families due to proximity to highly regarded schools, transport connections (both tube and mainline stations) local and main shopping areas and a choice of nearby recreational spaces and moments away from the London Loop with access to Trent Country Park.

Marketed by

Winkworth Barnet

Properties for sale in Barnet

Arrange a Viewing

Fill in the form below to arrange your property viewing.

This site is protected by reCAPTCHA and the Google Privacy Policy and Terms of Service apply.
Introduction text for the mortgage calculator

Mortgage Calculator

Fill in the details below to estimate your monthly repayments:

Approximate monthly repayment:

For more information, please contact Winkworth's mortgage partner, Trinity Financial, on +44 (0)20 7267 9399 and speak to the Trinity team.

Stamp Duty Calculator

Fill in the details below to estimate your stamp duty

The above calculator above is for general interest only and should not be relied upon

6/14
Picture No. 14
Picture No. 24
Picture No. 22
Picture No. 23
Picture No. 19
Picture No. 20
Picture No. 15
Picture No. 16
Picture No. 17
Picture No. 18
Picture No. 25
Picture No. 21

Meet the Team

Paul leads an impressive team who have been together for over 25 years, live locally, went to local schools and really understand the area. We have a deep understanding of the Barnet area and provide honest advice to our clients.

See all team members

Got a question about this property?

This site is protected by reCAPTCHA and the Google Privacy Policy and Terms of Service apply.

More Properties like this

Woodfall Avenue, High Barnet, EN5

Offers in excess of £650,000 Freehold

Online Valuations Aren’t Worth The Paper They’re Printed On.

When online valuations don’t give you the whole picture - try Winkworth’s expert service. Get a free property appraisal. Accurate valuations from our local property experts. No obligation to list with Winkworth. Choose a time convenient for you with our online booking system.

Fill in your details and someone will be in touch soon:

You have provisionally booked a valuation for . Please confirm your details below

We don't have date info available for this property, but if you fill in your details below, someone will be in touch to arrange a date soon

Please fill in the required fields below marked with *

This site is protected by reCAPTCHA and the Google Privacy Policy and Terms of Service apply.