Skip to main content

MyWinkworth

Kitchen
Kitchen
Kitchen
Reception Room
Reception Room
Garden
Garden
Garden Room
Bedroom One
Bedroom One
Bedroom Two
Bathroom
External
6/14

Oglander Road, Peckham Rye, London, SE15

2 bedroom maisonette

Offers in excess of £700,000 Leasehold

  • Bedrooms 2
  • Bathrooms 1
  • Reception rooms 1
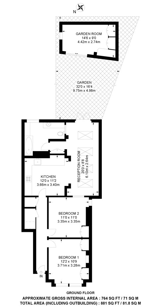
  • Floorplan

PICTURES AND VIDEOS

KEY FEATURES

  • Quiet residential street in Peckham Rye
  • Ground floor 2-bed maisonette with private entrance
  • Two spacious double bedrooms
  • Modern kitchen with smart layout
  • Private south-facing garden
  • Insulated garden room — ideal office or studio

KEY INFORMATION

  • Tenure: Leasehold
  • Lease Length: 172 yrs left
  • Ground rent: £10.00 per annum
  • Service charge: £800.00 per annum
  • Council Tax Band: B
  • Local Authority: Southwark Council

Description

Situated on a quiet residential street in the heart of Peckham Rye, this beautifully maintained 2-bedroom ground floor maisonette offers a rare combination of period charm, private outdoor space, and flexible living.

The property features two generous double bedrooms, a stylish living area, a modern kitchen, and a contemporary bathroom, all arranged over the ground floor with its own private entrance. High ceilings and large windows create a light, airy feel throughout.

To the rear, a private south-facing garden provides a peaceful escape, perfect for entertaining or unwinding. The fully insulated garden room adds valuable extra space — ideal for a home office, studio, or guest room.

Perfectly positioned between Peckham Rye Park and Bellenden Road, with its popular cafés, shops, and restaurants, the location also offers excellent transport links via Peckham Rye and East Dulwich stations for swift access to central London.

AGENT NOTES:

Mobile phone coverage:
EE (Good outdoor and variable in-home)
Three (Good outdoor and in-home)
O2 (Good outdoor and in-home)
Vodaphone (Good outdoor and variable in-home)

(Potential purchasers are advised to seek their own advice as to the suitability of the services and mobile phone coverage, the above is for guidance only.)

Available broadband: Ultrafast Broadband: FTTP
Superfast Broadband: FTTC
Standard Broadband: ADSL
Networks in your area: Openreach
(Information supplied by Ofcom)

Flood Risk: High risk of surface water flooding / Very low risk river and sea flooding (Information supplied by gov.uk and purchasers are advised to seek their own legal advice)

Tenure: Leasehold

Local Council: Southwark / Tax Band: B
EPC Rating:

Floor plan: Whilst every attempt has been made to ensure accuracy, all measurements are approximate and not to scale. The floor plan is for illustrative purposes only.

Marketed by

Winkworth Dulwich

Properties for sale in Dulwich

Arrange a Viewing

Fill in the form below to arrange your property viewing.

This site is protected by reCAPTCHA and the Google Privacy Policy and Terms of Service apply.
Introduction text for the mortgage calculator

Mortgage Calculator

Fill in the details below to estimate your monthly repayments:

Approximate monthly repayment:

For more information, please contact Winkworth's mortgage partner, Trinity Financial, on +44 (0)20 7267 9399 and speak to the Trinity team.

Stamp Duty Calculator

Fill in the details below to estimate your stamp duty

The above calculator above is for general interest only and should not be relied upon

6/14
Kitchen
Kitchen
Kitchen
Reception Room
Reception Room
Garden
Garden
Garden Room
Bedroom One
Bedroom One
Bedroom Two
Bathroom
External

Meet the Team

Our team at Winkworth Dulwich Estate Agents are here to support and advise our customers when they need it most. We understand that buying, selling, letting or renting can be daunting and often emotionally meaningful. We are there, when it matters, to make the journey as stress-free as possible.

See all team members

Got a question about this property?

This site is protected by reCAPTCHA and the Google Privacy Policy and Terms of Service apply.

More Properties like this

Under Offer

Lordship Lane, East Dulwich, London, SE22

Offers in excess of £800,000 Share of Freehold

Under Offer

Crystal Palace Road, East Dulwich, London, SE22

£775,000 Share of Freehold

Crebor Street, East Dulwich, London, SE22

£750,000 Share of Freehold

Under Offer

Lytcott Grove, East Dulwich, London, SE22

£750,000 Leasehold

Under Offer

Friern Road, East Dulwich, London, SE22

£750,000 Share of Freehold

New Instruction

Lyndhurst Way, Peckham Rye, London, SE15

£700,000 Share of Freehold

Online Valuations Aren’t Worth The Paper They’re Printed On.

When online valuations don’t give you the whole picture - try Winkworth’s expert service. Get a free property appraisal. Accurate valuations from our local property experts. No obligation to list with Winkworth. Choose a time convenient for you with our online booking system.

Fill in your details and someone will be in touch soon:

You have provisionally booked a valuation for . Please confirm your details below

We don't have date info available for this property, but if you fill in your details below, someone will be in touch to arrange a date soon

Please fill in the required fields below marked with *

This site is protected by reCAPTCHA and the Google Privacy Policy and Terms of Service apply.