New Instruction
Lyndhurst Way, Peckham Rye, London, SE15
2 bedroom maisonette
£700,000 Share of Freehold
- 2
- 1
- 1
PICTURES AND VIDEOS













KEY FEATURES
- Two-bedroom split-level maisonette
- Set within a mid-terrace Victorian townhouse
- Private front door access
- Large open-plan kitchen/reception room
- Polished concrete flooring and built-in appliances
- Excellent natural light throughout
- Spacious family bathroom
- Versatile garden home office
- Recently refurbished and well maintained
- Private garden space
- Close to Peckham Rye Station and Bellenden Road
- Located within sought-after school catchments
KEY INFORMATION
- Tenure: Share of Freehold
- Council Tax Band: C
- Local Authority: Southwark Council
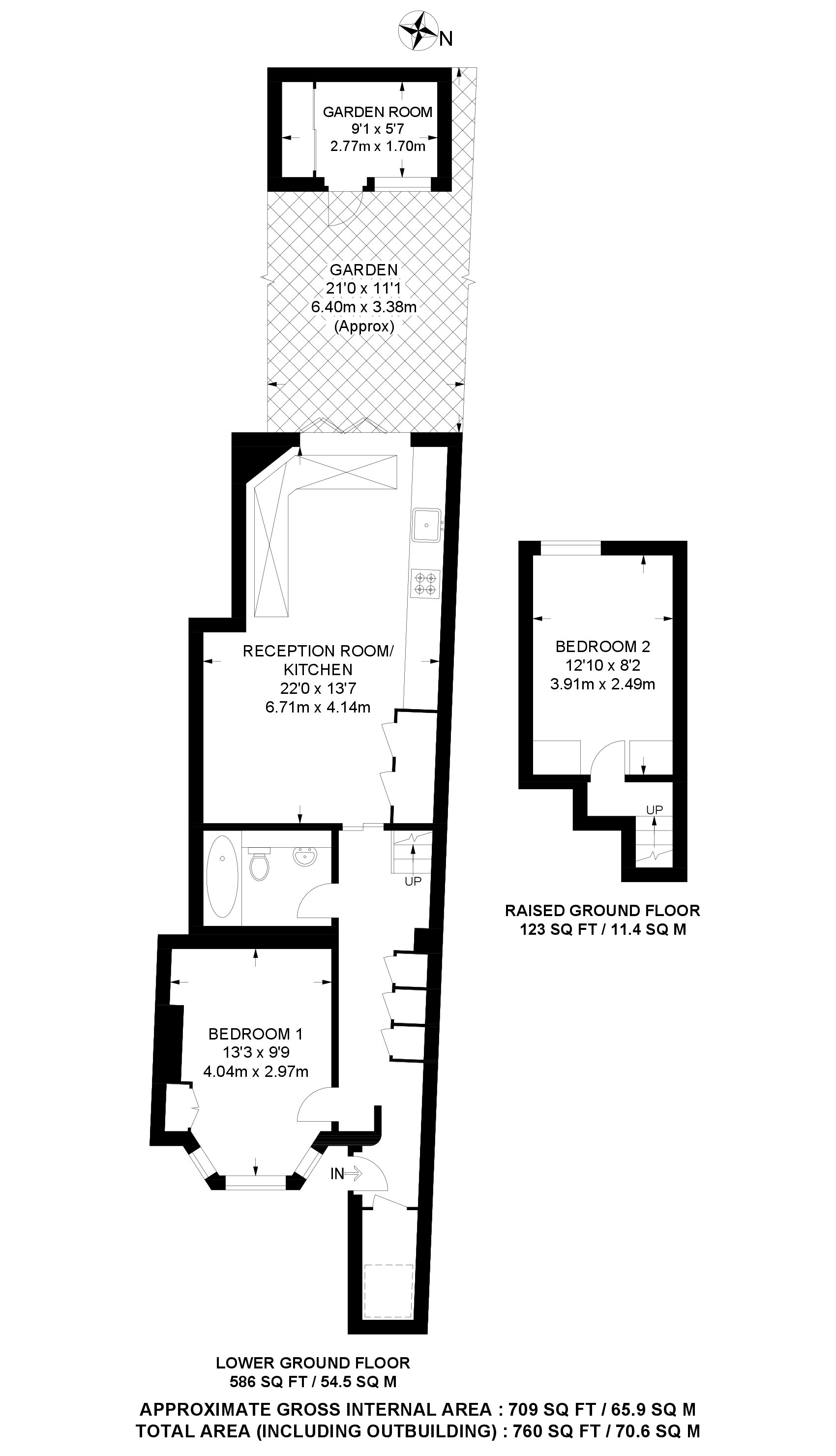
Description
Accessed via its own front door, this property is presented across the lower ground and raised ground floor of the building. Caringly refurbished by the existing owner and offered in great condition, the property comprises a large open-plan kitchen/reception to rear, complete with polished concrete flooring, fully fitted kitchen, built in appliances and tons of natural light. The property further comprises a spacious double bedroom to front and one on the first floor. Further boasting a spacious family bathroom as well as a highly versatile home office in the garden.
The location provides easy access to Bellenden Road and Peckham Rye station with easy links into nearly all major London terminal Stations. School catchments are in abundance with the Belham for primary, The Villa Nursery, St Johns and St Clements primary amongst many more.
AGENT NOTES:
Mobile phone coverage:
EE (Good outdoor and in-hom)
Three (Good outdoor and in-home)
O2 (Good outdoor and variable in-home)
Vodaphone (Good outdoor and variable in-home)
(Potential purchasers are advised to seek their own advice as to the suitability of the services and mobile phone coverage, the above is for guidance only.)
Available broadband: Ultrafast Broadband: FTTP
Standard Broadband: ADSL
Networks in your area: Openreach, Hyperoptic, Virgin Media
(Information supplied by Ofcom)
Flood Risk: Medium risk of surface water flooding / Very low risk river and sea flooding (Information supplied by gov.uk and purchasers are advised to seek their own legal advice)
Tenure: Leasehold
Local Council: Southwark / Tax Band: C
EPC Rating: C
Floor plan: Whilst every attempt has been made to ensure accuracy, all measurements are approximate and not to scale. The floor plan is for illustrative purposes only.
Marketed by
Winkworth Dulwich
Properties for sale in DulwichArrange a Viewing
Fill in the form below to arrange your property viewing.
Mortgage Calculator
Fill in the details below to estimate your monthly repayments:
Approximate monthly repayment:
For more information, please contact Winkworth's mortgage partner, Trinity Financial, on +44 (0)20 7267 9399 and speak to the Trinity team.
Stamp Duty Calculator
Fill in the details below to estimate your stamp duty
The above calculator above is for general interest only and should not be relied upon
Meet the Team
Our team at Winkworth Dulwich Estate Agents are here to support and advise our customers when they need it most. We understand that buying, selling, letting or renting can be daunting and often emotionally meaningful. We are there, when it matters, to make the journey as stress-free as possible.
See all team members