Skip to main content

MyWinkworth

New Instruction

Kitchen
Kicthen
Reception
Reception
Bedroom
External
Bathroom
6/14

Oakhurst Grove, East Dulwich, London, SE22

1 bedroom flat/apartment

£450,000 Share of Freehold

  • Bedrooms 1
  • Bathrooms 1
  • Reception rooms 1
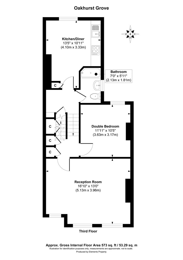
  • Floorplan

PICTURES AND VIDEOS

KEY FEATURES

  • Bright and well-proportioned one-bedroom flat set on the second floor of a well-maintained building
  • Spacious front-facing reception room with excellent natural light and room for living and dining
  • Stylish separate kitchen/diner with integrated appliances and space for a dining table
  • Popular residential location close to local shops, cafés, amenities, and transport links

KEY INFORMATION

  • Tenure: Share of Freehold
  • Council Tax Band: B
  • Local Authority: London Borough Of Southwark

Description

Set on the second floor of a well-maintained residential building, this bright and well-proportioned one-bedroom flat offers a thoughtful layout with generous room sizes, ideal for first-time buyers and professionals alike.



The property opens into a welcoming hallway with excellent built-in storage, leading through to a spacious reception room positioned at the front of the flat. Filled with natural light, this room comfortably accommodates both living and dining areas, creating a versatile and inviting space for everyday living or entertaining.

To the rear, the flat features a stylish separate kitchen/diner, finished with sleek white cabinetry, dark worktops, and integrated appliances including an oven and gas hob. A large window floods the space with natural light, while ample room for a dining table makes this a practical yet sociable setting.

The double bedroom is quietly positioned away from the main living area, providing a peaceful retreat with space for wardrobes and additional furniture. A modern bathroom completes the accommodation, fitted with a full suite and finished in a clean, contemporary style.

Oakhurst Grove is a popular no-through residential road, offering a quiet setting while remaining well located for a range of local shops, cafés, and amenities. Nearby transport links provide convenient access into central London and surrounding areas.

Further benefits include a share of the rear garden. This appealing flat combines light-filled interiors, a well-balanced layout, and a sought-after location, making it an excellent opportunity for buyers seeking a home ready to move into, with scope to personalise if desired.

AGENT NOTES:

Mobile phone coverage:
EE (Good outdoor and variable in-home)
Three (Good outdoor and in-home)
O2 (Good outdoor and in-home)
Vodaphone (Good outdoor and in-home)

(Potential purchasers are advised to seek their own advice as to the suitability of the services and mobile phone coverage, the above is for guidance only.)

Available broadband: Ultrafast Broadband: FTTP
Superfast Broadband: FTTC
Standard Broadband: ADSL
Networks in your area: Virgin media, Openreach
(Information supplied by Ofcom)

Flood Risk: Low risk of surface water flooding / Very low risk river and sea flooding (Information supplied by gov.uk and purchasers are advised to seek their own legal advice)

Tenure: Share Of Freehold

Local Council: Southwark / Tax Band: B
EPC Rating: D

Floor plan: Whilst every attempt has been made to ensure accuracy, all measurements are approximate and not to scale. The floor plan is for illustrative purposes only.

Marketed by

Winkworth Dulwich

Properties for sale in Dulwich

Arrange a Viewing

Fill in the form below to arrange your property viewing.

This site is protected by reCAPTCHA and the Google Privacy Policy and Terms of Service apply.
Introduction text for the mortgage calculator

Mortgage Calculator

Fill in the details below to estimate your monthly repayments:

Approximate monthly repayment:

For more information, please contact Winkworth's mortgage partner, Trinity Financial, on +44 (0)20 7267 9399 and speak to the Trinity team.

Stamp Duty Calculator

Fill in the details below to estimate your stamp duty

The above calculator above is for general interest only and should not be relied upon

6/14
Kitchen
Kicthen
Reception
Reception
Bedroom
External
Bathroom

Meet the Team

Our team at Winkworth Dulwich Estate Agents are here to support and advise our customers when they need it most. We understand that buying, selling, letting or renting can be daunting and often emotionally meaningful. We are there, when it matters, to make the journey as stress-free as possible.

See all team members

Got a question about this property?

This site is protected by reCAPTCHA and the Google Privacy Policy and Terms of Service apply.

More Properties like this

Under Offer

Marmora Road, East Dulwich, London, SE22

£825,000 Leasehold

Under Offer

Dunstans Road, East Dulwich, London, SE22

Offers in excess of £800,000 Share of Freehold

Under Offer

Lordship Lane, East Dulwich, London, SE22

Offers in excess of £800,000 Share of Freehold

Under Offer

Oakhurst Grove, East Dulwich, London, SE22

£799,950 Share of Freehold

Beauval Road, East Dulwich, London, SE22

£780,000 Leasehold

New Instruction

Barry Road, East Dulwich, London, SE22

£775,000 Share of Freehold

Online Valuations Aren’t Worth The Paper They’re Printed On.

When online valuations don’t give you the whole picture - try Winkworth’s expert service. Get a free property appraisal. Accurate valuations from our local property experts. No obligation to list with Winkworth. Choose a time convenient for you with our online booking system.

Fill in your details and someone will be in touch soon:

You have provisionally booked a valuation for . Please confirm your details below

We don't have date info available for this property, but if you fill in your details below, someone will be in touch to arrange a date soon

Please fill in the required fields below marked with *

This site is protected by reCAPTCHA and the Google Privacy Policy and Terms of Service apply.