North Road, Southwold, IP18
3 bedroom house in Southwold
Guide Price £595,000 Freehold
- 3
- 2
- 2
PICTURES AND VIDEOS



















KEY FEATURES
- Popular location
- Overlooks the marshland.
- Accommodation set over three floors
- Three bedrooms with scope for a fourth
- First floor sitting room
- Ground floor bathroom
- Second floor W.C.
- Parking
- Pretty garden
- Utility room
- Gas central heating
- Large dining room
KEY INFORMATION
- Tenure: Freehold
- Council Tax Band: D
- Local Authority: East Suffolk Council
Description
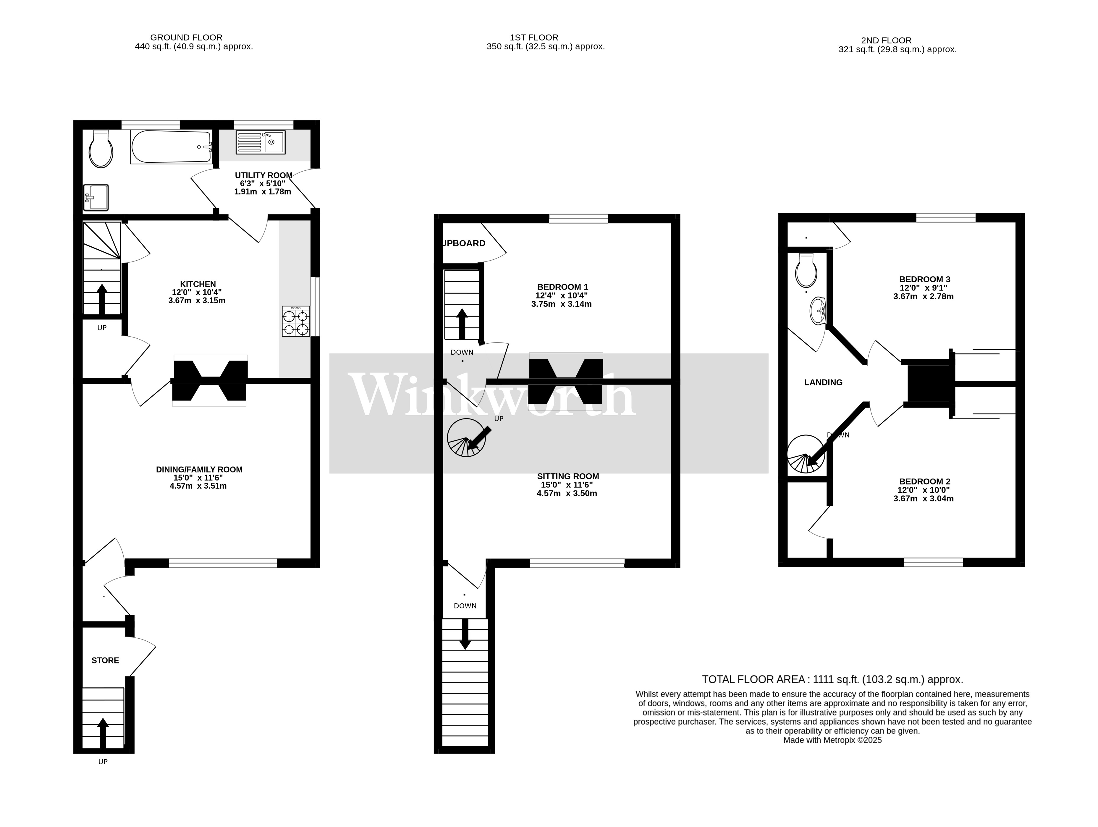
Occupying an enviable location overlooking the marshes with a glimpse of sea, this characterful home offers flexible accommodation across three floors. The ground floor entrance leads you into the porch which opens onto a sizeable dining room with a pretty fireplace set centrally to one wall with a fitted cupboard and shelving to the right. For buyers with larger families, this could be used or subdivided to make a fourth bedroom if desired.
A door leads into the kitchen which has an understairs storage cupboard and a further fireplace with a painted surround. To one wall is a range of oak effect base units with work surfaces over, with space for an electric cooker and dishwasher. At the rear is a utility room with a further sink and plumbing for a washing machine. A door leads to the family bathroom which has a matched white suite with a frosted window to the rear.
From the kitchen, a door opens onto a staircase leading to the first floor. At the rear is a bedroom with views out over the garden. To the front is the sitting room which enjoys an elevated position to enjoy the views towards the coast. There are steps leading up to this level directly from the front of the property.
A spiral staircase leads up to a landing area which has a cloakroom adjoining which serves the top floor. There are two well-matched bedrooms both with fitted wardrobes on this floor, with the front bedroom having a cupboard where the current owner has made an insulated recording booth which could easily be converted to a further wardrobe.
Outside, the property is nicely set back from the road and well-screened by trees. A long driveway provides plenty of parking, and there is a timber workshop/garage. A side gate leads to an area of hardstanding where there is another timber shed, and an opening leads through into the rear garden which is mainly laid to lawn with mature trees and shrubs along with a third shed and a greenhouse.
The vendors have fitted new front and rear doors, along with replacing the double glazing during their time there. A quirky and appealing house that is well worth visiting in person.
Additional Information:
Council Tax Band: D
Local Authority – East Suffolk Council
We have been informed by the vendors that the property offers mains water & Sewage, gas central heating and electric.
Winkworth wishes to inform prospective buyers and tenants that these particulars are a guide and act as information only. All our details are given in good faith and believed to be correct at the time of printing, but they do not form part of an offer or contract. No Winkworth employee has authority to make or give any representation or warranty in relation to this property. All fixtures and fittings, whether fitted or not, are deemed removable by the vendor unless stated otherwise and room sizes are measured between internal wall surfaces, including furnishings. The services, systems and appliances have not been tested, and no guarantee as to their operability or efficiency can be given.
Marketed by
Winkworth Southwold
Properties for sale in SouthwoldArrange a Viewing
Fill in the form below to arrange your property viewing.
Mortgage Calculator
Fill in the details below to estimate your monthly repayments:
Approximate monthly repayment:
For more information, please contact Winkworth's mortgage partner, Trinity Financial, on +44 (0)20 7267 9399 and speak to the Trinity team.
Stamp Duty Calculator
Fill in the details below to estimate your stamp duty
The above calculator above is for general interest only and should not be relied upon
Meet the Team
As the area's newest independent agent, we bring with us a combined 65 years of experience, and a love for what we do and the local community around us. Understanding the individual needs of our clients is paramount to who we are. Located in the heart of Southwold's High Street our prominent office can be seen by all the right people. Please come and talk to us about your property requirements, and get to know the team from the Winkworth Estate Agents in Southwold.
See all team members