Skip to main content

MyWinkworth

New Instruction

Picture No. 06
Picture No. 12
Picture No. 09
Picture No. 03
Picture No. 04
Picture No. 13
Picture No. 02
Picture No. 08
Picture No. 10
Picture No. 07
Picture No. 05
Picture No. 11
6/14

Mountgrove Road, London, N5

2 bedroom flat/apartment in London

£825,000 Share of Freehold

  • Bedrooms 2
  • Bathrooms 2
  • Reception rooms 1
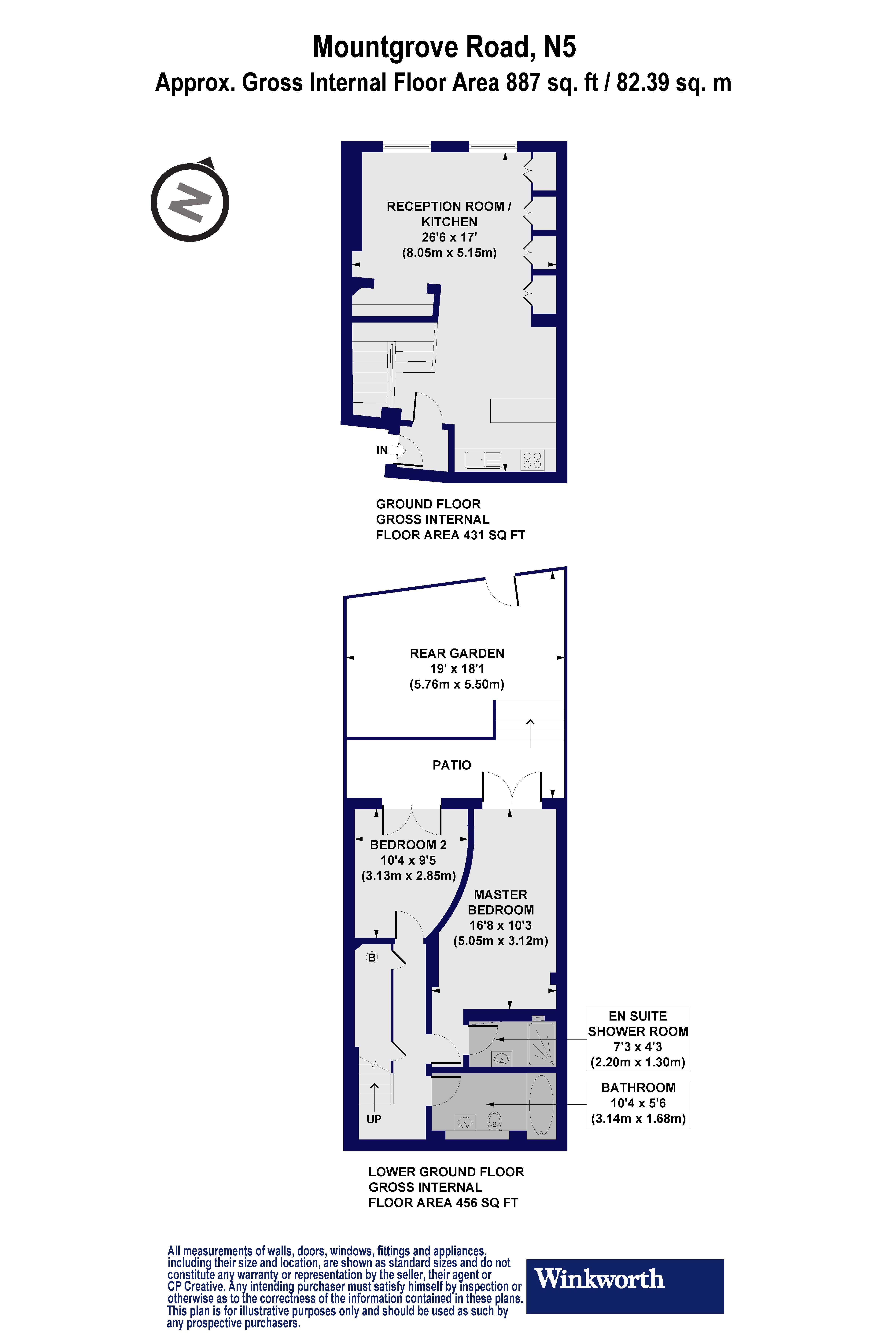
  • Dimensions 887 sq ft
    82 sq m
  • Floorplan

PICTURES AND VIDEOS

KEY INFORMATION

  • Tenure: Share of Freehold
  • Council Tax Band: C
  • Local Authority: London Borough Of Hackney

Description

A stunning, two double bedroom, two bathroom period conversion set across two levels on this popular street in Highbury. Split across the ground and lower ground floors, as you walk in, you’re welcomed into a spacious, open plan, living room/kitchen with two large sash windows creating a perfect entertaining space. Both bedrooms are genuine double bedrooms, the master featuring built in storage and a recently renovated en-suite shower room. Accessed via the bedrooms is a private garden, complete with decked and patioed areas making it a true oasis for those summer bbqs.
Mountgrove Road is exceptionally well located for an array of local amenities as well as fantastic transport links. Highbury barn is close by as is the infamous Church Street with its selection of trendy bars, restaurants and boutique design and clothes shops. Clissold Park is just moments away whilst the Castle climbing centre and West reservoir for sailing and canoeing are also close by. Arsenal tube station provides the closest underground links on the Piccadilly line whilst Finsbury Park is also within easy reach providing over ground services and the Victoria line tube. Buses on Blackstock road and Green lanes make access to the City and Upper Street effortless and international travel and be accessed from Kings Cross St Pancras.
*Any associated charges including, but not limited to, service charge, ground rent and sinking funds outlined in the marketing material is an approximation calculated using information provided by and described by the client at the time of instruction. The actual cost may be subject to change and therefore we recommend all interested parties carry out their own enquiries.*

ACCESSIBILITY

  • Unsuitable For Wheelchairs

Utilities

  • Electricity Supply: Mains Supply
  • Water Supply: Mains Supply
  • Sewerage: Mains Supply
  • Heating: Gas
  • Broadband: ADSL, FTTP

Rights & Restrictions

  • Listed Property: No

Risks

  • Flood Risk: There has been flooding in the last 5 years
  • Date of last flooding: 08/10/2019
  • Flooding sources affecting the property: Groundwater
  • Flood Defence: Yes

Marketed by

Winkworth Highbury

Properties for sale in Highbury

Arrange a Viewing

Fill in the form below to arrange your property viewing.

This site is protected by reCAPTCHA and the Google Privacy Policy and Terms of Service apply.
Introduction text for the mortgage calculator

Mortgage Calculator

Fill in the details below to estimate your monthly repayments:

Approximate monthly repayment:

For more information, please contact Winkworth's mortgage partner, Trinity Financial, on +44 (0)20 7267 9399 and speak to the Trinity team.

Stamp Duty Calculator

Fill in the details below to estimate your stamp duty

The above calculator above is for general interest only and should not be relied upon

6/14
Picture No. 06
Picture No. 12
Picture No. 09
Picture No. 03
Picture No. 04
Picture No. 13
Picture No. 02
Picture No. 08
Picture No. 10
Picture No. 07
Picture No. 05
Picture No. 11

Meet the Team

From our office on Highbury Park, we pride ourselves on our unrivalled local knowledge. Many of the team here at Winkworth Highbury Estate Agents live locally and whether it's sales, lettings or property management, we're always striving to provide an unparalleled service and tailor it to your exacting needs.

See all team members

Got a question about this property?

This site is protected by reCAPTCHA and the Google Privacy Policy and Terms of Service apply.

More Properties like this

Under Offer

Petherton Road, London, N5

£1,000,000 Leasehold

Under Offer

Finsbury Park Road, London, N4

£950,000 Leasehold

Under Offer

Aberdeen Road, London, N5

Offers in excess of £895,000 Share of Freehold

Adolphus Road, London, N4

Offers in excess of £850,000 Share of Freehold

Under Offer

Poets Road, London, N5

Offers in excess of £850,000 Leasehold

New Instruction

Highbury Park, Highbury, London, N5

Offers in excess of £825,000 Share of Freehold

Online Valuations Aren’t Worth The Paper They’re Printed On.

When online valuations don’t give you the whole picture - try Winkworth’s expert service. Get a free property appraisal. Accurate valuations from our local property experts. No obligation to list with Winkworth. Choose a time convenient for you with our online booking system.

Fill in your details and someone will be in touch soon:

You have provisionally booked a valuation for . Please confirm your details below

We don't have date info available for this property, but if you fill in your details below, someone will be in touch to arrange a date soon

Please fill in the required fields below marked with *

This site is protected by reCAPTCHA and the Google Privacy Policy and Terms of Service apply.