Skip to main content

MyWinkworth

New Instruction

Front
Lounge
Garden
Garden
Kitchen/Diner
Kitchen/Diner
Kitchen
Utility
Study/Family Room
Ds Wc
Hall
Landing
Bedroom 1
Bedroom 1
Bedroom
En-Suite 1
Bedroom
En-Suite 2
Bedroom
Bathroom
Rear
Rear
6/14

Millfields, Darsham, Saxmundham, Suffolk, IP17

4 bedroom house in Darsham

Guide Price £580,000 Freehold

  • Bedrooms 4
  • Bathrooms 3
  • Reception rooms 3
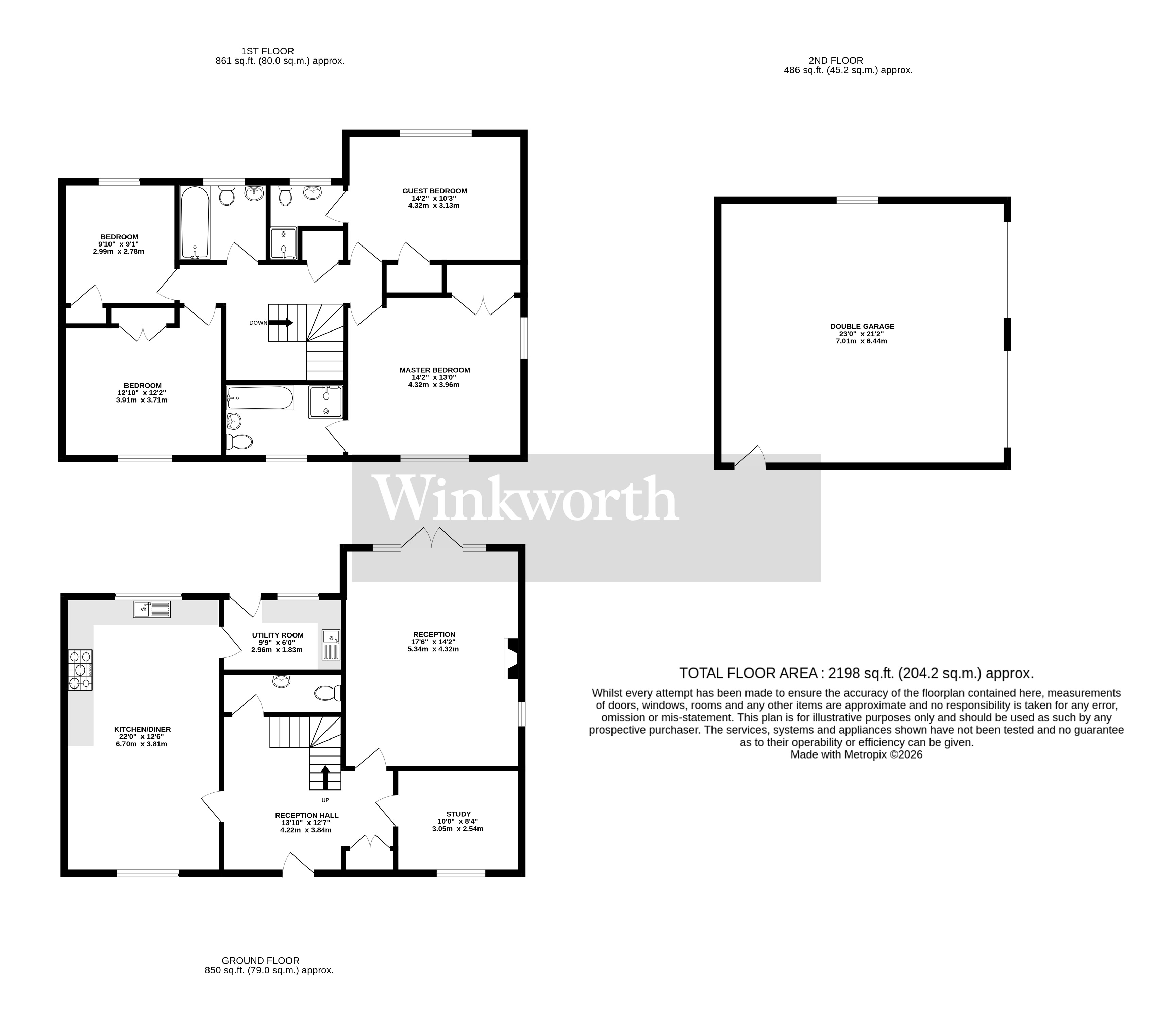
  • Floorplan

PICTURES AND VIDEOS

KEY FEATURES

  • Modern detached family home in an exclusive village development
  • Located in Darsham on the Suffolk Heritage Coast
  • Flexible accommodation including study/family room
  • Spacious rear reception room with log burner and garden access
  • Generous kitchen-dining room with shaker-style kitchen and range cooker
  • Four bedrooms, two with en-suite shower rooms
  • Built-in wardrobes and family bathroom
  • Lawned garden ideal for family life
  • Double brick-built garage with parking in front
  • Walking distance to village pub, with A12 and mainline rail station nearby

KEY INFORMATION

  • Tenure: Freehold
  • Council Tax Band: F

Description

Set within an exclusive modern development in the sought-after village of Darsham, this attractive detached family house enjoys a superb position on the Suffolk Heritage Coast, offering the perfect balance of coastal lifestyle, village community and excellent connectivity.

Designed with modern family living in mind, the property offers flexible and generously proportioned accommodation throughout. A spacious reception hall creates an immediate sense of arrival, with a turning staircase rising to the first floor and useful understairs storage. To the front of the house is a versatile room currently suited as a study or family snug, ideal for home working or quiet retreat.

The principal reception room is positioned to the rear, where a brick chimney breast provides a lovely focal point offering potential for a log burner, and double doors open directly onto the garden, allowing indoor and outdoor living to blend seamlessly.

The heart of the home is the impressive kitchen-dining room, set to one end of the property and perfectly arranged for both everyday living and entertaining. The cream, shaker-style kitchen incorporates a range cooker and ample storage, while the dining area easily accommodates a large table for family gatherings and relaxed entertaining. A utility room leads off the kitchen and provides direct access to the rear garden, with a ground floor cloakroom completing the downstairs accommodation.

Upstairs, the first floor offers four well-proportioned bedrooms, two of which benefit from en-suite facilities, including the principal bedroom and a guest suite. Built-in wardrobes feature throughout, enhancing practicality, while the remaining bedrooms are served by a well-appointed family bathroom.

Externally, the garden is predominantly laid to lawn, providing an ideal space for children, pets and outdoor entertaining. To the rear of the plot sits a substantial double, brick-built garage with parking in front, offering excellent storage and convenience with parking for four cars in total.

Darsham is a popular village with a welcoming community, a local pub within walking distance and easy access to the unspoilt Suffolk coastline. With the A12 close by and a mainline rail station offering direct links to London Liverpool Street via Ipswich, the property is ideally placed for both commuting and coastal living.

Marketed by

Winkworth Southwold

Properties for sale in Southwold

Arrange a Viewing

Fill in the form below to arrange your property viewing.

This site is protected by reCAPTCHA and the Google Privacy Policy and Terms of Service apply.
Introduction text for the mortgage calculator

Mortgage Calculator

Fill in the details below to estimate your monthly repayments:

Approximate monthly repayment:

For more information, please contact Winkworth's mortgage partner, Trinity Financial, on +44 (0)20 7267 9399 and speak to the Trinity team.

Stamp Duty Calculator

Fill in the details below to estimate your stamp duty

The above calculator above is for general interest only and should not be relied upon

6/14
Front
Lounge
Garden
Garden
Kitchen/Diner
Kitchen/Diner
Kitchen
Utility
Study/Family Room
Ds Wc
Hall
Landing
Bedroom 1
Bedroom 1
Bedroom
En-Suite 1
Bedroom
En-Suite 2
Bedroom
Bathroom
Rear
Rear

Meet the Team

As the area's newest independent agent, we bring with us a combined 65 years of experience, and a love for what we do and the local community around us. Understanding the individual needs of our clients is paramount to who we are. Located in the heart of Southwold's High Street our prominent office can be seen by all the right people. Please come and talk to us about your property requirements, and get to know the team from the Winkworth Estate Agents in Southwold.

See all team members

Got a question about this property?

This site is protected by reCAPTCHA and the Google Privacy Policy and Terms of Service apply.

More Properties like this

Primrose Lane, Frostenden, Beccles, Suffolk, NR34

Offers in excess of £850,000 Freehold

Darsham, Saxmundham, Suffolk, IP17

£825,000 Freehold

Needham, Harleston, Suffolk, IP20

Offers over £800,000 Freehold

New Instruction

Bartholomew Green, Southwold, IP18

£800,000 Freehold

Under Offer

Salisbury Road, Southwold, Suffolk, IP18

Guide Price £795,000 Freehold

New Instruction

High Street, Southwold, Suffolk, IP18

Offers in excess of £725,000 Freehold

Online Valuations Aren’t Worth The Paper They’re Printed On.

When online valuations don’t give you the whole picture - try Winkworth’s expert service. Get a free property appraisal. Accurate valuations from our local property experts. No obligation to list with Winkworth. Choose a time convenient for you with our online booking system.

Fill in your details and someone will be in touch soon:

You have provisionally booked a valuation for . Please confirm your details below

We don't have date info available for this property, but if you fill in your details below, someone will be in touch to arrange a date soon

Please fill in the required fields below marked with *

This site is protected by reCAPTCHA and the Google Privacy Policy and Terms of Service apply.