New Instruction
Meadway Close, New Barnet, EN5
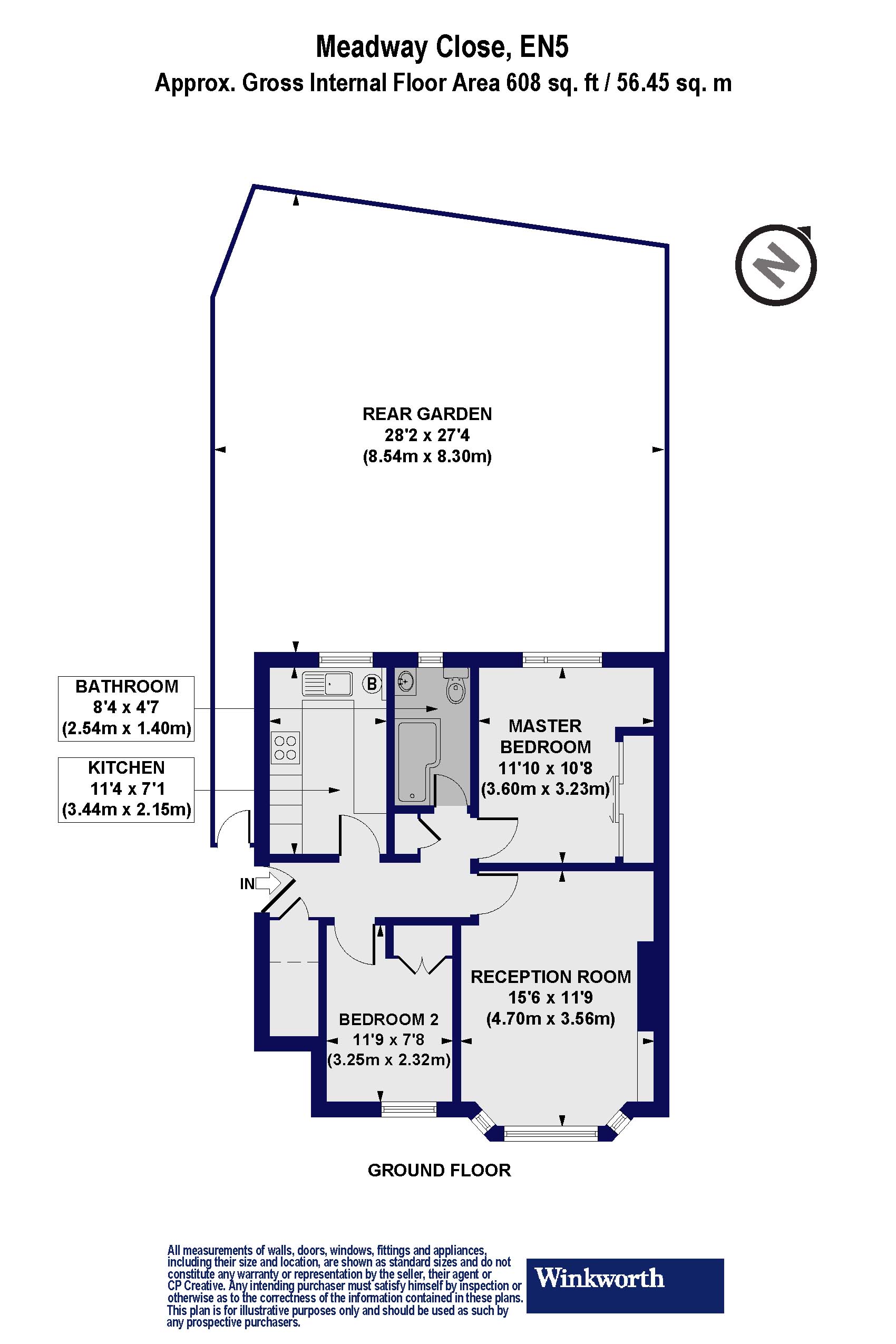
2 bedroom maisonette in New Barnet
£420,000 Share of Freehold
- 2
- 1
- 1
PICTURES AND VIDEOS











KEY INFORMATION
- Tenure: Share of Freehold
Description
The accommodation includes a good sized reception/dining room, a separate modern fitted kitchen, two double bedrooms and a family bathroom. The property has a share of the freehold and is being offered chain free.
Externally there is access to its own private rear garden.
Situated in this cul-de-sac location towards the top end of the Meadway with access to High Barnet tube station and other transport connections, as well as Barnet High street, a selection of highly regarded schools and a choice of nearby recreational areas.
Share of Freehold
Service Charges: N/A
Ground Rent: N/A
Council Tax band: C
EPC Rating: C
Marketed by
Winkworth Barnet
Properties for sale in BarnetArrange a Viewing
Fill in the form below to arrange your property viewing.
Mortgage Calculator
Fill in the details below to estimate your monthly repayments:
Approximate monthly repayment:
For more information, please contact Winkworth's mortgage partner, Trinity Financial, on +44 (0)20 7267 9399 and speak to the Trinity team.
Stamp Duty Calculator
Fill in the details below to estimate your stamp duty
The above calculator above is for general interest only and should not be relied upon
Meet the Team
Paul leads an impressive team who have been together for over 25 years, live locally, went to local schools and really understand the area. We have a deep understanding of the Barnet area and provide honest advice to our clients.
See all team members