Skip to main content

MyWinkworth

Sold

Picture No. 01
Picture No. 03
Picture No. 07
Picture No. 10
Picture No. 06
Picture No. 02
Picture No. 04
Picture No. 05
Picture No. 08
Picture No. 09
Picture No. 11
Picture No. 12
6/14

Hosack Road, London, SW17

2 bedroom maisonette in London

£825,000 Share of Freehold

  • Bedrooms 2
  • Bathrooms 1
  • Reception rooms 1
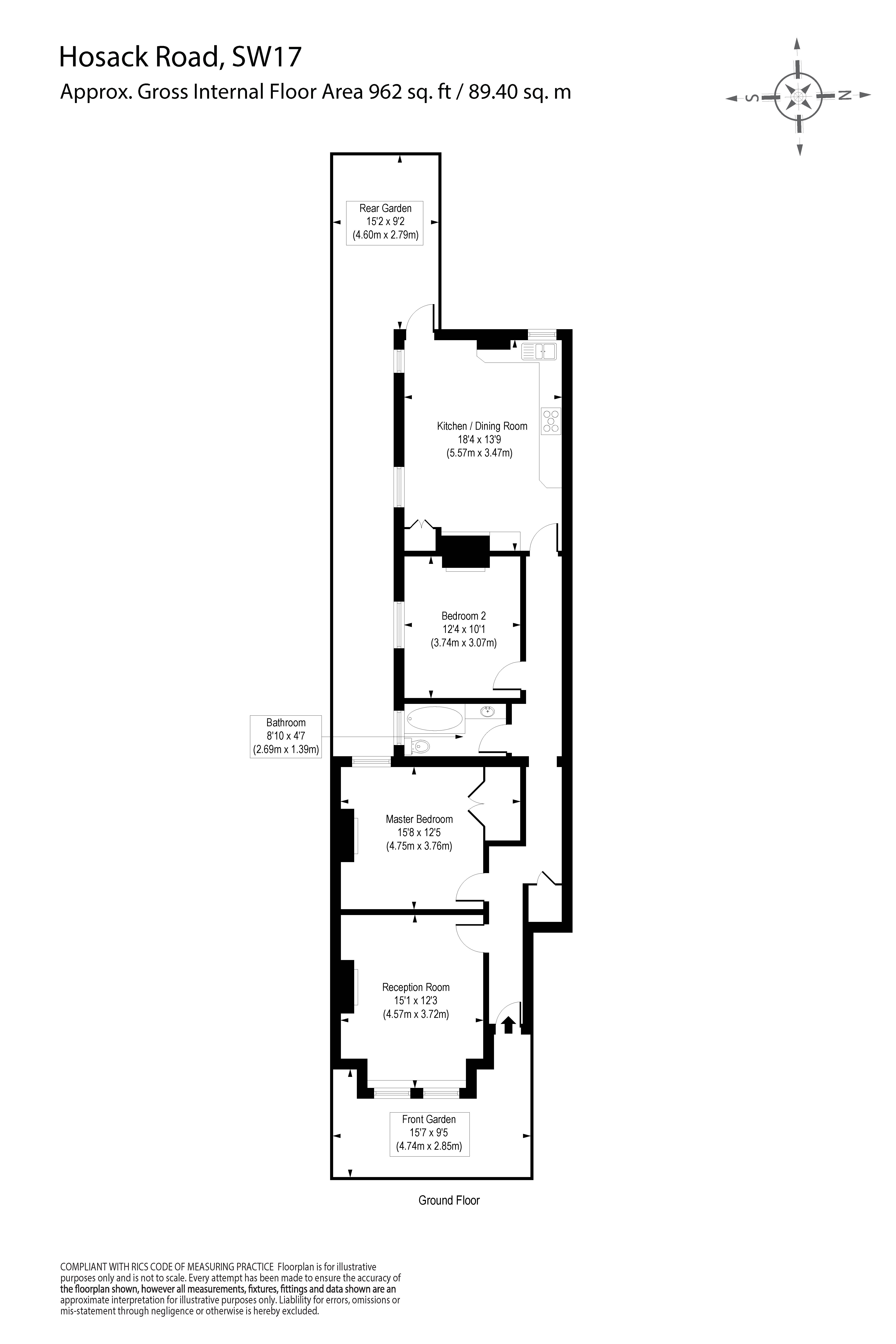
  • Floorplan

PICTURES AND VIDEOS

KEY INFORMATION

  • Tenure: Share of Freehold

Description

An exceptional two double bedroom garden maisonette which is located on a sought-after residential street. Beautifully presented and measuring approximately 962 square feet, the property provides an abundance of natural light and space throughout and features a very private garden.

Towards the front is a stunning large reception room which could be used as a third bedroom depending on individual requirements. Master bedroom with gorgeous feature fireplace, family bathroom and further double bedroom.
To the rear is an exceptional open-plan living space opening to the private rear garden.. This wonderful maisonette has been very well designed, the property offers a great space, perfect for entertaining as well as everyday living.
This property is offered to the market chain free.

Hosack Road is located between the junctions of Marius Road and Boundaries Road. The amenities of Bellevue Road and Balham High Road are within easy walking distance, as are the open spaces of Wandsworth Common. Transport can be found at Balham with a choice of Underground or Overground services just a ten-minute walk away. There are a good number of state and private schools nearby, subject to catchment each year.
Introduction text for the mortgage calculator

Mortgage Calculator

Fill in the details below to estimate your monthly repayments:

Approximate monthly repayment:

For more information, please contact Winkworth's mortgage partner, Trinity Financial, on +44 (0)20 7267 9399 and speak to the Trinity team.

Stamp Duty Calculator

Fill in the details below to estimate your stamp duty

The above calculator above is for general interest only and should not be relied upon

6/14
Picture No. 01
Picture No. 03
Picture No. 07
Picture No. 10
Picture No. 06
Picture No. 02
Picture No. 04
Picture No. 05
Picture No. 08
Picture No. 09
Picture No. 11
Picture No. 12

Meet the Team

Our team at Winkworth Tooting Estate Agents are here to support and advise our customers when they need it most. We understand that buying, selling, letting or renting can be daunting and often emotionally meaningful. We are there, when it matters, to make the journey as stress-free as possible.

See all team members

Got a question about this property?

This site is protected by reCAPTCHA and the Google Privacy Policy and Terms of Service apply.

More Properties like this

Franciscan Road, London, SW17

£750,000 Share of Freehold

Trevelyan Road, London, SW17

£700,000 Share of Freehold

Boundaries Road, London, SW12

£700,000 Leasehold

Wheatlands Road, London, SW17

£695,000 Share of Freehold

Under Offer

Coverton Road, London, SW17

£675,000 Leasehold

New Instruction

Woodbury Street, London, SW17

£600,000 Share of Freehold

Online Valuations Aren’t Worth The Paper They’re Printed On.

When online valuations don’t give you the whole picture - try Winkworth’s expert service. Get a free property appraisal. Accurate valuations from our local property experts. No obligation to list with Winkworth. Choose a time convenient for you with our online booking system.

Fill in your details and someone will be in touch soon:

You have provisionally booked a valuation for . Please confirm your details below

We don't have date info available for this property, but if you fill in your details below, someone will be in touch to arrange a date soon

Please fill in the required fields below marked with *

This site is protected by reCAPTCHA and the Google Privacy Policy and Terms of Service apply.