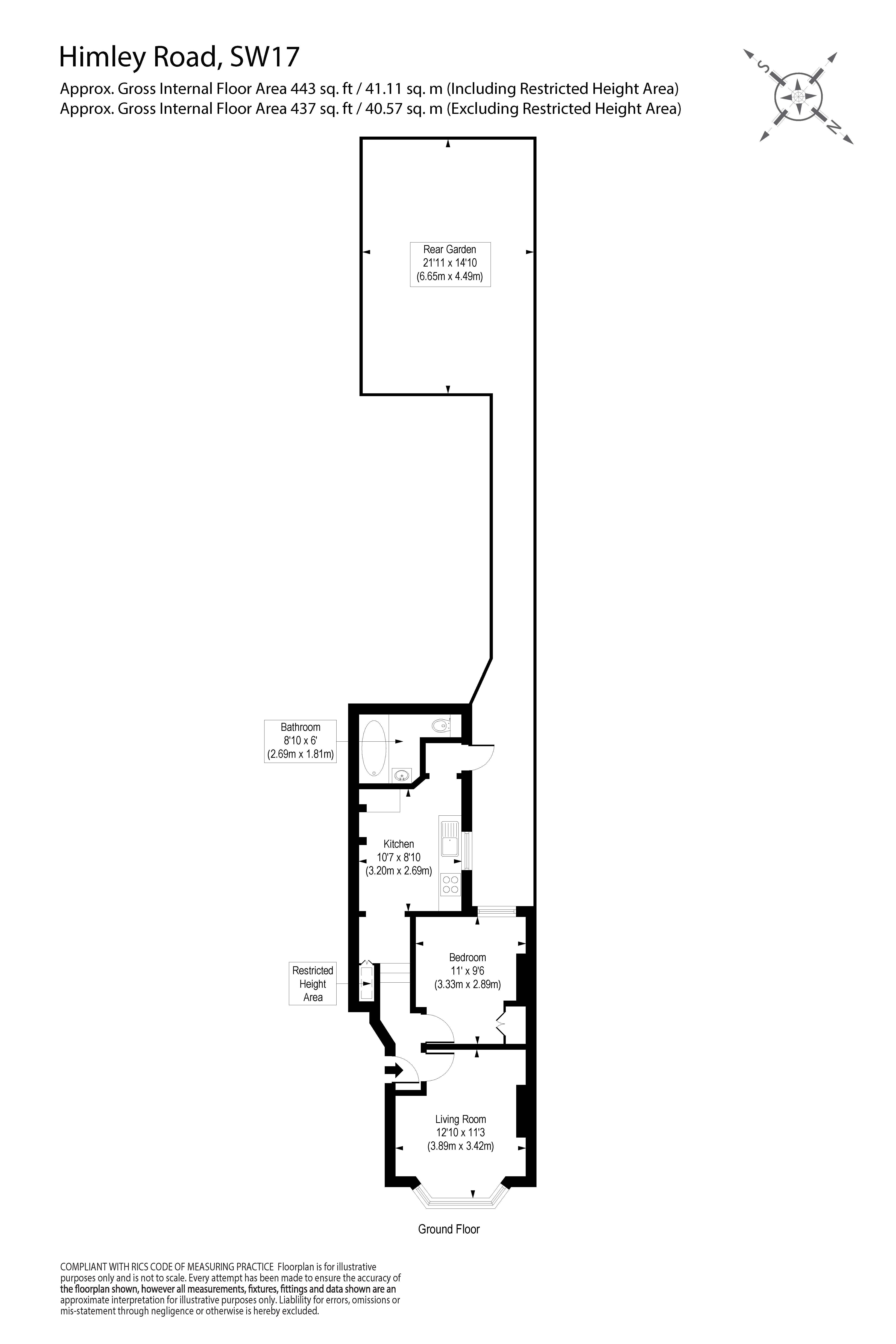
Himley Road, London, SW17
1 bedroom flat/apartment in London
£435,000 Share of Freehold
- 1
- 1
- 1
PICTURES AND VIDEOS








KEY FEATURES
- Period Conversion Flat
- One Double Bedroom
- Generous Private Garden
- Beautifully Presented
- Share of Freehold
- Excellent Transport Links
KEY INFORMATION
- Tenure: Share of Freehold
Description
Himley Road, situated in the heart of Tooting, SW17, is a desirable residential street known for its strong community feel and excellent amenities. The area boasts a mix of charming period homes and modern properties, appealing to families and professionals alike. Just a short distance away, Tooting Broadway and Tooting Bec offer a vibrant selection of cafés, restaurants, and shops, while the green open spaces of Tooting Common provide a peaceful retreat. The area is well-served by transport links, with Tooting Broadway (0.5 miles) and Tooting Bec (1.1 miles) stations on the Northern Line offering fast connections to central London. Additionally, nearby bus routes and Tooting railway station provide easy access to surrounding areas, making it a convenient and well-connected place to live.
Wandsworth Council Tax Band: B
Marketed by
Winkworth Tooting
Properties for sale in TootingArrange a Viewing
Fill in the form below to arrange your property viewing.
Mortgage Calculator
Fill in the details below to estimate your monthly repayments:
Approximate monthly repayment:
For more information, please contact Winkworth's mortgage partner, Trinity Financial, on +44 (0)20 7267 9399 and speak to the Trinity team.
Stamp Duty Calculator
Fill in the details below to estimate your stamp duty
The above calculator above is for general interest only and should not be relied upon
Meet the Team
Our team at Winkworth Tooting Estate Agents are here to support and advise our customers when they need it most. We understand that buying, selling, letting or renting can be daunting and often emotionally meaningful. We are there, when it matters, to make the journey as stress-free as possible.
See all team members