Skip to main content

MyWinkworth

Picture No. 21
Picture No. 22
Picture No. 23
Picture No. 24
Picture No. 25
Picture No. 26
Picture No. 27
Picture No. 28
Picture No. 29
Picture No. 30
Picture No. 31
Picture No. 32
Picture No. 33
Picture No. 21
Picture No. 35
6/14

Hillmarton Road, London, N7

2 bedroom flat/apartment in London

£625,000

  • Bedrooms 2
  • Bathrooms 1
  • Reception rooms 1
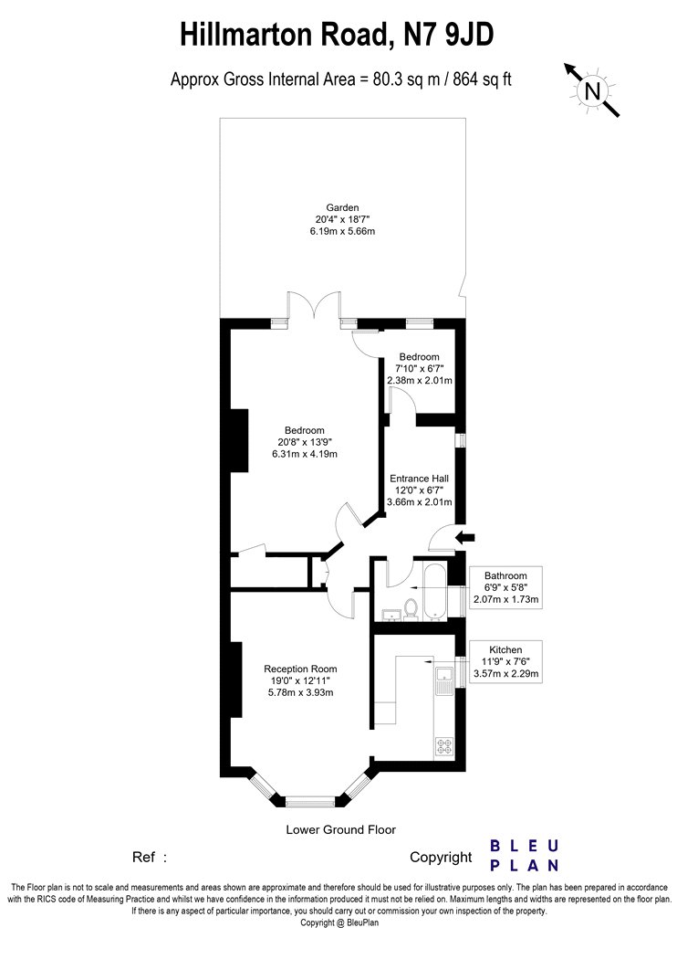
  • Floorplan

PICTURES AND VIDEOS

Description

Offering for sale a spacious two bedroom flat, set on the lower ground floor of a building, with its own private entrance and with direct access to its own rear garden.

The property opens into a spacious entrance hall and leads through to a bright reception room with bay window, creating a welcoming living and entertaining space. A separate kitchen sits just off the reception, while a well-proportioned main bedroom provides a calm retreat to the rear. A flexible second room offers ideal space for a home office, nursery or occasional guest accommodation, making the layout particularly well suited to couples or those working from home.
One of the standout features is the direct access to a private rear garden, alongside use of a larger communal garden — a rare benefit for the area and perfect for outdoor dining, relaxing or socialising. The flat is held on a 999-year lease from 1st January 2010 and is sold with a share of freehold, forming part of a characterful building on a quiet, tree-lined residential road. Residents also benefit from private off-street parking to the rear, shared between eight flats on a first-come, first-served basis (approximately five spaces), set behind an automatic gate.
Hillmarton Road is ideally positioned between Caledonian Road and Camden Road, with Caledonian Road and Holloway Road Underground stations (Piccadilly Line) nearby, placing Kings Cross, Granary Square and Coal Drops Yard just one stop away. The surrounding area offers an excellent mix of independent cafés, local shops, green spaces and convenient bus routes, providing a balance of residential calm and central London connectivity.

TENURE: 999 Years Lease from 1st January 2010 with SHARE OF FREEHOLD:

SERVICE CHARGE: We have been advised by the owners they pay £150pcm for buildings insurance and other communal charges - Unverified

Parking: We have been advised by the owners there is around 5 parking spaces for 8 flats to the rear, on a first come first served basis. Set behind an automatic gate - Unverified

Utilities: The property is serviced by mains water, electricity, gas and sewage
Broadband and
Data Coverage: Ultrafast Broadband services are available via Openreach, G Network, Virgin Media, with a good level of mobile phone coverage.

Construction Type: To be confirmed
Heating: Gas
Notable Lease Covenants
& Restrictions: Ask Agent

Council Tax: London Borough of Islington - Council Tax Band: E (£2,458.89 for 2025/26).

Location

Set within the sought-after Hillmarton Conservation Area, this beautifully presented garden flat offers a rare combination of private entrance, generous living space and excellent outdoor areas, all within easy reach of Caledonian Road, Camden Road and Kings Cross.

Marketed by

Winkworth Kentish Town

Properties for sale in Kentish Town

Arrange a Viewing

Fill in the form below to arrange your property viewing.

This site is protected by reCAPTCHA and the Google Privacy Policy and Terms of Service apply.
Introduction text for the mortgage calculator

Mortgage Calculator

Fill in the details below to estimate your monthly repayments:

Approximate monthly repayment:

For more information, please contact Winkworth's mortgage partner, Trinity Financial, on +44 (0)20 7267 9399 and speak to the Trinity team.

Stamp Duty Calculator

Fill in the details below to estimate your stamp duty

The above calculator above is for general interest only and should not be relied upon

6/14
Picture No. 21
Picture No. 22
Picture No. 23
Picture No. 24
Picture No. 25
Picture No. 26
Picture No. 27
Picture No. 28
Picture No. 29
Picture No. 30
Picture No. 31
Picture No. 32
Picture No. 33
Picture No. 21
Picture No. 35

Meet the Team

Our team at Winkworth Kentish Town Estate Agents are here to support and advise our customers when they need it most. We understand that buying, selling, letting or renting can be daunting and often emotionally meaningful. We are there, when it matters, to make the journey as stress-free as possible.

See all team members

Got a question about this property?

This site is protected by reCAPTCHA and the Google Privacy Policy and Terms of Service apply.

More Properties like this

Virtual Tour

New Instruction

Royal College Street, London, NW1

£1,225,000 Leasehold

Virtual Tour

Under Offer

Montpelier Grove, London, NW5

£1,100,000 Share of Freehold

Virtual Tour

Under Offer

Salamander Court, York Way, London, N7

Offers in excess of £1,100,000 Share of Freehold

Virtual Tour

Under Offer

Tytherton Road, London, N19

Offers in excess of £1,000,000 Share of Freehold

Virtual Tour

Under Offer

Fortess Road, London, NW5

Offers in excess of £800,000 Share of Freehold

Virtual Tour

Under Offer

Manor Gardens, London, N7

Offers in excess of £800,000 Share of Freehold

Online Valuations Aren’t Worth The Paper They’re Printed On.

When online valuations don’t give you the whole picture - try Winkworth’s expert service. Get a free property appraisal. Accurate valuations from our local property experts. No obligation to list with Winkworth. Choose a time convenient for you with our online booking system.

Fill in your details and someone will be in touch soon:

You have provisionally booked a valuation for . Please confirm your details below

We don't have date info available for this property, but if you fill in your details below, someone will be in touch to arrange a date soon

Please fill in the required fields below marked with *

This site is protected by reCAPTCHA and the Google Privacy Policy and Terms of Service apply.