Skip to main content

MyWinkworth

Sold

Picture No. 33
Picture No. 17
Picture No. 13
Picture No. 26
Picture No. 32
Picture No. 27
Picture No. 10
Picture No. 11
Picture No. 12
Picture No. 23
Picture No. 24
Picture No. 09
Picture No. 31
Picture No. 20
Picture No. 21
Picture No. 22
Picture No. 30
Picture No. 25
Picture No. 07
Picture No. 08
Picture No. 15
Picture No. 16
Picture No. 06
Picture No. 14
Picture No. 18
Picture No. 19
Picture No. 28
Picture No. 29
Picture No. 04
6/14

Haythorne, Horton, Wimborne, Dorset, BH21

4 bedroom house in Horton

Guide Price £700,000 Freehold

  • Bedrooms 4
  • Bathrooms 2
  • Reception rooms 2
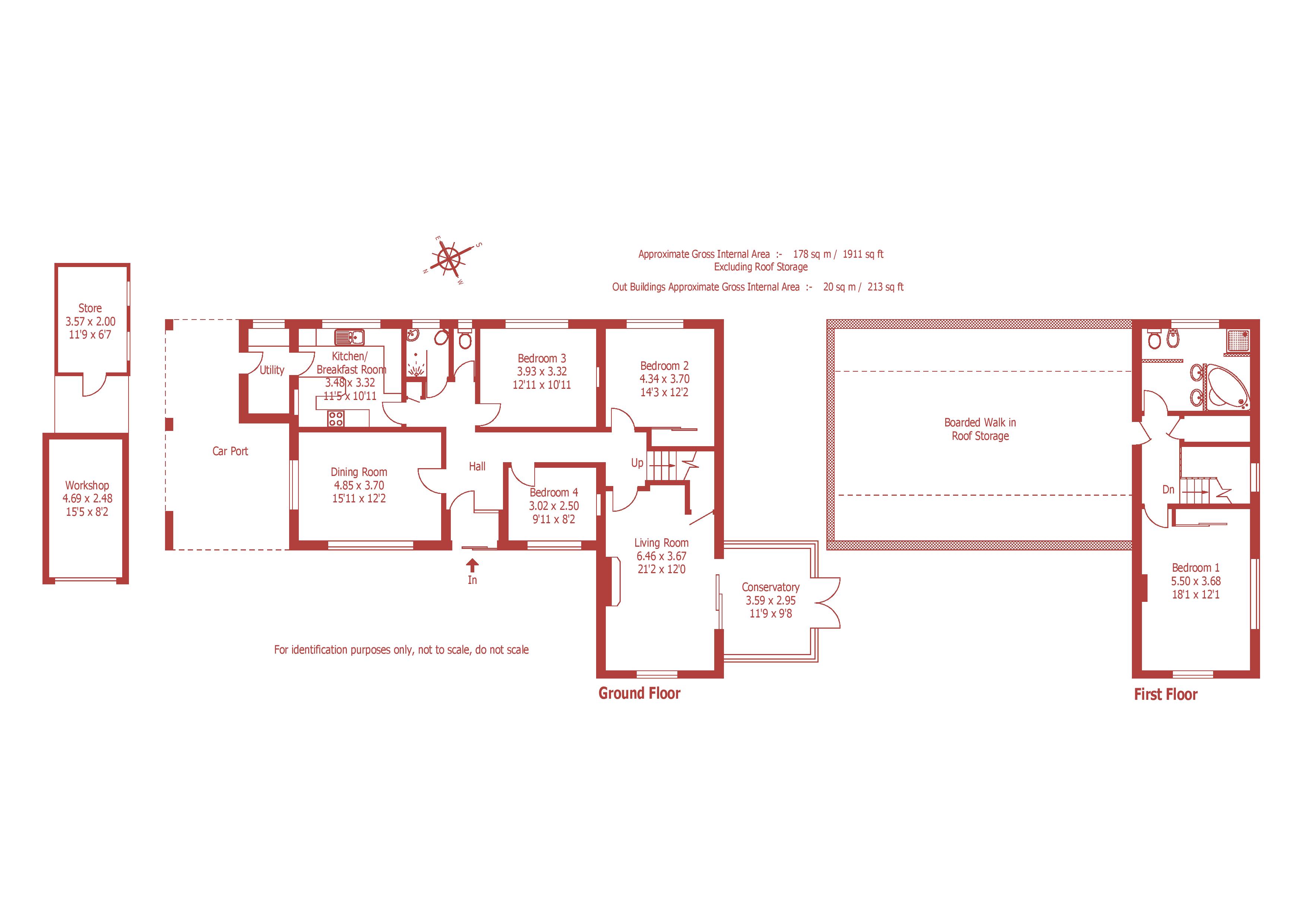
  • Floorplan

PICTURES AND VIDEOS

KEY FEATURES

  • NO FORWARD CHAIN
  • Set in lovely half acre gardens
  • In this delightful hamlet
  • Now in need of modernisation
  • Great potential for extension, STPP

KEY INFORMATION

  • Tenure: Freehold
  • Council Tax Band: G

Description

PRICE GUIDE: £700,000-£725,000. An unusual 4 bedroom detached rural home, for sale with NO FORWARD CHAIN, set in lovely half acre gardens, away from the road off a gravel lane, in the delightful hamlet of Haythorne Common. The property is now in need of modernisation.

An unusual 4 bedroom detached rural home, for sale with NO FORWARD CHAIN, set in lovely half acre gardens, away from the road off a gravel lane, in the delightful hamlet of Haythorne Common. The property is now in need of modernisation.

Originally built as a much smaller 2 bedroom bungalow in the 1960s, and extended by the present owners in 1987, adding the living room, conservatory, upstairs bedroom and bathroom, utility room and car port. The property is of traditional construction, with cavity brick walls, tile hung and rendered elevations, a tiled roof, oil fired heating, UPVC double glazing and 14 solar panels. The property is connected to mains electricity and water, and private drainage.

Stepping Stones has a quirky internal layout, with the majority of the accommodation on the ground floor, and offers great potential for extension, re-modelling and modernisation, subject to the necessary planning consents.

It is set in an idyllic rural location, with many scenic walks close by, about 7 miles north of Wimborne Minster

An entrance vestibule with sliding doors leads to an L-shaped hall with an airing cupboard, off of which is a wet room (with single glass panel, wash basin, WC and underfloor heating) and a separate WC.

There is a spacious living room with a stone open fireplace and a wood burner (with back boiler supplying the hot water.) Double glazed sliding doors lead to a conservatory with double glazed windows and sloping roof, doors to outside, a stone floor and a superb view onto the garden.

At the other side of the hall there is a dual aspect dining room with electric fire and large picture window overlooking Haythorne Common. The adjacent kitchen/breakfast room overlooks the rear garden, and includes work surfaces, oak units, split level oven, ceramic hob, extractor, breakfast bar and space for white goods. A door leads to a utility room with worktop, space for white goods, and door to the carport.

Bedroom 3, currently used as a study, is a spacious room overlooking the rear garden, bedroom 4 has a front aspect, and bedroom 2 has built-in wardrobes.

A staircase (with a half landing and a fine view of the garden) leads to a semi-galleried first floor landing with a built-in wardrobe and access to extensive walk-in eaves storage. Bedroom 1 is a superb dual aspect room with fitted mirrored wardrobes, and a superb view over the garden and farmland beyond.

Also on the first floor is a large bath/shower room with corner bath, shower cubicle, twin wash basins, WC and bidet.

Stepping Stones is set some distance from the road, off a gravel lane. A large gravelled courtyard (with a central stone roundabout) offers excellent off road parking and leads to a large double carport, open to the front and the rear. To the rear of the house, the garden is arranged as a flat lawn, with a large entertaining terrace. The half acre plot features a large number of deep beds forming a productive vegetable growing area also established fruit trees and bushes. There is a wealth of planting including oak, pine and azalea, rough pasture, a timber chalet, compost bins, raised beds, a greenhouse, garden stores, a former garage, a timber shed, an oil storage tank and an external oil fired boiler.

Location

Haythorne Common can be found between the villages of Horton (which has an impressive village hall, a parish church, and The Horton Inn) and Woodlands.

Shops can be found at Three Legged Cross, Verwood, Cranborne and Wimborne, all of which are within easy driving distance, and the coastal towns of Poole and Bournemouth, both of which have mainline rail links to London Waterloo, are within about 30 minutes’ drive.
Introduction text for the mortgage calculator

Mortgage Calculator

Fill in the details below to estimate your monthly repayments:

Approximate monthly repayment:

For more information, please contact Winkworth's mortgage partner, Trinity Financial, on +44 (0)20 7267 9399 and speak to the Trinity team.

Stamp Duty Calculator

Fill in the details below to estimate your stamp duty

The above calculator above is for general interest only and should not be relied upon

6/14
Picture No. 33
Picture No. 17
Picture No. 13
Picture No. 26
Picture No. 32
Picture No. 27
Picture No. 10
Picture No. 11
Picture No. 12
Picture No. 23
Picture No. 24
Picture No. 09
Picture No. 31
Picture No. 20
Picture No. 21
Picture No. 22
Picture No. 30
Picture No. 25
Picture No. 07
Picture No. 08
Picture No. 15
Picture No. 16
Picture No. 06
Picture No. 14
Picture No. 18
Picture No. 19
Picture No. 28
Picture No. 29
Picture No. 04

Contact Wimborne

See all team members

Got a question about this property?

This site is protected by reCAPTCHA and the Google Privacy Policy and Terms of Service apply.

More Properties like this

Gaunts Common, Wimborne, Dorset, BH21

£1,295,000 Freehold

Under Offer

Rowlands Hill, Wimborne, Dorset, BH21

£1,100,000 Freehold

Albert Road, Corfe Mullen, Wimborne, Dorset, BH21

Offers in excess of £1,000,000 Freehold

Rowlands Hill, Wimborne, Dorset, BH21

Guide Price £1,000,000 Freehold

Furzehill, Wimborne, Dorset, BH21

Guide Price £1,000,000 Freehold

Under Offer

Delph Road, Merley, Wimborne, Dorset, BH21

Guide Price £975,000 Freehold

Online Valuations Aren’t Worth The Paper They’re Printed On.

When online valuations don’t give you the whole picture - try Winkworth’s expert service. Get a free property appraisal. Accurate valuations from our local property experts. No obligation to list with Winkworth. Choose a time convenient for you with our online booking system.

Fill in your details and someone will be in touch soon:

You have provisionally booked a valuation for . Please confirm your details below

We don't have date info available for this property, but if you fill in your details below, someone will be in touch to arrange a date soon

Please fill in the required fields below marked with *

This site is protected by reCAPTCHA and the Google Privacy Policy and Terms of Service apply.