Skip to main content

MyWinkworth

Sold

Picture No. 14
Picture No. 11
Picture No. 12
Picture No. 07
Picture No. 06
Picture No. 09
Picture No. 10
Picture No. 13
Picture No. 08
Picture No. 03
Picture No. 04
Picture No. 05
6/14

Hayles Street, Kennington, London, SE11

2 bedroom flat/apartment

£685,000 Share of Freehold

  • Bedrooms 2
  • Bathrooms 1
  • Reception rooms 1
  • Floorplan

PICTURES AND VIDEOS

KEY INFORMATION

  • Tenure: Share of Freehold
  • Lease Length: 985 yrs left
  • Service charge: £529.00 per annum
  • Council Tax Band: C
  • Local Authority: Southwark

Description

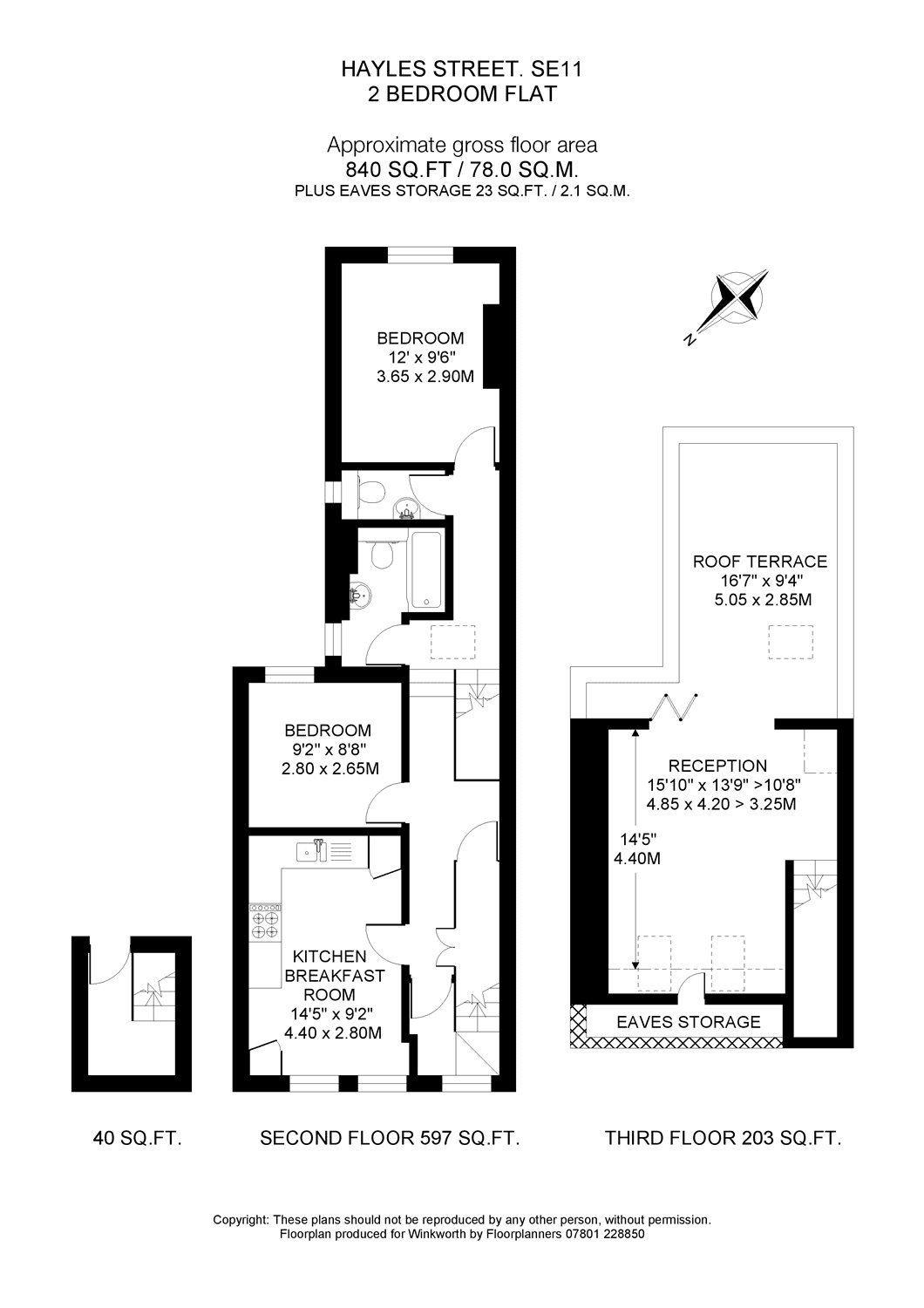
Stunning two-bedroom split level flat, on the idyllic Hayles Street, with a spectacular south east facing private roof terrace. EPC Rating C.

Enter the flat on the first floor and immediately walk up the stairs to the second-floor landing. The floors are carpeted and the ceilings high, which really enhances the space in the flat. The bathroom is directly on your left and is a well presented white tiled suite comprising a bath with shower above, sink, heated towel rail, a set of drawers and a W.C. In addition, there are two built-in vanity mirror cabinets

Walk along the corridor and you will find a second W.C. with a sink, next to the master bedroom. This bedroom has large sash windows allowing plenty of light to flood the room. There is space for a double bed, two bedside tables, two cupboards and a chest of drawers.

The second bedroom, also on this level, is carpeted with space to accommodate a double bed and a wardrobe

The kitchen is just beyond here, fully equipped with and has space for a table and chairs. The kitchen consists of a built-in fridge/freezer, washing machine, dishwasher and a double oven. There is plenty of work and storage space around the room and would be perfect for someone who loves cooking in a bright and spacious room. Opposite, there is a usueful under-stair cupboard.

Head upstairs into the airy living room, where there is space for a sofa, a couple of chairs and a coffee table in the centre. There are currently bookshelves surrounding the room and a desk space on the side, which could be used as an extended office. There is also eaves storage on the side of the room. The room remains bright throughout the day by means of Velux windows and on the other side of the room are the folding doors, which lead out to the fabulous south east facing roof terrace; with space for a large table and chairs, perfect for the summer months.

Share of Freehold – underlying leasehold of 999 years from 11 February 2012
Ground rent: Nil
Service charge: 40% share of the service charge. Last year the service charge was £529 in total
Council Tax Band C

Location

The property is located on Hayles Street between Elliotts Row and the highly sought-after West Square. All the local amenities Elephant and Castle has to offer is only moments away and both Borough and Waterloo are less than a mile away.
Introduction text for the mortgage calculator

Mortgage Calculator

Fill in the details below to estimate your monthly repayments:

Approximate monthly repayment:

For more information, please contact Winkworth's mortgage partner, Trinity Financial, on +44 (0)20 7267 9399 and speak to the Trinity team.

Stamp Duty Calculator

Fill in the details below to estimate your stamp duty

The above calculator above is for general interest only and should not be relied upon

6/14
Picture No. 14
Picture No. 11
Picture No. 12
Picture No. 07
Picture No. 06
Picture No. 09
Picture No. 10
Picture No. 13
Picture No. 08
Picture No. 03
Picture No. 04
Picture No. 05

Meet the Team

Our team at Winkworth Kennington Estate Agents are here to support and advise our customers when they need it most. We understand that buying, selling, letting or renting can be daunting and often emotionally meaningful. We are there, when it matters, to make the journey as stress-free as possible.

See all team members

Got a question about this property?

This site is protected by reCAPTCHA and the Google Privacy Policy and Terms of Service apply.

More Properties like this

Video Tour

Rennie Court, 11 Upper Ground, London, SE1

£2,380,000 Leasehold

Video Tour

Colnbrook Street, London, SE1

£1,100,000 Share of Freehold

Video Tour

Under Offer

Groveway, London, SW9

£895,000 Leasehold

Video Tour

Stannary Street, London, SE11

Offers in excess of £850,000 Leasehold

Video Tour

Under Offer

Lawn Lane, London, SW8

£795,000 Share of Freehold

Video Tour

Under Offer

McAuley Close, London, SE1

£769,950 Leasehold

Online Valuations Aren’t Worth The Paper They’re Printed On.

When online valuations don’t give you the whole picture - try Winkworth’s expert service. Get a free property appraisal. Accurate valuations from our local property experts. No obligation to list with Winkworth. Choose a time convenient for you with our online booking system.

Fill in your details and someone will be in touch soon:

You have provisionally booked a valuation for . Please confirm your details below

We don't have date info available for this property, but if you fill in your details below, someone will be in touch to arrange a date soon

Please fill in the required fields below marked with *

This site is protected by reCAPTCHA and the Google Privacy Policy and Terms of Service apply.