New Instruction
Handsworth Road, Tottenham, London, N17
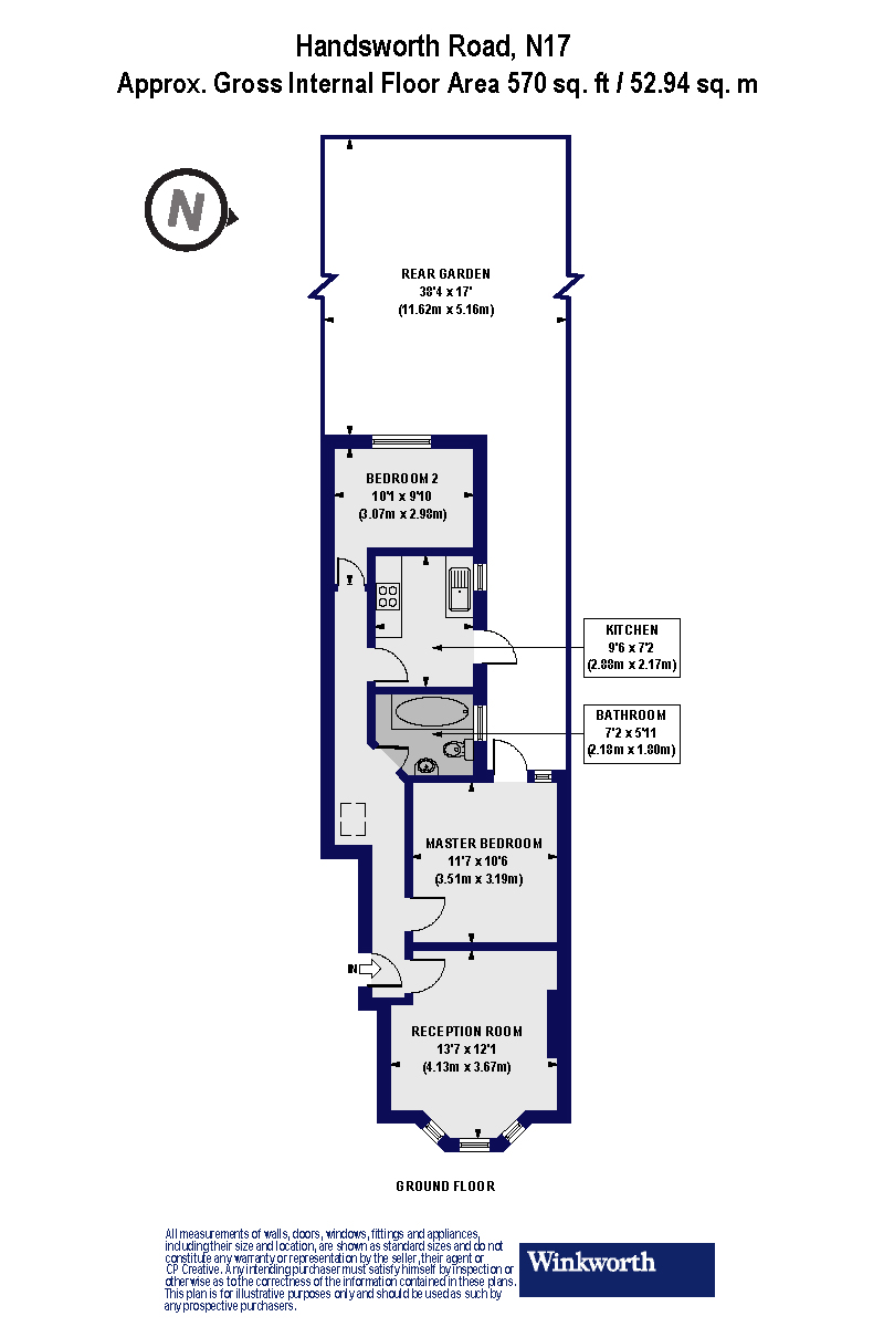
2 bedroom flat/apartment in Tottenham
£475,000 Freehold
- 2
- 1
- 1
PICTURES AND VIDEOS












KEY FEATURES
- Two Bedrooms
- Reception Room
- Period Features
- Seperate Kitchen
- Large Garden
- Freehold
KEY INFORMATION
- Tenure: Freehold
Description
Sole Agent
Measuring just under 570 sq. ft. across the ground floor, this beautifully presented two-bedroom flat comes complete with a private west-facing garden.
Accessed via a shared entrance, the flat opens into a bright and welcoming space with great proportions throughout. At the front sits a generous reception room with high ceilings and a large window that floods the room with light. The kitchen, positioned towards the rear, opens directly onto the garden. Two good-sized bedrooms and a modern bathroom complete the layout.
This part of South Tottenham has become one of North London’s most exciting neighbourhoods, popular with first-time buyers and young professionals. Philip Lane, just moments away, is home to a growing mix of cafés, cocktail bars, independent shops and the well-loved Palm pub and restaurant, which has fast become a local social hub. Green space is never far, with Downhills Park and Lordship Rec both within easy walking distance.
The location also offers excellent transport connections. Seven Sisters Underground and Tottenham Hale BR/Underground (with the Stansted Express) are close by, and the Cycle Superhighway links directly into central London, making this a convenient and well-connected home.
Please contact the sales team at Winkworth Harringay office to arrange an appointment to view 020 8800 5151- [email protected]
Winkworth.co.uk
Your local independently owned property agency with a network of 55 London offices.
Est 1835
Marketed by
Winkworth Harringay
Properties for sale in HarringayArrange a Viewing
Fill in the form below to arrange your property viewing.
Mortgage Calculator
Fill in the details below to estimate your monthly repayments:
Approximate monthly repayment:
For more information, please contact Winkworth's mortgage partner, Trinity Financial, on +44 (0)20 7267 9399 and speak to the Trinity team.
Stamp Duty Calculator
Fill in the details below to estimate your stamp duty
The above calculator above is for general interest only and should not be relied upon
Meet the Team
At Winkworth Harringay Estate Agents, we have a comprehensive team of knowledgeable and personable property experts who are excited about the local area. So whether you're buying, selling, renting or letting or simply need some advice, pop into our office on Green Lanes for the experience and the local knowledge you need.
See all team members