Skip to main content

MyWinkworth

New Instruction

Kitchen
External
Kitchen
Kitchen
Reception
Reception
Reception
Reception
Bedroom One
Bedroom One
Bedroom Two
Bedroom Two
Bathroom
6/14

Gowlett Road, Peckham Rye, London, SE15

2 bedroom flat/apartment

£750,000 Leasehold

  • Bedrooms 2
  • Bathrooms 1
  • Reception rooms 1
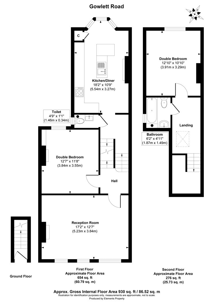
  • Floorplan

PICTURES AND VIDEOS

KEY FEATURES

  • Two Double Bedrooms
  • Split Level Victorian Flat
  • Large Reception
  • Eat In Kitchen-Diner
  • Modern Bathroom
  • Leasehold
  • Central Location

KEY INFORMATION

  • Tenure: Leasehold
  • Lease Length: 121 yrs left
  • Ground rent: £250.00 per annum
  • Council Tax Band: C
  • Local Authority: London Borough Of Southwark

Description

This fantastic, large split-level two double bedroom Victorian conversion flat is perfectly positioned on a sought-after residential street just off Peckham Rye, moments from Bellenden Road and Lordship Lane.

Beautifully presented throughout, the property combines classic period charm with contemporary style, offering an abundance of space and light.

Arranged over two floors, the flat features two generous double bedrooms, a stylish modern bathroom, and a spacious family eat-in kitchen-diner — perfect for cooking, dining, and entertaining. The impressive reception room boasts a striking feature fireplace and large windows that flood the space with natural light, creating a warm and welcoming atmosphere.

Located in one of South East London’s most desirable neighbourhoods, the property benefits from excellent transport links into Central London, including the East London Line and National Rail services from Peckham Rye Station. The area also offers an exceptional range of local amenities, from vibrant bars and acclaimed restaurants to charming independent shops and cafés.

If you’re searching for a stylish, spacious home in a prime SE15 location, this beautiful flat truly has it all.

Mobile phone coverage:
EE (Good outdoor and in-home)
Three (Good outdoor and variable in-home)
O2 (Good outdoor and in-home)
Vodaphone (Good outdoor and in-home)

(Potential purchasers are advised to seek their own advice as to the suitability of the services and mobile phone coverage, the above is for guidance only.)

Available broadband: Ultrafast Broadband: FTTP
Superfast Broadband: FTTC
Standard Broadband: ADSL
Networks in your area: Virgin media, Openreach, Hyperoptic
(Information supplied by Ofcom)

Flood Risk: Very low risk of surface water flooding / Very low risk river and sea flooding (Information supplied by gov.uk and purchasers are advised to seek their own legal advice)

Tenure: Leasehold

Local Council: Southwark / Tax Band: C
EPC Rating: To be Advised

Floor plan: Whilst every attempt has been made to ensure accuracy, all measurements are approximate and not to scale. The floor plan is for illustrative purposes only.

Marketed by

Winkworth Dulwich

Properties for sale in Dulwich

Arrange a Viewing

Fill in the form below to arrange your property viewing.

This site is protected by reCAPTCHA and the Google Privacy Policy and Terms of Service apply.
Introduction text for the mortgage calculator

Mortgage Calculator

Fill in the details below to estimate your monthly repayments:

Approximate monthly repayment:

For more information, please contact Winkworth's mortgage partner, Trinity Financial, on +44 (0)20 7267 9399 and speak to the Trinity team.

Stamp Duty Calculator

Fill in the details below to estimate your stamp duty

The above calculator above is for general interest only and should not be relied upon

6/14
Kitchen
External
Kitchen
Kitchen
Reception
Reception
Reception
Reception
Bedroom One
Bedroom One
Bedroom Two
Bedroom Two
Bathroom

Meet the Team

Our team at Winkworth Dulwich Estate Agents are here to support and advise our customers when they need it most. We understand that buying, selling, letting or renting can be daunting and often emotionally meaningful. We are there, when it matters, to make the journey as stress-free as possible.

See all team members

Got a question about this property?

This site is protected by reCAPTCHA and the Google Privacy Policy and Terms of Service apply.

More Properties like this

Under Offer

Marmora Road, East Dulwich, London, SE22

£825,000 Leasehold

Under Offer

Dunstans Road, East Dulwich, London, SE22

Offers in excess of £800,000 Share of Freehold

Under Offer

Lordship Lane, East Dulwich, London, SE22

Offers in excess of £800,000 Share of Freehold

Under Offer

Lordship Lane, East Dulwich, London, SE22

Offers in excess of £800,000 Share of Freehold

Beauval Road, East Dulwich, London, SE22

£800,000 Leasehold

Under Offer

Oakhurst Grove, East Dulwich, London, SE22

£799,950 Share of Freehold

Online Valuations Aren’t Worth The Paper They’re Printed On.

When online valuations don’t give you the whole picture - try Winkworth’s expert service. Get a free property appraisal. Accurate valuations from our local property experts. No obligation to list with Winkworth. Choose a time convenient for you with our online booking system.

Fill in your details and someone will be in touch soon:

You have provisionally booked a valuation for . Please confirm your details below

We don't have date info available for this property, but if you fill in your details below, someone will be in touch to arrange a date soon

Please fill in the required fields below marked with *

This site is protected by reCAPTCHA and the Google Privacy Policy and Terms of Service apply.