Under Offer
Goldhawk Road, London, W12
2 bedroom flat/apartment in London
£685,000 Share of Freehold
- 2
- 1
- 1
PICTURES AND VIDEOS














KEY FEATURES
- Reception Room
- Kitchen
- 2 Bedrooms
- Bathroom
- Garden
- Summer House
- 851 Sq Ft / 79 Sq M
- Council Tax Band D
- EPC Rating Band C
KEY INFORMATION
- Tenure: Share of Freehold
- Council Tax Band: D
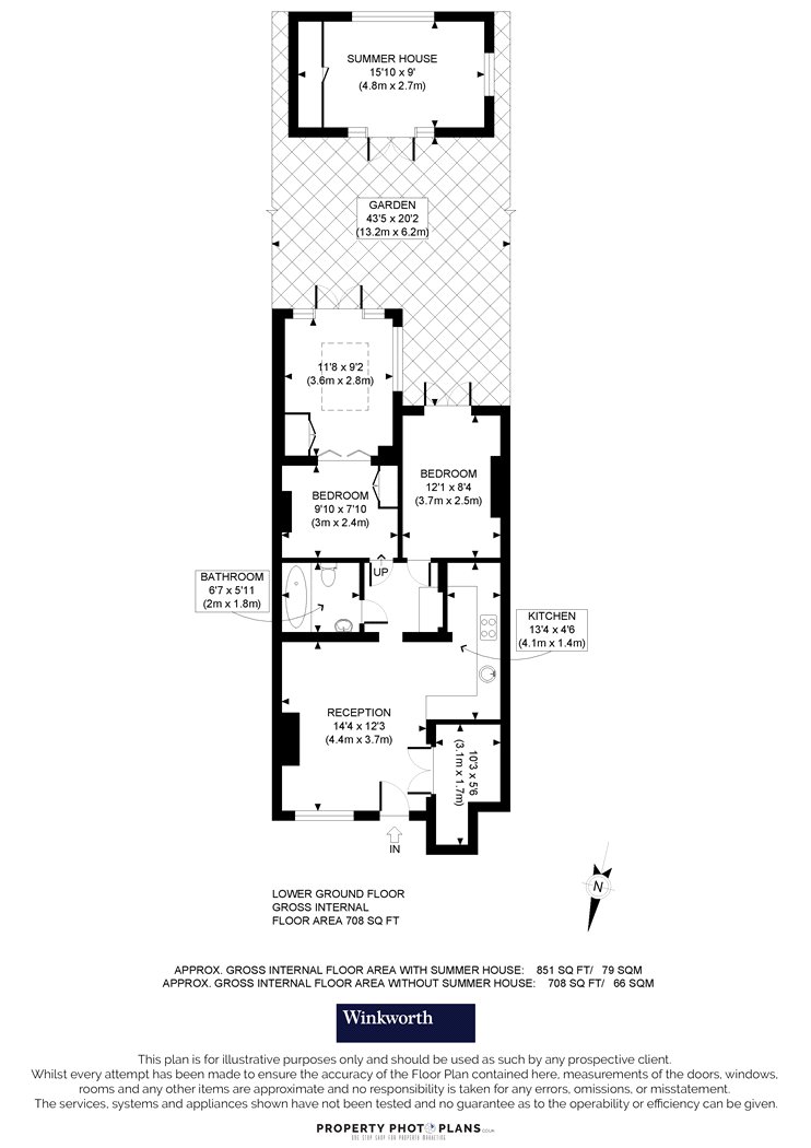
Description
The flat offers well proportioned accommodation comprising reception room with fireplace, kitchen, bathroom and two double bedrooms. The flat further benefits from a large private garden with summer house, ideal for use as a home office.
Share of Freehold with an underlying lease of 125 years from 28 June 2004
SC:- Ad hoc, just pay buildings insurance each year at a cost of c.£500 p.a. per flat
GR:- N/A
Location
Mortgage Calculator
Fill in the details below to estimate your monthly repayments:
Approximate monthly repayment:
For more information, please contact Winkworth's mortgage partner, Trinity Financial, on +44 (0)20 7267 9399 and speak to the Trinity team.
Stamp Duty Calculator
Fill in the details below to estimate your stamp duty
The above calculator above is for general interest only and should not be relied upon
Meet the Team
The office has been established on the corner of Brook Green for many years, where the team have in excess of 30 years' experience in the area, just with Winkworth. Our longevity has led to a great deal of repeat business, selling and renting the same properties many times over.
See all team members