Skip to main content

MyWinkworth

Sold

Picture No. 32
Picture No. 23
Picture No. 22
Picture No. 21
Picture No. 24
Picture No. 25
Picture No. 26
Picture No. 27
Picture No. 28
Picture No. 29
Picture No. 30
Picture No. 31
6/14

Gloucester Gardens, London, NW11

4 bedroom house in London

£1,585,000 Freehold

  • Bedrooms 4
  • Bathrooms 1
  • Reception rooms 1
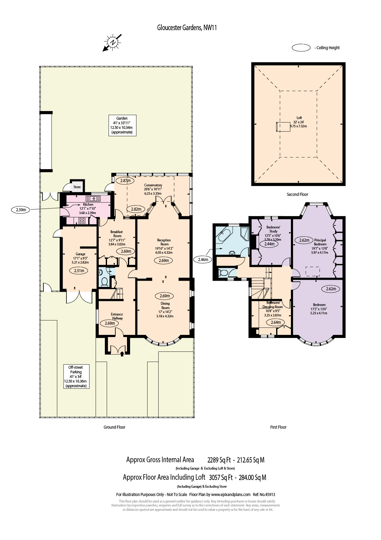
  • Floorplan

PICTURES AND VIDEOS

KEY FEATURES

  • Entrance Hallway
  • Reception Room
  • Dining Room
  • Kitchen
  • Principal Bedroom
  • Second Double Bedroom
  • Third Bedroom/Dressing Room
  • Fourth Bedroom/Study
  • Family Bathroom
  • Guest Cloakroom
  • Conservatory
  • Front & Rear Garden
  • Off Street Parking
  • Garage
  • EPC Rating: E
  • Council Tax Band: G

KEY INFORMATION

  • Tenure: Freehold

Description

A unique interior designed four bedroom detached house with off street parking and a garage situated within the heart of Golders Green.

The property is chain free and offers 2289 sq ft of spacious accommodation over two floors comprising an entrance porch and hall, reception room, dining room, breakfast room, kitchen, conservatory, principal bedroom, second bedroom, bedroom three/dressing room, bedroom four/study, family bathroom, guest cloakroom and a pretty rear garden with store and covered seating area.

Further benefits include a front garden and air conditioning units fitted to three bedrooms. Located 0.6m from Golders Green Underground station and 0.4m from the various shops, cafes, restaurants and places of worship in Golders Green.

In addition, there is potential to expand the property to the side, the rear and to convert the loft space, subject to the usual permissions.
Introduction text for the mortgage calculator

Mortgage Calculator

Fill in the details below to estimate your monthly repayments:

Approximate monthly repayment:

For more information, please contact Winkworth's mortgage partner, Trinity Financial, on +44 (0)20 7267 9399 and speak to the Trinity team.

Stamp Duty Calculator

Fill in the details below to estimate your stamp duty

The above calculator above is for general interest only and should not be relied upon

6/14
Picture No. 32
Picture No. 23
Picture No. 22
Picture No. 21
Picture No. 24
Picture No. 25
Picture No. 26
Picture No. 27
Picture No. 28
Picture No. 29
Picture No. 30
Picture No. 31

Meet the Team

Our team at Winkworth Golders Green Estate Agents are here to support and advise our customers when they need it most. We understand that buying, selling, letting or renting can be daunting and often emotionally meaningful. We are there, when it matters, to make the journey as stress-free as possible.

See all team members

Got a question about this property?

This site is protected by reCAPTCHA and the Google Privacy Policy and Terms of Service apply.

More Properties like this

Under Offer

North Square, London, NW11

£2,450,000 Freehold

The Ridgeway, London, NW11

£1,895,000 Freehold

The Ridgeway, London, NW11

£1,799,500 Freehold

Middleton Road, London, NW11

£1,795,000 Freehold

Princes Park Avenue, London, NW11

£1,650,000 Freehold

Dunstan Road, London, NW11

£1,495,000 Freehold

Online Valuations Aren’t Worth The Paper They’re Printed On.

When online valuations don’t give you the whole picture - try Winkworth’s expert service. Get a free property appraisal. Accurate valuations from our local property experts. No obligation to list with Winkworth. Choose a time convenient for you with our online booking system.

Fill in your details and someone will be in touch soon:

You have provisionally booked a valuation for . Please confirm your details below

We don't have date info available for this property, but if you fill in your details below, someone will be in touch to arrange a date soon

Please fill in the required fields below marked with *

This site is protected by reCAPTCHA and the Google Privacy Policy and Terms of Service apply.