Glebe Fields, Milford on Sea, Lymington, Hampshire, SO41
4 bedroom house in Milford on Sea
OIRO £630,000 Freehold
- 4
PICTURES AND VIDEOS















KEY INFORMATION
- Tenure: Freehold
Description
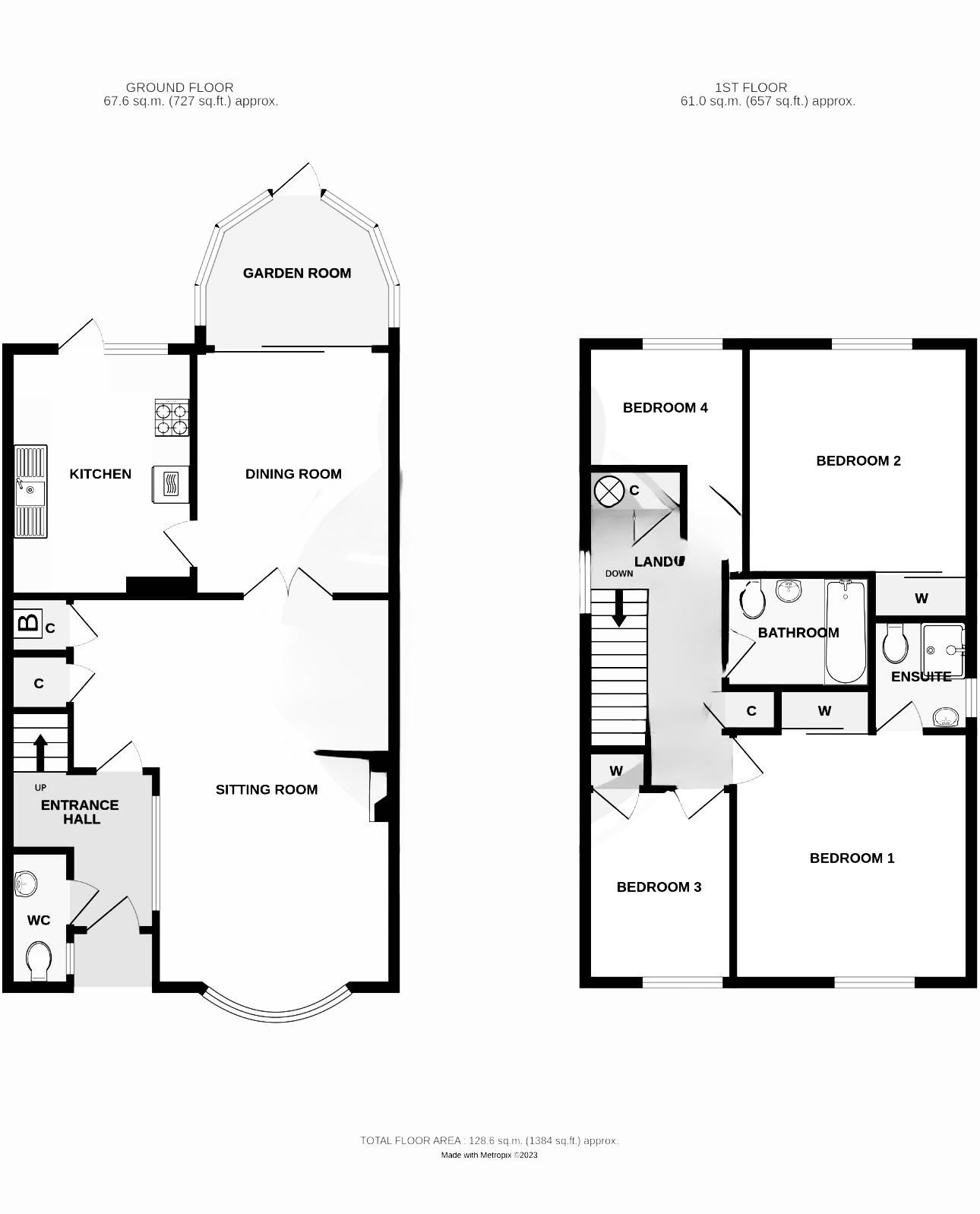
Entrance Hall:
Central heating radiator, ceiling light, door to:
Sitting Room:
UPVC double glazed bay window to the front, fireplace with surround and hearth, TV point, central heating radiators, wall lights, two storage cupboards (one housing Worcester gas boiler). Double doors to:
Dining Room:
Double glazed sliding patio doors to conservatory, ceiling light, central heating radiator.
Conservatory Room:
UPVC double glazed windows and door to rear garden, power points.
Kitchen:
Single drainer sink in set to the work surface with base and wall units, integrated double oven, four-ring gas hob with extractor, plumbing for dishwasher and washing machine, space for tall fridge/freezer, ceiling light, central heating radiator, UPVC window and door to rear garden.
Cloakroom:
Comprising of a low level WC, wash hand basin, central heating radiator, ceiling light, window.
First Floor Landing:
Access to roof space, central heating radiator, coats cupboard, double linen cupboard.
Principal Bedroom:
UPVC window, central heating radiator, ceiling and wall lights, built-in wardrobe. Door to:
Ensuite Shower Room:
Walk in shower, suite comprising of a low level WC, wash hand basin, shaver point, ceiling light, obscure UPVC window, central heating radiator.
Bedroom Two:
UPVC window, central heating radiator, ceiling light, built-in wardrobe.
Bedroom Three:
UPVC window, central heating radiator, ceiling light, built-in wardrobe.
Bedroom Four:
UPVC window, central heating radiator, ceiling light.
Family Bathroom:
Bath, low level WC, wash hand basin, shaver point, ceiling light, extractor, central heating radiator.
Rear Garden:
Rear garden with paved surface, shrub and flower borders, fenced and walled boundaries, side access.
Outside:
Front garden with lawn, shrub and flower borders, paved path to front door and side gate. Tarmac driveway to garage.
Tandem Garage:
Electric up and over door, power, lighting, window, personal door to garden.
Utilities
- Heating: Double Glazing, Electric, Gas Central
Risks
- Flood Risk: There has not been flooding in the last 5 years
Marketed by
Winkworth Milford On Sea
Properties for sale in Milford On SeaArrange a Viewing
Fill in the form below to arrange your property viewing.
Mortgage Calculator
Fill in the details below to estimate your monthly repayments:
Approximate monthly repayment:
For more information, please contact Winkworth's mortgage partner, Trinity Financial, on +44 (0)20 7267 9399 and speak to the Trinity team.
Stamp Duty Calculator
Fill in the details below to estimate your stamp duty
The above calculator above is for general interest only and should not be relied upon
Meet the Team
Our team are here to support and advise our customers when they need it most. We understand that buying, selling, letting or renting can be daunting and often emotionally meaningful. We are there, when it matters, to make the journey as stress-free as possible.
See all team members