Gascoigne Close, London, N17
1 bedroom flat/apartment in London
£250,000 Leasehold
- 1
- 1
- 1
PICTURES AND VIDEOS







KEY FEATURES
- One Bedroom
- Duplex Apartment
- Own Front Door
- Kitchen Diner
- Reception Room
- Downstairs WC
KEY INFORMATION
- Tenure: Leasehold
Description
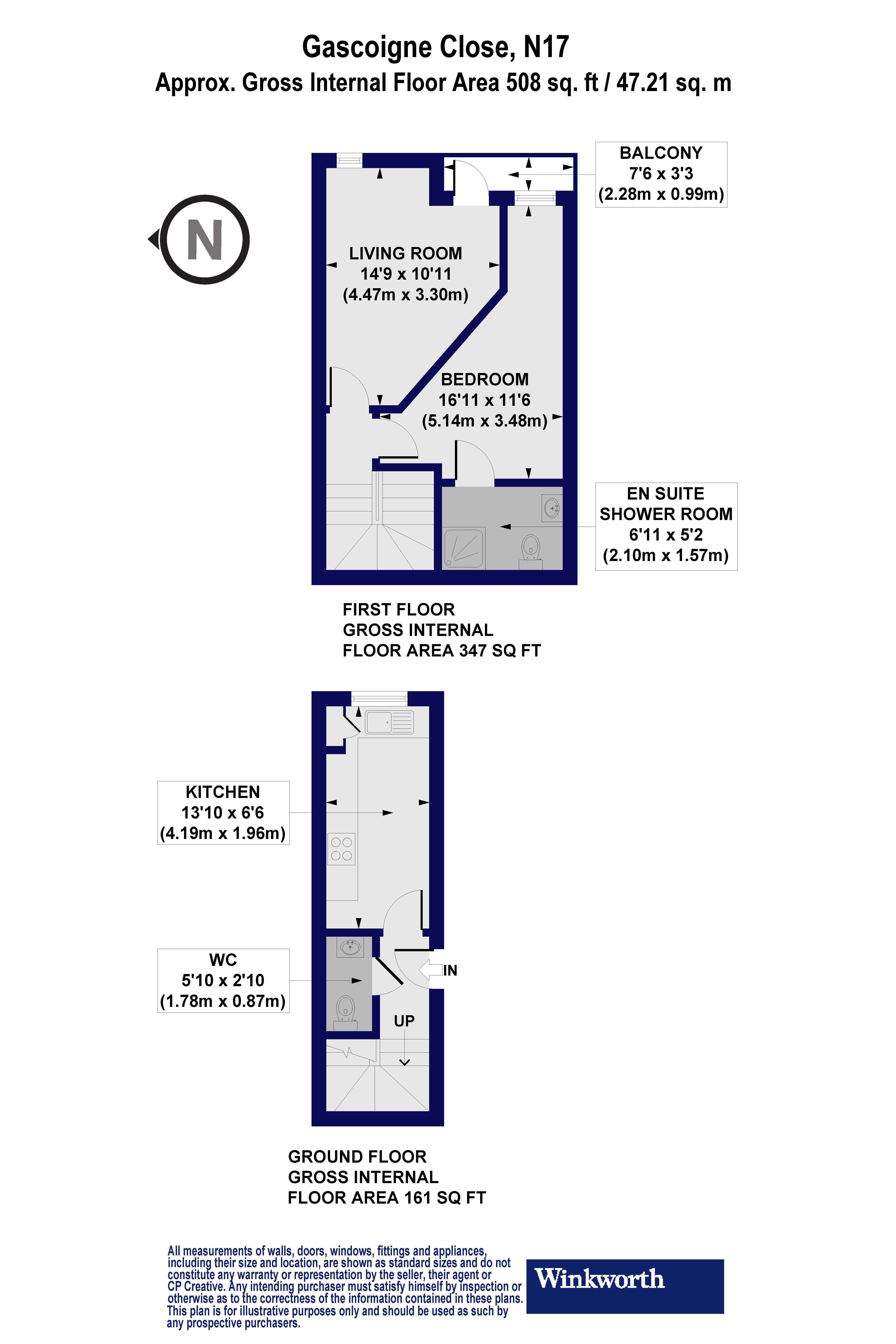
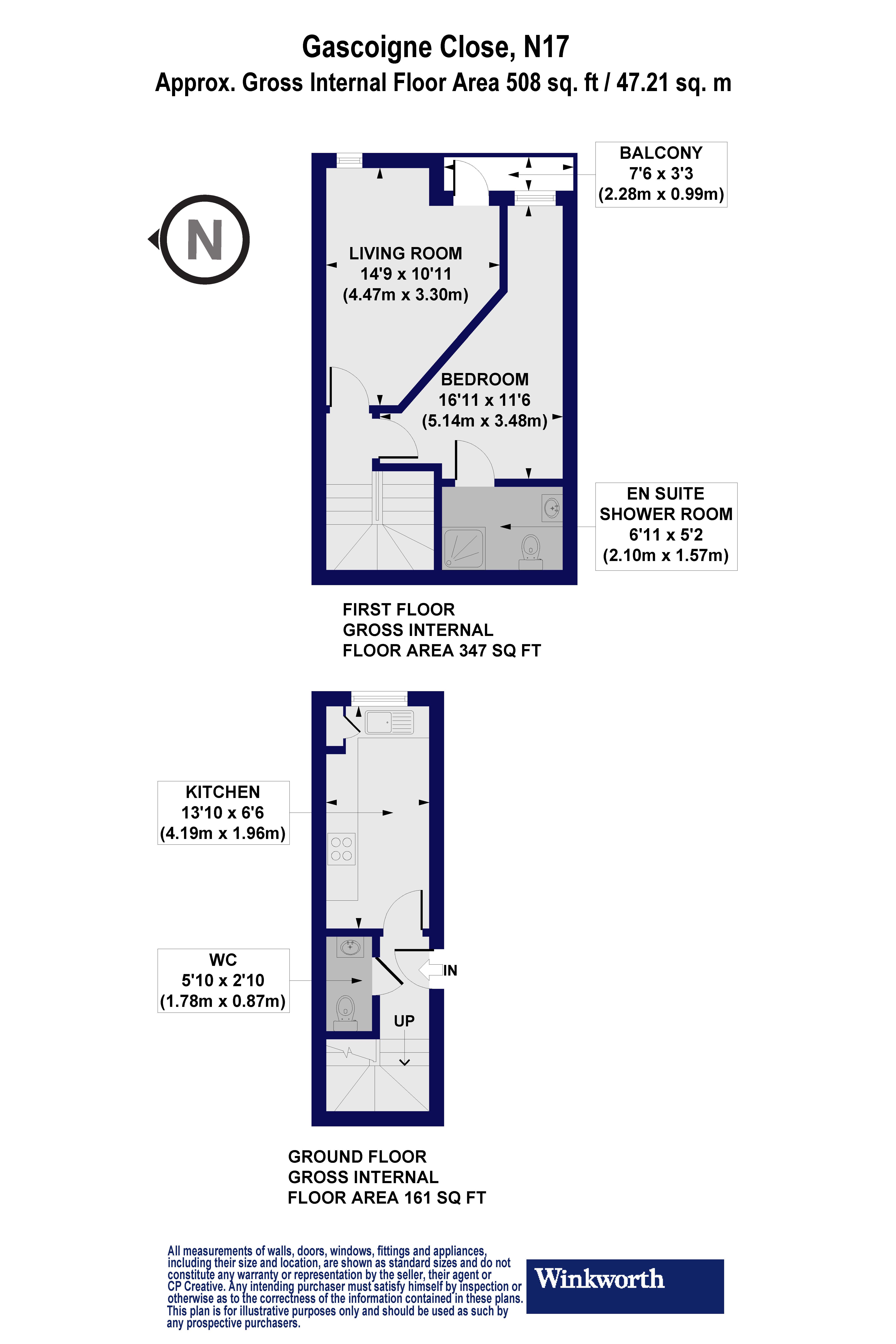
This one-bedroom duplex apartment is set across the ground and first floor of this purpose-built block.
The ground floor features a modern kitchen-diner, a convenient WC.
Upstairs, you'll find a well-proportioned bedroom with an en-suite shower room, along with a reception area that opens onto a private balcony.
Situated in an exciting and vibrant neighborhood currently undergoing an impressive regeneration program, this home is close to the historic Bruce Castle Park, complete with the Bruce Castle Museum and a playground. Additionally, Lordship Rec is within walking distance, leading to Downhills Park. Along the High Road, an array of restaurants, coffee shops, and pubs awaits your selection, including the thriving Bluecoats Pub, Fieldseat coffee shop, and the locally adored Peppers and Spice.
Conveniently, Bruce Grove Station and the newly refurbished and accessible White Hart Lane Station are within a ten-minute walk, offering direct access to Liverpool Street Station. Moreover, the Victoria Line (Zone 3) can be easily accessed from either the Overground line or local bus routes, placing central London within a 30-minute reach. Buses from the High Road conveniently connect to underground stations at Seven Sisters or Tottenham Hale (Stansted Express Link), and some routes extend into Hackney, Islington, and the West End.
Marketed by
Winkworth Harringay
Properties for sale in HarringayArrange a Viewing
Fill in the form below to arrange your property viewing.
Mortgage Calculator
Fill in the details below to estimate your monthly repayments:
Approximate monthly repayment:
For more information, please contact Winkworth's mortgage partner, Trinity Financial, on +44 (0)20 7267 9399 and speak to the Trinity team.
Stamp Duty Calculator
Fill in the details below to estimate your stamp duty
The above calculator above is for general interest only and should not be relied upon
Meet the Team
At Winkworth Harringay Estate Agents, we have a comprehensive team of knowledgeable and personable property experts who are excited about the local area. So whether you're buying, selling, renting or letting or simply need some advice, pop into our office on Green Lanes for the experience and the local knowledge you need.
See all team members