Skip to main content

MyWinkworth

Sold

Picture No. 02
Picture No. 17
Picture No. 18
Picture No. 16
Picture No. 13
Picture No. 12
Picture No. 06
Picture No. 15
Picture No. 14
Picture No. 10
Picture No. 11
Picture No. 09
Picture No. 07
Picture No. 08
Picture No. 04
Picture No. 03
Picture No. 05
6/14

Frome Road, London, N22

3 bedroom house in London

£750,000 Freehold

  • Bedrooms 3
  • Bathrooms 1
  • Reception rooms 1
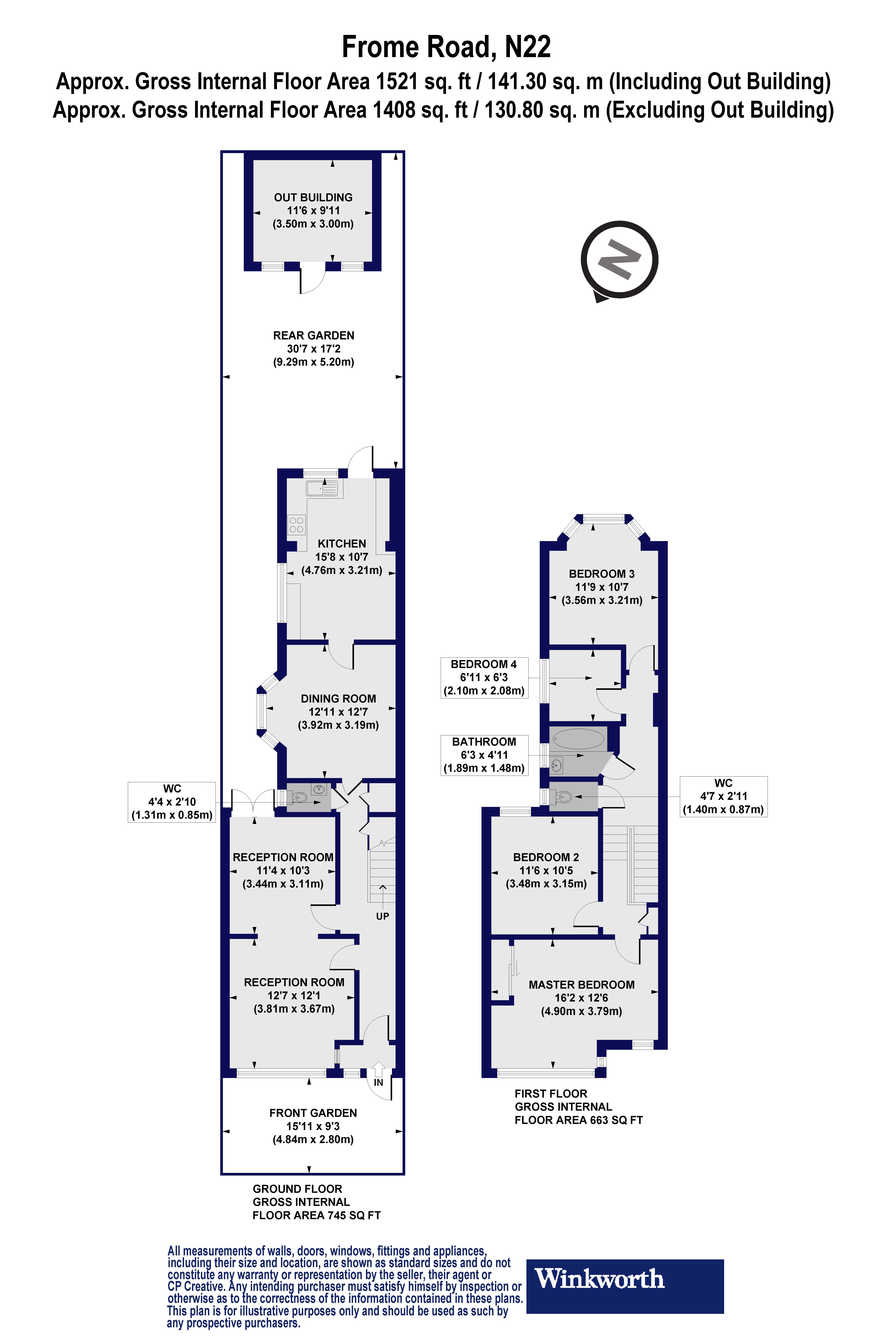
  • Floorplan

PICTURES AND VIDEOS

KEY FEATURES

  • Three/Four Bedrooms
  • Through Lounge
  • Dining Room
  • Seperate Kitchen
  • Downstairs Toilet
  • First Floor Bathroom
  • South Facing Garden
  • Garden Office
  • Potential to extend (STPP)

KEY INFORMATION

  • Tenure: Freehold

Description

Enviably located, this three/four bedroom, Victorian family home is set over 1521sqft and comes complete with South Facing garden.

Sole Agents. Chain Free.

The total accommodation is arranged over two floors and provides c130 Sq.m of living space.

Occupying a great spot right by Turnpike Lane station, this superb family home offers great scope to create an even more desirable home and with a creative eye you can convert the loft space and extend the ground floor with a side return extension. (subject to all the usual consents)

Accommodation comprises: Interconnecting reception rooms with large bay, dining room and kitchen to the rear opening onto rear garden. The ground floor also benefits from a WC. Moving up to the first floor, there are three spacious double bedrooms, a smaller home office/fourth bedroom and first floor family bathroom. The property also benefits from a garden office.

Found moments from Piccadilly Line Zone 3 Underground Station at Turnpike Lane. You are also a stone’s throw away from the Westbury with its fine selection of craft beers and IPA’s and great food.

Please contact the Sales department at Winkworth Harringay office to arrange an appointment to view 020 8800 [email protected]


Winkworth.co.uk

Your local independently owned property agency with a network of 60 London offices.


Est 1835
Introduction text for the mortgage calculator

Mortgage Calculator

Fill in the details below to estimate your monthly repayments:

Approximate monthly repayment:

For more information, please contact Winkworth's mortgage partner, Trinity Financial, on +44 (0)20 7267 9399 and speak to the Trinity team.

Stamp Duty Calculator

Fill in the details below to estimate your stamp duty

The above calculator above is for general interest only and should not be relied upon

6/14
Picture No. 02
Picture No. 17
Picture No. 18
Picture No. 16
Picture No. 13
Picture No. 12
Picture No. 06
Picture No. 15
Picture No. 14
Picture No. 10
Picture No. 11
Picture No. 09
Picture No. 07
Picture No. 08
Picture No. 04
Picture No. 03
Picture No. 05

Meet the Team

At Winkworth Harringay Estate Agents, we have a comprehensive team of knowledgeable and personable property experts who are excited about the local area. So whether you're buying, selling, renting or letting or simply need some advice, pop into our office on Green Lanes for the experience and the local knowledge you need.

See all team members

Got a question about this property?

This site is protected by reCAPTCHA and the Google Privacy Policy and Terms of Service apply.

More Properties like this

New Instruction

Warham Road, London, N4

Guide Price £1,275,000 Freehold

Under Offer

Atterbury Road, Finsbury Park, N4

Guide Price £1,275,000 Freehold

Under Offer

Sydney Road, London, N8

Guide Price £1,150,000 Freehold

Jansons Road, London, N15

£1,100,000 Freehold

Under Offer

Hewitt Road, London, N8

Guide Price £1,100,000 Freehold

Under Offer

Lausanne Road, London, N8

Guide Price £1,050,000 Freehold

Online Valuations Aren’t Worth The Paper They’re Printed On.

When online valuations don’t give you the whole picture - try Winkworth’s expert service. Get a free property appraisal. Accurate valuations from our local property experts. No obligation to list with Winkworth. Choose a time convenient for you with our online booking system.

Fill in your details and someone will be in touch soon:

You have provisionally booked a valuation for . Please confirm your details below

We don't have date info available for this property, but if you fill in your details below, someone will be in touch to arrange a date soon

Please fill in the required fields below marked with *

This site is protected by reCAPTCHA and the Google Privacy Policy and Terms of Service apply.