Skip to main content

MyWinkworth

Sold

Picture No. 05
Picture No. 07
Picture No. 13
Picture No. 08
Picture No. 09
Picture No. 10
Picture No. 03
Picture No. 14
Picture No. 04
Picture No. 06
Picture No. 11
Picture No. 12
6/14

Fieldway Crescent, London, N5

2 bedroom flat/apartment in London

£650,000 Leasehold

  • Bedrooms 2
  • Bathrooms 1
  • Reception rooms 1
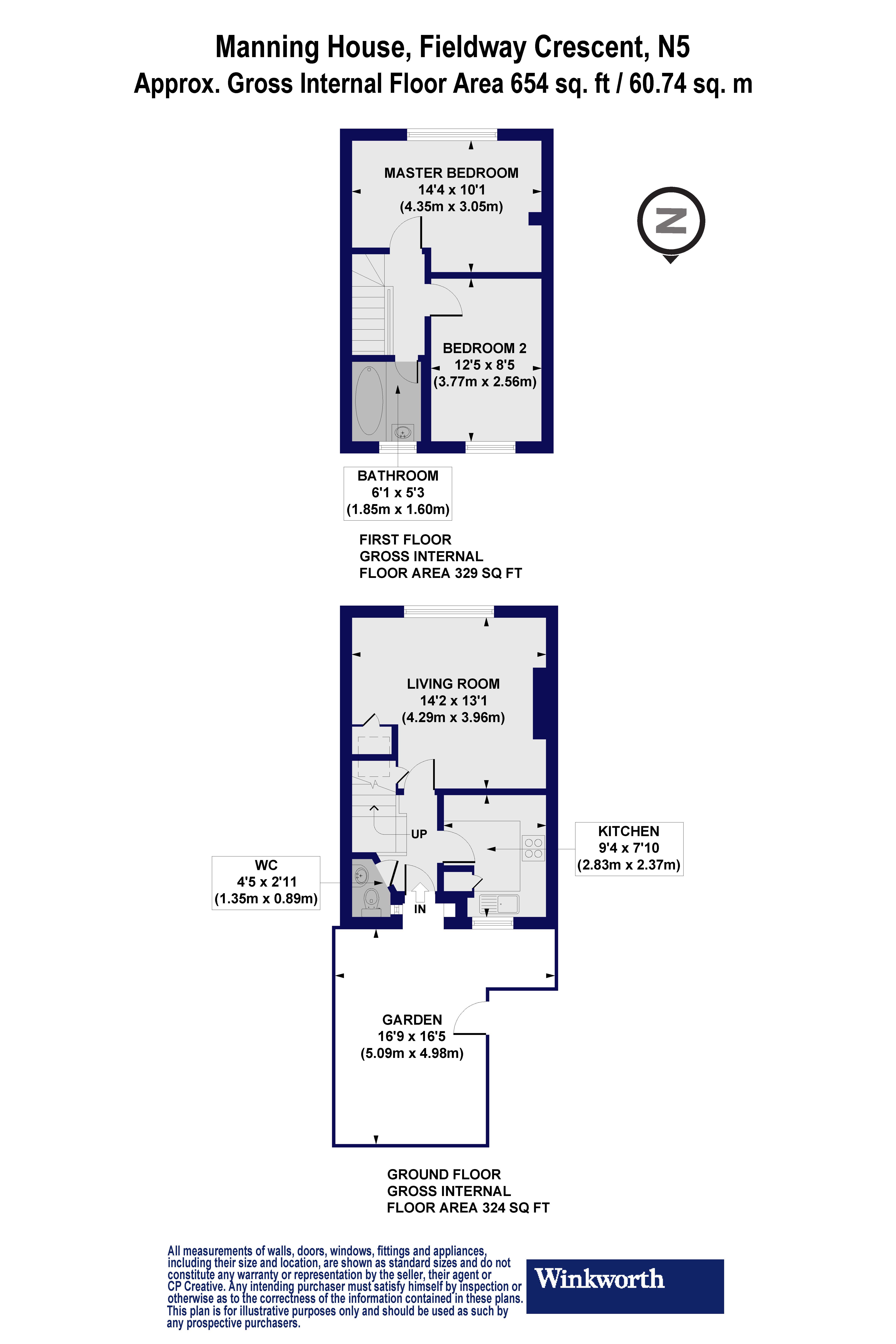
  • Floorplan

PICTURES AND VIDEOS

KEY INFORMATION

  • Tenure: Leasehold

Description

A sensational, two double bedroom, split level maisonette positioned on a quiet tree lined street in Highbury, N5. Set across the ground and first floor, after entering through your own front door, you are welcomed into a wonderfully bright, south facing reception room with ample space for dining and cleverly inbuilt storage. The kitchen is well equipped and includes built in appliances with plentiful worktop and cupboards alike. Both bedrooms are genuine doubles while the property internally is complete with a family bathroom and separate wc. Externally, the property benefits from a private garden with paving and decked area which further opens out to a larger communal garden.
Fieldway Crescent is set at the entrance to the green space of Highbury Fields with its cacophony of sporting activities and play spaces. Situated a short walk away is the prestigious Highbury Barn which offers a number of renowned local amenities; including Godfrey’s Butchers, Bourne’s Fishmongers, La Fromagerie, and Highbury Vintners.
Transport links are a short distance away and well serviced by a selection of convenient bus routes, Highbury and Islington Station (Victoria Line and Overground), Arsenal Underground Station (Piccadilly Line), as well as, and within close proximity is Drayton Park Overground Station which takes you directly to Moorgate.
Introduction text for the mortgage calculator

Mortgage Calculator

Fill in the details below to estimate your monthly repayments:

Approximate monthly repayment:

For more information, please contact Winkworth's mortgage partner, Trinity Financial, on +44 (0)20 7267 9399 and speak to the Trinity team.

Stamp Duty Calculator

Fill in the details below to estimate your stamp duty

The above calculator above is for general interest only and should not be relied upon

6/14
Picture No. 05
Picture No. 07
Picture No. 13
Picture No. 08
Picture No. 09
Picture No. 10
Picture No. 03
Picture No. 14
Picture No. 04
Picture No. 06
Picture No. 11
Picture No. 12

Meet the Team

From our office on Highbury Park, we pride ourselves on our unrivalled local knowledge. Many of the team here at Winkworth Highbury Estate Agents live locally and whether it's sales, lettings or property management, we're always striving to provide an unparalleled service and tailor it to your exacting needs.

See all team members

Got a question about this property?

This site is protected by reCAPTCHA and the Google Privacy Policy and Terms of Service apply.

More Properties like this

Highbury Stadium Square, London, N5

Offers in excess of £1,400,000 Leasehold

New Instruction

Digby Crescent, London, N4

£1,200,000 Share of Freehold

Under Offer

Alexandra Grove, London, N4

Offers over £1,150,000 Share of Freehold

Under Offer

Mountgrove Road, London, N5

Offers in excess of £1,150,000 Leasehold

Under Offer

Wilberforce Road, Highbury, London, N4

£1,100,000 Leasehold

Under Offer

Aberdeen Road, London, N5

£1,000,000 Leasehold

Online Valuations Aren’t Worth The Paper They’re Printed On.

When online valuations don’t give you the whole picture - try Winkworth’s expert service. Get a free property appraisal. Accurate valuations from our local property experts. No obligation to list with Winkworth. Choose a time convenient for you with our online booking system.

Fill in your details and someone will be in touch soon:

You have provisionally booked a valuation for . Please confirm your details below

We don't have date info available for this property, but if you fill in your details below, someone will be in touch to arrange a date soon

Please fill in the required fields below marked with *

This site is protected by reCAPTCHA and the Google Privacy Policy and Terms of Service apply.