Skip to main content

MyWinkworth

Sold

Picture No. 15
Picture No. 03
Picture No. 09
Picture No. 14
Picture No. 06
Picture No. 04
Picture No. 05
Picture No. 21
Picture No. 23
Picture No. 07
6/14

Epple Road, London, SW6

2 bedroom flat/apartment in London

£899,950 Leasehold

  • Bedrooms 2
  • Bathrooms 1
  • Reception rooms 1
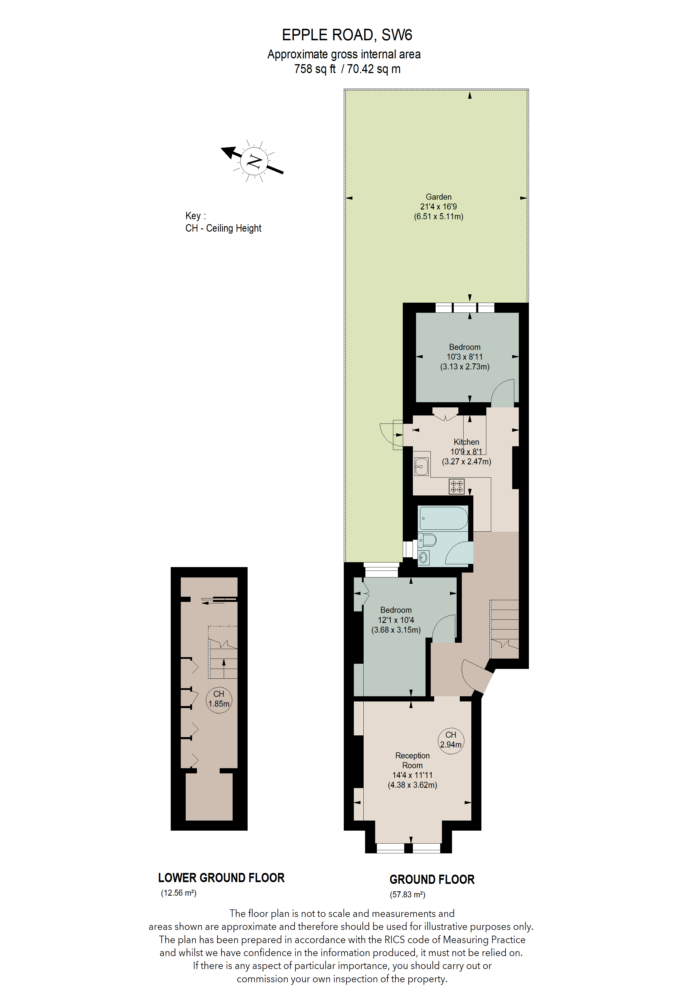
  • Dimensions 758 sq ft
    70 sq m
  • Floorplan

PICTURES AND VIDEOS

KEY INFORMATION

  • Tenure: Leasehold
  • Lease Length: 137 yrs left
  • Service charge: £250.00 per annum
  • Council Tax Band: E

Description

Located on one of the most popular roads in Parsons Green, this two double bedroom flat is in immaculate condition throughout with ample potential to extend (subject to the usual planning consents)

The property comprises a light and bright reception room with wood flooring and a gas fireplace. There is a separate eat in modern, fully fitted kitchen that has a door leading out onto the large garden. There are two double bedrooms that are served by a bathroom. On the lower ground floor there is a utility room with 2.5 meters of hanging closets and fully finished built in shelving. There is potential to extend into the side return and rear of the property, as well as a basement conversion.
Epple Road is located south of the Fulham Road in central Parsons Green, only moments from Parsons Green Underground Station. Epple Road absorbs the village atmosphere of this highly sought after location, with a selection of some of the area's best pubs, cafes and shops nearby.
Introduction text for the mortgage calculator

Mortgage Calculator

Fill in the details below to estimate your monthly repayments:

Approximate monthly repayment:

For more information, please contact Winkworth's mortgage partner, Trinity Financial, on +44 (0)20 7267 9399 and speak to the Trinity team.

Stamp Duty Calculator

Fill in the details below to estimate your stamp duty

The above calculator above is for general interest only and should not be relied upon

6/14
Picture No. 15
Picture No. 03
Picture No. 09
Picture No. 14
Picture No. 06
Picture No. 04
Picture No. 05
Picture No. 21
Picture No. 23
Picture No. 07

Meet the Team

Our knowledgeable, friendly team are on hand to help whether you're buying, selling or renting. While we favour the local approach, by working closely with our London and national network alongside dedicated Corporate Services, marketing and PR departments, we give our clients an unparalleled advantage, matching homes with buyers and tenants throughout London and the UK. Please come and talk to us about your property requirements, and get to know the team from the Winkworth Estate Agents in Fulham.

See all team members

Got a question about this property?

This site is protected by reCAPTCHA and the Google Privacy Policy and Terms of Service apply.

More Properties like this

The Piper Building, Peterborough Road, Fulham, SW6

£1,300,000 Leasehold

New Instruction

Hestercombe Avenue, London, SW6

£1,000,000 Share of Freehold

Under Offer

Edenvale Street, London, SW6

£1,000,000 Leasehold

Moore Park Road, Fulham, London, SW6

£995,000 Share of Freehold

Ranelagh Gardens, London, SW6

£899,950 Share of Freehold

Under Offer

Greyhound Road, London, W6

£799,950 Leasehold

Online Valuations Aren’t Worth The Paper They’re Printed On.

When online valuations don’t give you the whole picture - try Winkworth’s expert service. Get a free property appraisal. Accurate valuations from our local property experts. No obligation to list with Winkworth. Choose a time convenient for you with our online booking system.

Fill in your details and someone will be in touch soon:

You have provisionally booked a valuation for . Please confirm your details below

We don't have date info available for this property, but if you fill in your details below, someone will be in touch to arrange a date soon

Please fill in the required fields below marked with *

This site is protected by reCAPTCHA and the Google Privacy Policy and Terms of Service apply.