Skip to main content

MyWinkworth

Picture No. 07
Picture No. 09
Picture No. 13
Picture No. 11
Picture No. 03
Picture No. 05
Picture No. 06
Picture No. 10
Picture No. 04
Picture No. 12
Picture No. 08
6/14

Englefield Road, London, N1

1 bedroom flat/apartment in London

Offers in excess of £475,000 Share of Freehold

  • Bedrooms 1
  • Bathrooms 1
  • Reception rooms 1
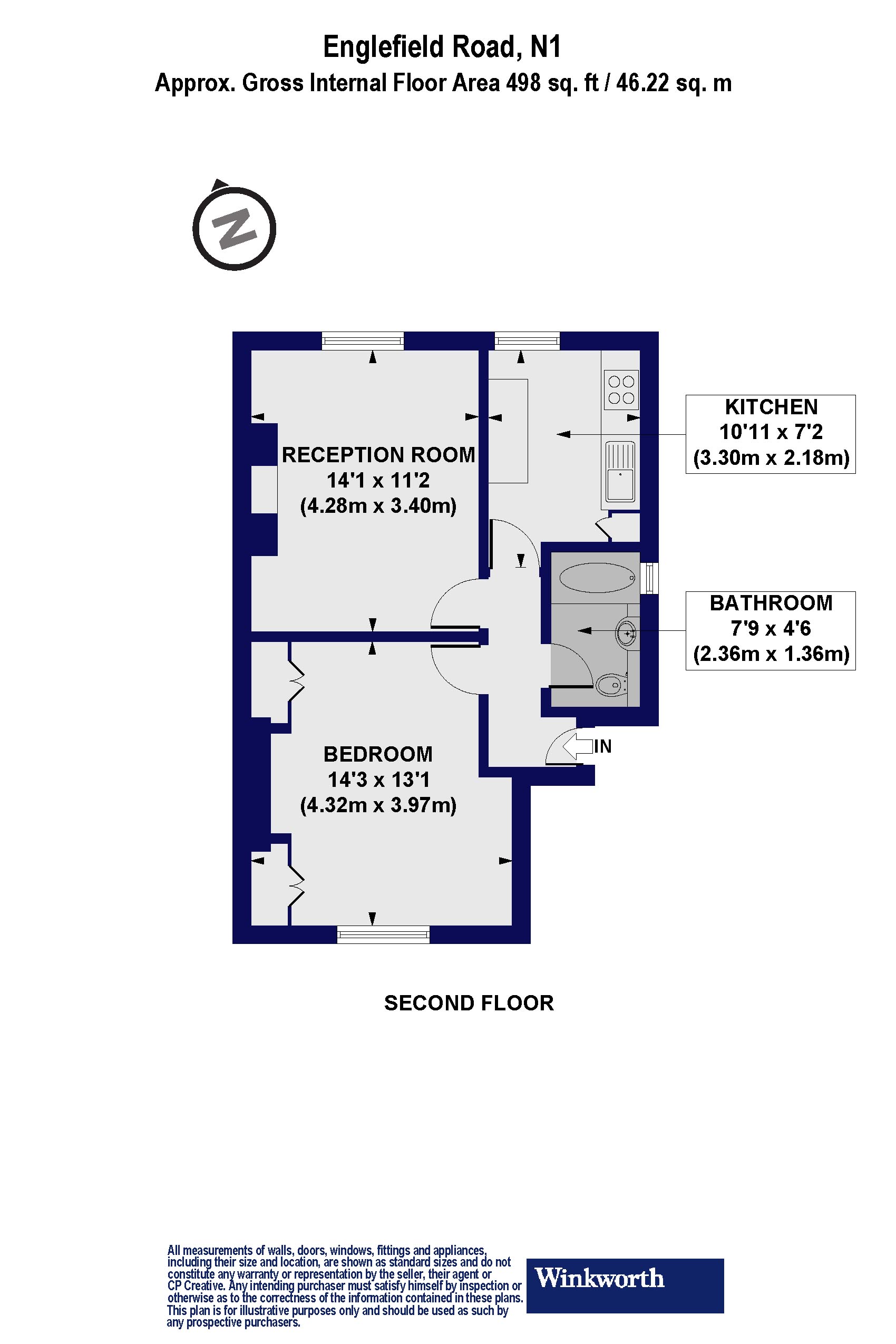
  • Dimensions 498 sq ft
    46 sq m
  • Floorplan

PICTURES AND VIDEOS

KEY FEATURES

  • Share of freehold
  • Chain-free
  • Permit parking
  • South - North facing

KEY INFORMATION

  • Tenure: Share of Freehold
  • Council Tax Band: D

Description

Standing at 498 sq. ft. this lovely one bedroom flat on a leafy, residential street in Islington is offered to the market chain-free.

The property is located on the top floor of a stunning Edwardian period semi-detached property and offers beautiful sash windows. The property comprises of one South facing bedroom over looking the back garden, a family bathroom with bathtub, a fitted seperate kitchen and a large reception room.

Englefield Road is an exceptionally desirable, tree lined, residential street located between Essex Road and De Beauvoir and is within easy reach of the restaurants, bars and boutique shops on Upper Street as well as being just moments from a terrific selection of restaurants and independent shops, including the iconic De Beauvoir Deli, on Southgate Road. Transport to the City and Canary Wharf is easily facilitated by the overground services from Essex Road and various bus routes along Southgate road whilst the frequent buses on Essex Road provide easy access to the West End. Highbury and Islington station offers the closest underground service on the Victoria line whilst Angel station on the Northern line is also within easy reach. Kings Cross is only a couple of stops away and from here international links are facilitated from St Pancras.

Marketed by

Winkworth Islington

Properties for sale in Islington

Arrange a Viewing

Fill in the form below to arrange your property viewing.

This site is protected by reCAPTCHA and the Google Privacy Policy and Terms of Service apply.
Introduction text for the mortgage calculator

Mortgage Calculator

Fill in the details below to estimate your monthly repayments:

Approximate monthly repayment:

For more information, please contact Winkworth's mortgage partner, Trinity Financial, on +44 (0)20 7267 9399 and speak to the Trinity team.

Stamp Duty Calculator

Fill in the details below to estimate your stamp duty

The above calculator above is for general interest only and should not be relied upon

6/14
Picture No. 07
Picture No. 09
Picture No. 13
Picture No. 11
Picture No. 03
Picture No. 05
Picture No. 06
Picture No. 10
Picture No. 04
Picture No. 12
Picture No. 08

Meet the Team

Our knowledgeable, friendly team here at Winkworth Islington Estate Agents are on hand to help whether you're buying, selling or renting. While we favour the local approach, by working closely with our London and national network alongside dedicated Corporate Services, marketing and PR departments, we give our clients an unparalleled advantage, matching homes with buyers and tenants throughout London and the UK.

See all team members

Got a question about this property?

This site is protected by reCAPTCHA and the Google Privacy Policy and Terms of Service apply.

More Properties like this

Nile Street, London, N1

£1,400,000 Share of Freehold

Under Offer

Richmond Avenue, London, N1

Offers in excess of £1,250,000 Leasehold

Duncan Terrace, London, N1

£1,250,000 Share of Freehold

Under Offer

Penton Street, London, N1

Offers in excess of £1,100,000 Leasehold

Under Offer

Barnsbury Park, London, N1

£900,000 Leasehold

Prior Bolton Street, Highbury Corner, London, N1

Offers in excess of £850,000 Leasehold

Online Valuations Aren’t Worth The Paper They’re Printed On.

When online valuations don’t give you the whole picture - try Winkworth’s expert service. Get a free property appraisal. Accurate valuations from our local property experts. No obligation to list with Winkworth. Choose a time convenient for you with our online booking system.

Fill in your details and someone will be in touch soon:

You have provisionally booked a valuation for . Please confirm your details below

We don't have date info available for this property, but if you fill in your details below, someone will be in touch to arrange a date soon

Please fill in the required fields below marked with *

This site is protected by reCAPTCHA and the Google Privacy Policy and Terms of Service apply.