Skip to main content

MyWinkworth

Sold

Picture No. 08
Picture No. 05
Picture No. 13
Picture No. 04
Picture No. 11
Picture No. 03
Picture No. 07
Picture No. 10
Picture No. 12
Picture No. 02
Picture No. 06
Picture No. 09
6/14

Elphinstone Street, Highbury, London, N5

3 bedroom house in Highbury

£1,250,000 Freehold

  • Bedrooms 3
  • Bathrooms 1
  • Reception rooms 1
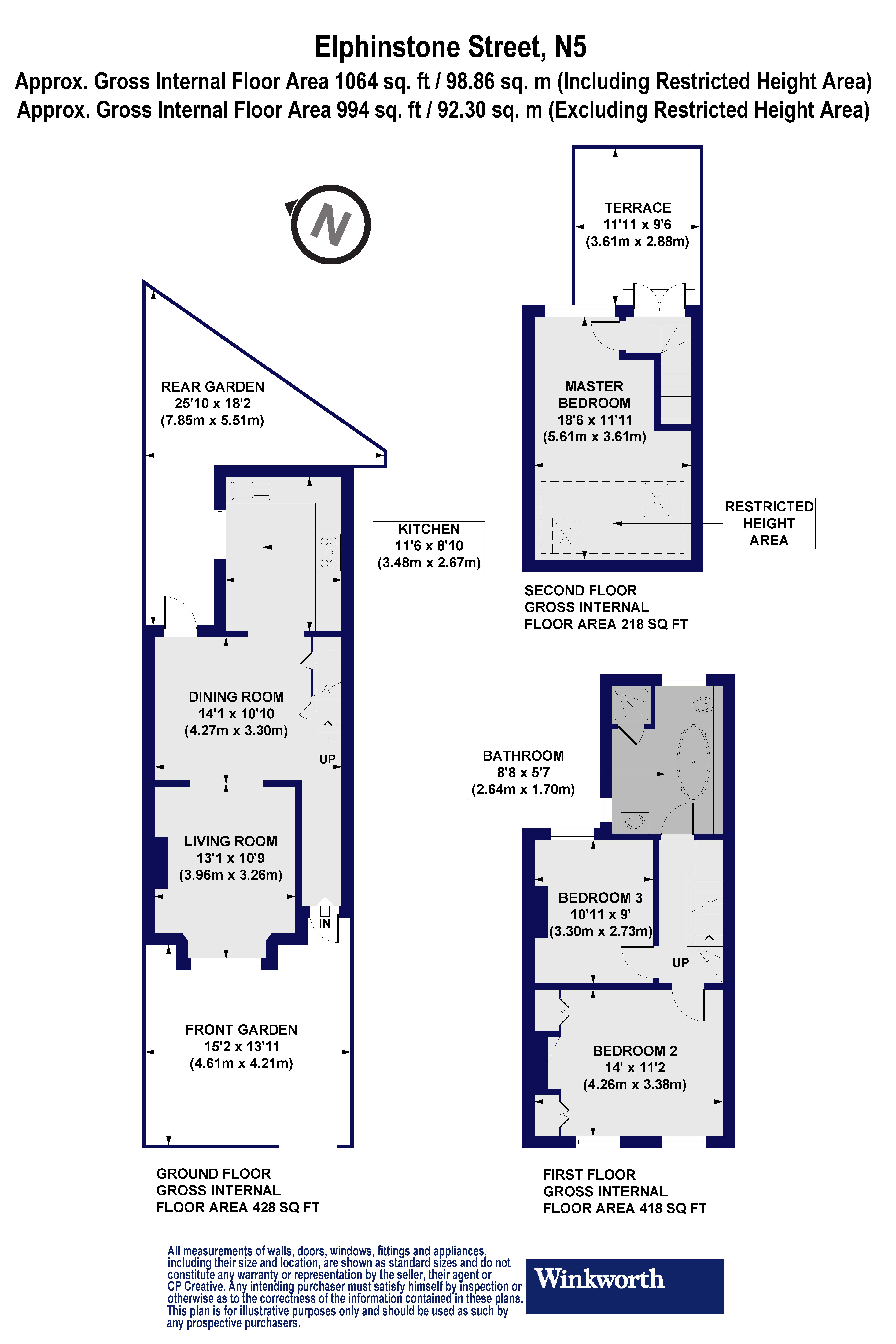
  • Floorplan

PICTURES AND VIDEOS

KEY INFORMATION

  • Tenure: Freehold
  • Council Tax Band: E

Description

Set on a peaceful cul-de-sac just off Avenell road is this charming three-bedroom Victorian house.
The property has been beautifully finished and offers light filled and well proportioned rooms which seamlessly flow to create a wonderful family home. The ground floor provides the most fantastic open plan space with an abundance of period features which emphasise the Victorian charm, wooden floors and ornate cornicing feature alongside a feature fireplace and custom inbuilt storage. The well-appointed kitchen is located to the rear of the house and offers ample functional space whilst overlooking the rear garden.
Set over the first floor on the half landing is a generous and well-designed family bathroom which has been finished in a contemporary style with freestanding roll top bath and separate shower. The master bedroom is located to the front of the house and offers commanding views directly down the treelined street whilst a second double bedroom is located to the rear.
The third large bedroom occupies the entire top floor and benefits from lots of light and access to the private secluded roof terrace.
The house has been well maintained under its current ownership and offers a perfect opportunity for upsizers and downsizers alike in a most convenient, yet peaceful location.
Set in this highly desirable street, the house is perfectly set for easy living. The village atmosphere at Highbury barn is just a short distance away along with numerous independent shops, cafes and restaurants, whilst the property itself sits comfortably within the catchment area of a number of outstanding schools. An array of transport links offer effortless access across London with Arsenal tube providing the closest underground links on the Piccadilly line and Finsbury park station also within easy reach. Numerous bus services located on Blackstock road offer routes to the City, West End and Angel and international transport is facilitated from St Pancras.
Introduction text for the mortgage calculator

Mortgage Calculator

Fill in the details below to estimate your monthly repayments:

Approximate monthly repayment:

For more information, please contact Winkworth's mortgage partner, Trinity Financial, on +44 (0)20 7267 9399 and speak to the Trinity team.

Stamp Duty Calculator

Fill in the details below to estimate your stamp duty

The above calculator above is for general interest only and should not be relied upon

6/14
Picture No. 08
Picture No. 05
Picture No. 13
Picture No. 04
Picture No. 11
Picture No. 03
Picture No. 07
Picture No. 10
Picture No. 12
Picture No. 02
Picture No. 06
Picture No. 09

Meet the Team

From our office on Highbury Park, we pride ourselves on our unrivalled local knowledge. Many of the team here at Winkworth Highbury Estate Agents live locally and whether it's sales, lettings or property management, we're always striving to provide an unparalleled service and tailor it to your exacting needs.

See all team members

Got a question about this property?

This site is protected by reCAPTCHA and the Google Privacy Policy and Terms of Service apply.

More Properties like this

Video Tour

Wilberforce Road, London, N4

£1,990,000 Freehold

Under Offer

Herrick Road, London, N5

£1,715,000 Freehold

Under Offer

Plimsoll Road, London, N5

Offers in excess of £1,600,000 Freehold

Under Offer

Riversdale Road, Highbury, London, N5

£1,400,000 Freehold

Under Offer

Gillespie Road, London, N5

£1,350,000 Freehold

Under Offer

Laura Terrace, London, N4

£1,350,000 Freehold

Online Valuations Aren’t Worth The Paper They’re Printed On.

When online valuations don’t give you the whole picture - try Winkworth’s expert service. Get a free property appraisal. Accurate valuations from our local property experts. No obligation to list with Winkworth. Choose a time convenient for you with our online booking system.

Fill in your details and someone will be in touch soon:

You have provisionally booked a valuation for . Please confirm your details below

We don't have date info available for this property, but if you fill in your details below, someone will be in touch to arrange a date soon

Please fill in the required fields below marked with *

This site is protected by reCAPTCHA and the Google Privacy Policy and Terms of Service apply.