Skip to main content

MyWinkworth

Sold

Reception Area Pt 1
Kitchen-Reception
External Part One
Garden Part One
Reception Area Pt 2
Kitchen-Reception
External Part Two
Kitchen Area
Bedroom One Part 1
Bedroom One Part 2
Bedroom Two Part 1
Bedroom Two Part 2
Bathroom
Reception Area Pt 3
Garden Part Two
6/14

Derwent Grove, East Dulwich, London, SE22

2 bedroom flat/apartment

Offers in excess of £600,000 Leasehold

  • Bedrooms 2
  • Bathrooms 1
  • Reception rooms 1
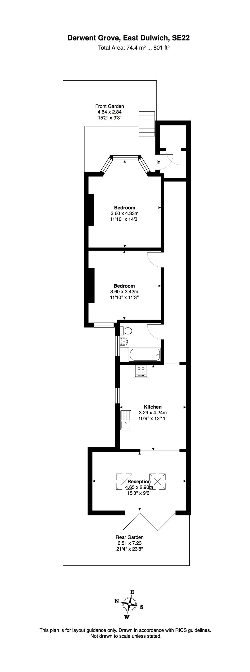
  • Floorplan

PICTURES AND VIDEOS

KEY FEATURES

  • Two Double Bedrooms
  • Garden Flat
  • Open Plan Kitchen-Living
  • Modern Bathroom
  • Private Garden
  • Leasehold
  • Chain Free

KEY INFORMATION

  • Tenure: Leasehold
  • Lease Length: 170 yrs left

Description

A great opportunity to purchase this large two double bedroom flat that has been let for nearly 20 years.

This garden flat is situated in a prime central East Dulwich location, close to East Dulwich station, on a quiet no through road with residents permit parking. The property offers two good sized double bedrooms, modern bathroom and an open plan kitchen-living, under floor heating (in extension), and bi-fold doors leading out to a private garden to rear. This property has been an exceptionally popular rental property for many years. It is perfectly situated to benefit from easy access to the bars, restaurants, shops and cinema on Lordship Lane as well as direct transport links into Central London via East Dulwich (3-minute walk) or Denmark Hill station including East London tube connections. Offered to the market chain free with early viewing recommended. Please note, the advertising photos were taken three years ago, after the landlord commissioned renovations.

Leasehold: 173 years

Council Tax Band B
Introduction text for the mortgage calculator

Mortgage Calculator

Fill in the details below to estimate your monthly repayments:

Approximate monthly repayment:

For more information, please contact Winkworth's mortgage partner, Trinity Financial, on +44 (0)20 7267 9399 and speak to the Trinity team.

Stamp Duty Calculator

Fill in the details below to estimate your stamp duty

The above calculator above is for general interest only and should not be relied upon

6/14
Reception Area Pt 1
Kitchen-Reception
External Part One
Garden Part One
Reception Area Pt 2
Kitchen-Reception
External Part Two
Kitchen Area
Bedroom One Part 1
Bedroom One Part 2
Bedroom Two Part 1
Bedroom Two Part 2
Bathroom
Reception Area Pt 3
Garden Part Two

Meet the Team

Our team at Winkworth Dulwich Estate Agents are here to support and advise our customers when they need it most. We understand that buying, selling, letting or renting can be daunting and often emotionally meaningful. We are there, when it matters, to make the journey as stress-free as possible.

See all team members

Got a question about this property?

This site is protected by reCAPTCHA and the Google Privacy Policy and Terms of Service apply.

More Properties like this

Under Offer

Marmora Road, East Dulwich, London, SE22

£825,000 Leasehold

Under Offer

Dunstans Road, East Dulwich, London, SE22

Offers in excess of £800,000 Share of Freehold

Under Offer

Lordship Lane, East Dulwich, London, SE22

Offers in excess of £800,000 Share of Freehold

Under Offer

Lordship Lane, East Dulwich, London, SE22

Offers in excess of £800,000 Share of Freehold

Beauval Road, East Dulwich, London, SE22

£800,000 Leasehold

Under Offer

Oakhurst Grove, East Dulwich, London, SE22

£799,950 Share of Freehold

Online Valuations Aren’t Worth The Paper They’re Printed On.

When online valuations don’t give you the whole picture - try Winkworth’s expert service. Get a free property appraisal. Accurate valuations from our local property experts. No obligation to list with Winkworth. Choose a time convenient for you with our online booking system.

Fill in your details and someone will be in touch soon:

You have provisionally booked a valuation for . Please confirm your details below

We don't have date info available for this property, but if you fill in your details below, someone will be in touch to arrange a date soon

Please fill in the required fields below marked with *

This site is protected by reCAPTCHA and the Google Privacy Policy and Terms of Service apply.