Skip to main content

MyWinkworth

Sold

Picture No. 30
Picture No. 19
Office
Gf Warehouse Area
Gf Canteen
Picture No. 16
Picture No. 17
Picture No. 18
Picture No. 20
Picture No. 21
Bathroom
Picture No. 26
Picture No. 33
6/14

Dalston Gardens, Stanmore, HA7

in Stanmore

£1,750,000 Freehold

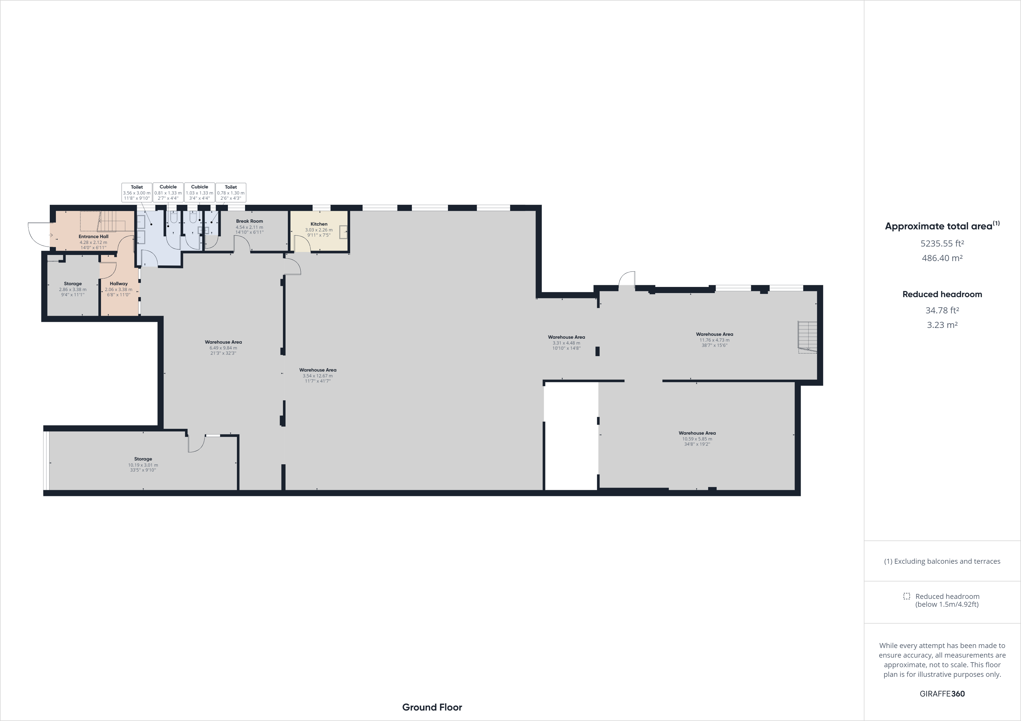
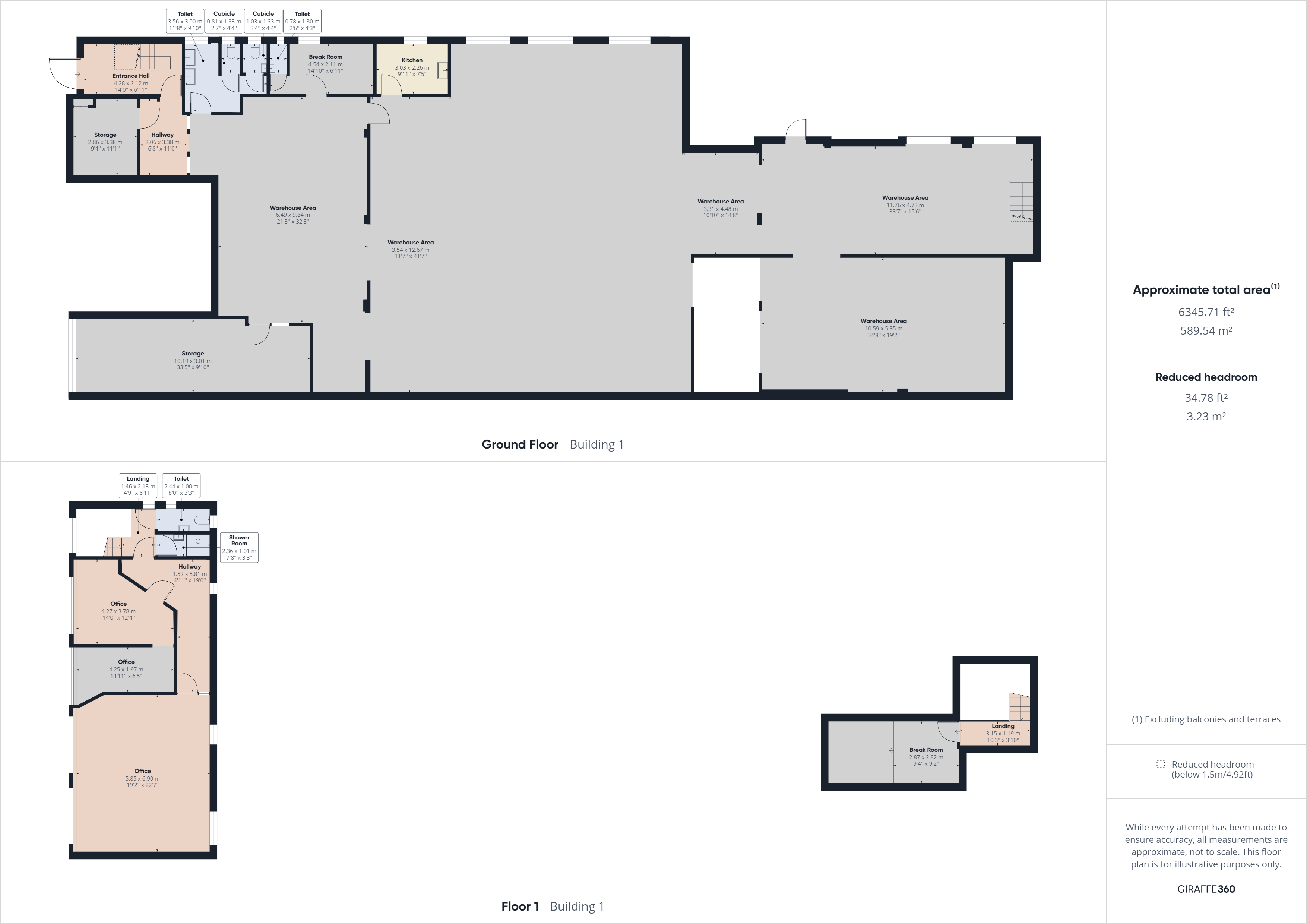
  • Floorplan
6/14

PICTURES AND VIDEOS

KEY INFORMATION

  • Tenure: Freehold

Description

Location: The property is situated on an industrial estate on Dalston Gardens, Stanmore - a prime location just off Honeypot Lane. Close by to both Canons Park & Queensbury Stations & local bus routes.
This ground floor warehouse unit offers a large open plan storage and distribution area measuring approx. 8,000 sq ft. Benefitting from easy front loading with full height roller shutter door and off street parking for 6-8 cars. Further parking is available to side of the premises. The warehouse space has an eaves height of approx 25 ft. Planning Permission for a First Floor rear Extension has been granted under Planning Application Number P/0480/21. This is an added benefit on this plot.
There is an additional driveway for loading / unloading / parking adjacent to the premises.
Introduction text for the mortgage calculator

Mortgage Calculator

Fill in the details below to estimate your monthly repayments:

Approximate monthly repayment:

For more information, please contact Winkworth's mortgage partner, Trinity Financial, on +44 (0)20 7267 9399 and speak to the Trinity team.

Stamp Duty Calculator

Fill in the details below to estimate your stamp duty

The above calculator above is for general interest only and should not be relied upon

6/14
Picture No. 30
Picture No. 19
Office
Gf Warehouse Area
Gf Canteen
Picture No. 16
Picture No. 17
Picture No. 18
Picture No. 20
Picture No. 21
Bathroom
Picture No. 26
Picture No. 33

Meet the Team

Our team here at Winkworth Kingsbury Estate Agents have over 25 years' experience in the Kingsbury area - an area we know like the back of our hands. Our aim is to simply offer a service beyond all others. Our way is the Winkworth way, “We See Things Differently"

See all team members

Got a question about this property?

This site is protected by reCAPTCHA and the Google Privacy Policy and Terms of Service apply.

More Properties like this

Virtual Tour

The Lodge, St Andrews Road, Kingsbury, London, NW9

£1,500,000 Freehold

Virtual Tour

Salmon Street, Kingsbury, London, NW9

£1,250,000 Freehold

Virtual Tour

Under Offer

Wembley Park Drive, Wembley, Middlesex, HA9

£1,200,000 Freehold

Under Offer

Queens Walk, Kingsbury, London, NW9

Offers in excess of £1,187,000 Freehold

Virtual Tour

New Instruction

Salmon Street, Kingsbury, London, NW9

£1,100,000 Freehold

Virtual Tour

Under Offer

Kenton Park Crescent, Harrow, Middlesex, HA3

Guide Price £950,000 Freehold

Online Valuations Aren’t Worth The Paper They’re Printed On.

When online valuations don’t give you the whole picture - try Winkworth’s expert service. Get a free property appraisal. Accurate valuations from our local property experts. No obligation to list with Winkworth. Choose a time convenient for you with our online booking system.

Fill in your details and someone will be in touch soon:

You have provisionally booked a valuation for . Please confirm your details below

We don't have date info available for this property, but if you fill in your details below, someone will be in touch to arrange a date soon

Please fill in the required fields below marked with *

This site is protected by reCAPTCHA and the Google Privacy Policy and Terms of Service apply.