Daleview Road, London, N15
1 bedroom maisonette
£450,000 Leasehold
- 1
- 1
- 1
-
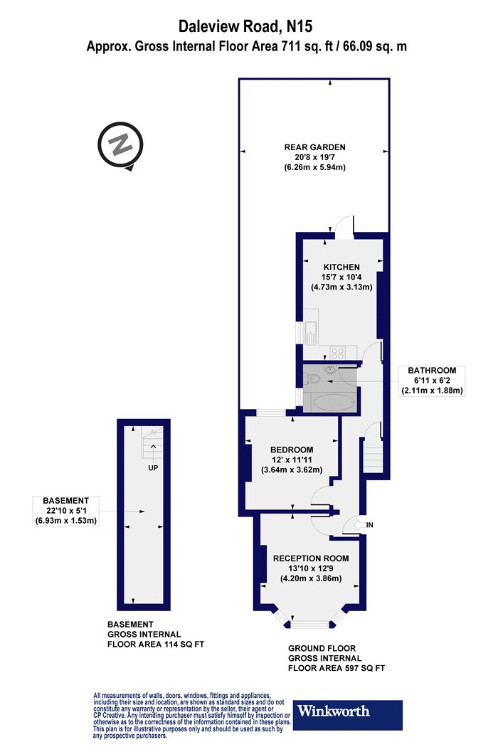
711 sq ft
66 sq m -
PICTURES AND VIDEOS











KEY INFORMATION
- Tenure: Leasehold
- Lease Length: 92 yrs left
- Ground rent: £200.00 per annum
Description
Manor House station on the Piccadilly line is a short 10-minute bus ride away, or a walk away along New River, offering scenic views of the local wildlife. Stamford Hill Station is conveniently located within a 7-minute walk, providing a regular service into Liverpool Street, alongside numerous bus options. Stoke Newington Church St is also a comfortable 15-minute stroll away. Furthermore, the area boasts an array of accessible green spaces, including Woodberry Wetlands, Clissold Park, Springfield Park, Hackney Marshes, and Finsbury Park, catering to outdoor enthusiasts. Safe cycling routes into the City and the West End add to the area's connectivity and appeal.
*Any associated charges including, but not limited to, service charge, ground rent and sinking funds outlined in the marketing material is an approximation calculated using information provided by and described by the client at the time of instruction. The actual cost may be subject to change and therefore we recommend all interested parties carry out their own enquiries.*
Marketed by
Winkworth Stoke Newington
Properties for sale in Stoke NewingtonArrange a Viewing
Fill in the form below to arrange your property viewing.
Mortgage Calculator
Fill in the details below to estimate your monthly repayments:
Approximate monthly repayment:
For more information, please contact Winkworth's mortgage partner, Trinity Financial, on +44 (0)20 7267 9399 and speak to the Trinity team.
Stamp Duty Calculator
Fill in the details below to estimate your stamp duty
The above calculator above is for general interest only and should not be relied upon