New Instruction
Hermitage Road, London, N4
2 bedroom flat/apartment in London
£650,000 Leasehold
- 2
- 2
- 1
-
1209 sq ft
112 sq m -
PICTURES AND VIDEOS












KEY FEATURES
- SPLIT LEVEL
- ROOF TERRACE
- BALCONY
- SEPARATE EAT-IN KITCHEN
- UTILITY ROOM
KEY INFORMATION
- Tenure: Leasehold
- Lease Length: 119 yrs left
- Ground rent: £200.00 per annum
- Council Tax Band: D
Description
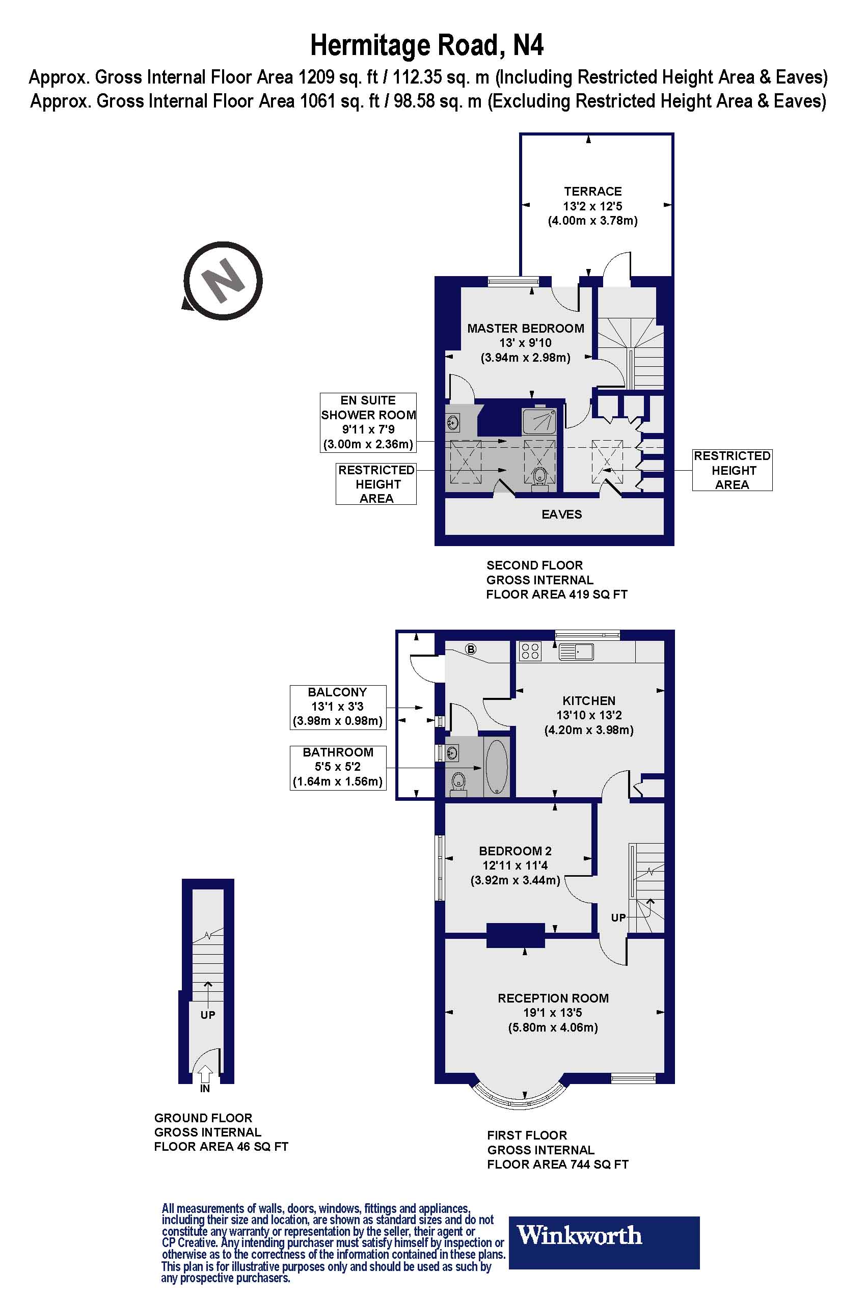
The first floor comprises a large principal bedroom with a beautifully finished en-suite shower room and stunning circa 161 sq ft roof terrace where one can enjoy quiet time outside.
Further benefits of this property include a long lease, an abundance of natural light and its position at the end of a terrace.
Hermitage Road is renowned for its welcoming local community and charming Victorian terraces, making it a desirable destination. The area boasts an expanding array of independent shops, cafes, and restaurants along Green Lanes, just a short stroll away. With excellent transport links at Manor House, Finsbury Park (Piccadilly and Victoria Lines), and Harringay Overground Station, along with abundant shopping and entertainment options, the neighbourhood offers both convenience and connectivity.
Nature enthusiasts will appreciate the nearby green spaces of Finsbury Park and Woodberry Wetlands, perfect for leisurely walks and outdoor activities. Families will find esteemed educational institutions like North Harringay and South Harringay Primary Schools within easy reach. Additionally, the vibrant Crouch End Broadway, with its eclectic mix of independent stores, cinemas, coffee shops, and diverse dining options, is just a short distance away.
*Any associated charges including, but not limited to, service charge, ground rent and sinking funds outlined in the marketing material is an approximation calculated using information provided by and described by the client at the time of instruction. The actual cost may be subject to change and therefore we recommend all interested parties carry out their own enquiries.*
Utilities
- Heating: Gas, Gas Central
Marketed by
Winkworth Stoke Newington
Properties for sale in Stoke NewingtonArrange a Viewing
Fill in the form below to arrange your property viewing.
Mortgage Calculator
Fill in the details below to estimate your monthly repayments:
Approximate monthly repayment:
For more information, please contact Winkworth's mortgage partner, Trinity Financial, on +44 (0)20 7267 9399 and speak to the Trinity team.
Stamp Duty Calculator
Fill in the details below to estimate your stamp duty
The above calculator above is for general interest only and should not be relied upon