New Instruction
Creffield Road, London, W5
1 bedroom flat/apartment in London
£399,950 Leasehold
- 1
- 1
- 1
PICTURES AND VIDEOS











KEY FEATURES
- Communal Garden
- Private Patio
- One Bedroom
- Office Space
- Separate Kitchen/Reception
KEY INFORMATION
- Tenure: Leasehold
- Lease Length: 85 yrs left
- Council Tax Band: D
Description
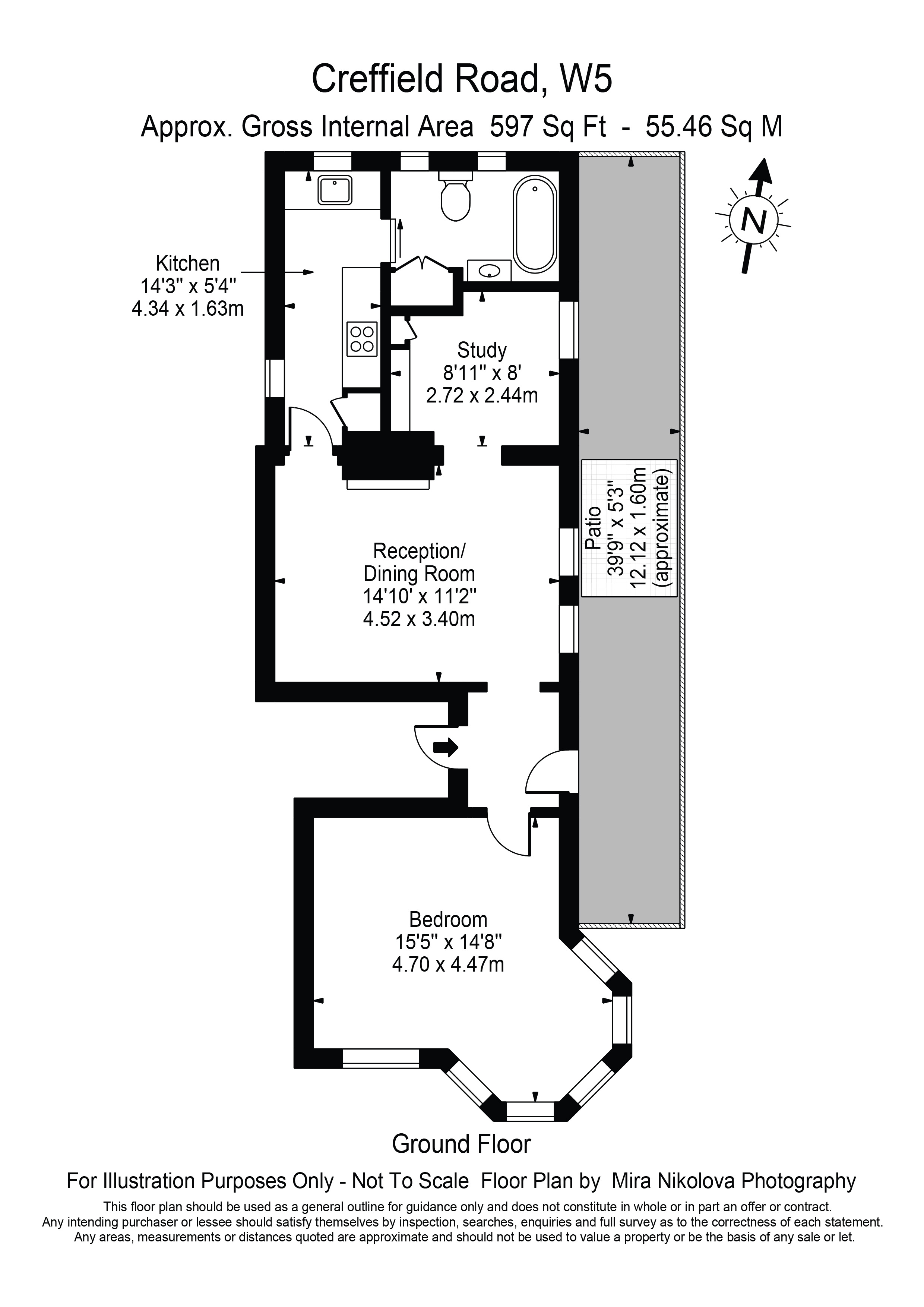
Set within a handsome Victorian building, this generously sized one bedroom ground floor flat offers just under 600 sq ft of well-appointed living space, blending period charm with modern convenience.
The property features a bright and spacious reception and dining room with high ceilings and ample natural light, ideal for both relaxing and entertaining. A separate fully fitted kitchen provides a practical and private space for cooking, while the additional study or office room offers the perfect setup for remote working or a quiet reading nook.
The double bedroom is well proportioned, and the bathroom includes a full sized bath with overhead shower. Step outside to enjoy your own private patio, a rare find in this type of property, with access to a well maintained communal rear garden, perfect for enjoying sunny days or outdoor dining.
Location
Excellent public transport:
Ealing Common Station (District & Piccadilly lines) is a 0.3 miles walk.
Ealing Broadway (Elizabeth Line, Central, District & National Rail) is about 0.8 miles on foot.
Good road links to the A406, A40 and M4.
Amenities
Shops, cafés and local restaurants are nearby, with a wider range available at Ealing Broadway. The area is walkable, safe, and well-served by buses.
Marketed by
Winkworth Ealing & Acton
Properties for sale in Ealing & ActonArrange a Viewing
Fill in the form below to arrange your property viewing.
Mortgage Calculator
Fill in the details below to estimate your monthly repayments:
Approximate monthly repayment:
For more information, please contact Winkworth's mortgage partner, Trinity Financial, on +44 (0)20 7267 9399 and speak to the Trinity team.
Stamp Duty Calculator
Fill in the details below to estimate your stamp duty
The above calculator above is for general interest only and should not be relied upon
Meet the Team
Our handpicked team are knowledgeable and professional and really have their finger on the pulse keeping up with local market trends 'People buy people' has always been the unwritten strapline in the office. This is why so many clients or indeed anyone contacting the office will have such a positive experience.
See all team members