Skip to main content

MyWinkworth

New Instruction

Picture No. 01
Picture No. 09
Picture No. 10
Picture No. 11
Picture No. 12
Picture No. 02
Picture No. 14
Picture No. 05
Picture No. 07
Picture No. 13
Picture No. 08
Picture No. 06
Picture No. 04
Picture No. 03
6/14

Cornwall Grove, London, W4

3 bedroom house in London

£1,295,000 Freehold

  • Bedrooms 3
  • Bathrooms 2
  • Reception rooms 1
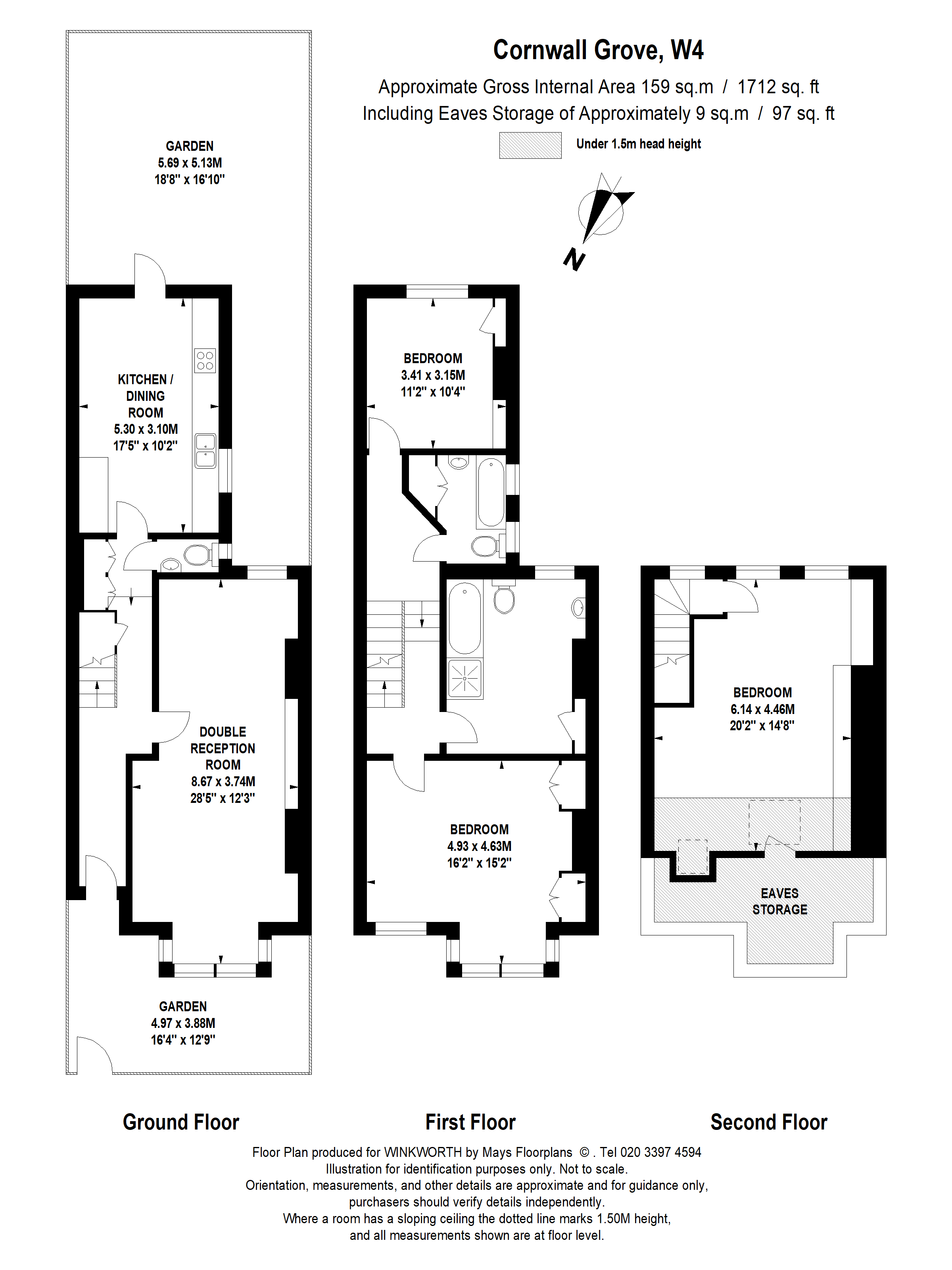
  • Floorplan

PICTURES AND VIDEOS

KEY INFORMATION

  • Tenure: Freehold
  • Council Tax Band: F
  • Local Authority: London Borough Of Hounslow

Description

A charming home offering versatile living accommodation but currently configured as two double bedrooms and two bathrooms plus a large office and scope to further extend on the ground floor subject to the usual consents. With a host of character features. No onward chain.

A stunning Victorian residence ideally positioned on the much sought after Cornwall Grove.
This splendid home offers verstatile living accommodation and has been lovingly extended into the loft/second floor to create a large double aspect office/bedroom three.
The first floor previously compromised three double bedrooms and the family bathroom. Bedroom two has been cleverly configured into a luxurious bathroom and could easily be converted back to a bedroom, it too is a good size double.
The large principle bedroom enjoys front aspect sash windows and a range of built-in wardrobes, bedroom two, a good double overlooks the rear garden.
The ground floor entrance hall is incredibly welcoming with decorative coving and a through reception room. The front aspect lounge enjoys a box bay window and an architecturally designed open and fully working feature fireplace, through to the rear reception area overlooking the side return to the rear garden. The kitchen/breakfast room features custom built Iroko wood cupboards and dresser with ample space for a large dining table with a stable door to the well-established South facing rear garden with side return. There is a downstairs WC and excellent storage.
The house retains a wealth of period character and charm and offers scope to further extend to the ground floor, subject to the usual planning consents. No Onward Chain.
Chiswick High Road boasts an eclectic array of shops and eateries and the area is well-placed for access into central London and Heathrow airport.
The smart commuter will benefit from being within close proximity to both Turnham Green Tube, Zone 3 and Stamford Brook Tube Station, Zone 2.

Marketed by

Winkworth Chiswick

Properties for sale in Chiswick

Arrange a Viewing

Fill in the form below to arrange your property viewing.

This site is protected by reCAPTCHA and the Google Privacy Policy and Terms of Service apply.
Introduction text for the mortgage calculator

Mortgage Calculator

Fill in the details below to estimate your monthly repayments:

Approximate monthly repayment:

For more information, please contact Winkworth's mortgage partner, Trinity Financial, on +44 (0)20 7267 9399 and speak to the Trinity team.

Stamp Duty Calculator

Fill in the details below to estimate your stamp duty

The above calculator above is for general interest only and should not be relied upon

6/14
Picture No. 01
Picture No. 09
Picture No. 10
Picture No. 11
Picture No. 12
Picture No. 02
Picture No. 14
Picture No. 05
Picture No. 07
Picture No. 13
Picture No. 08
Picture No. 06
Picture No. 04
Picture No. 03

Meet the Team

Our team are here to support and advise our customers when they need it most. We understand that buying, selling, letting or renting can be daunting and often emotionally meaningful. We are there, when it matters, to make the journey as stress-free as possible.

See all team members

Got a question about this property?

This site is protected by reCAPTCHA and the Google Privacy Policy and Terms of Service apply.

More Properties like this

Under Offer

Geraldine Road, London, W4

£950,000 Freehold

Under Offer

Alfred Close, London, W4

£850,000 Freehold

Under Offer

Grosvenor Road, Brentford, TW8

OIRO £815,000 Freehold

Under Offer

Alfred Close, London, W4

£800,000 Freehold

Under Offer

Water Lane, Richmond, TW9

£755,000 Freehold

Online Valuations Aren’t Worth The Paper They’re Printed On.

When online valuations don’t give you the whole picture - try Winkworth’s expert service. Get a free property appraisal. Accurate valuations from our local property experts. No obligation to list with Winkworth. Choose a time convenient for you with our online booking system.

Fill in your details and someone will be in touch soon:

You have provisionally booked a valuation for . Please confirm your details below

We don't have date info available for this property, but if you fill in your details below, someone will be in touch to arrange a date soon

Please fill in the required fields below marked with *

This site is protected by reCAPTCHA and the Google Privacy Policy and Terms of Service apply.