Under Offer
Cope Place, London, W8
2 bedroom house in London
£1,150,000 Freehold
- 2
- 1
- 1
PICTURES AND VIDEOS












KEY FEATURES
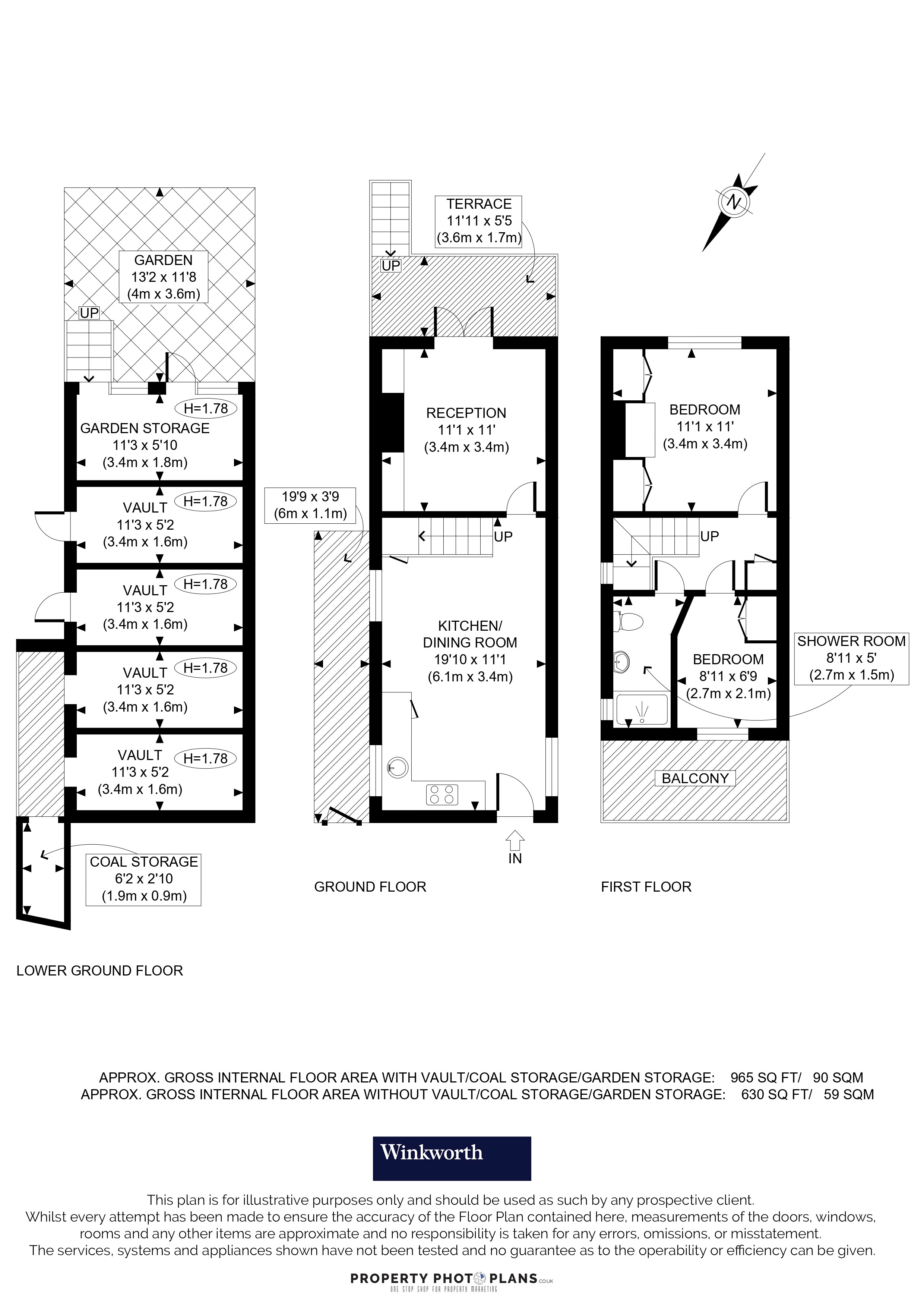
- Reception Room
- Kitchen/Dining Room
- Two Bedrooms
- Modern Shower Room
- Terrace
- Garden
- Garden Storage Room
- Four Large Vaults
KEY INFORMATION
- Tenure: Freehold
- Council Tax Band: F
- Local Authority: Royal Borough Of Kensington & Chelsea
Description
Cope Place is an attractive and quiet street situated just to the South of Kensington High Street with its many excellent shops, restaurants and transport facilities. The green open spaces of both Holland Park and Kensington Gardens are also within easy walking distance.
Mortgage Calculator
Fill in the details below to estimate your monthly repayments:
Approximate monthly repayment:
For more information, please contact Winkworth's mortgage partner, Trinity Financial, on +44 (0)20 7267 9399 and speak to the Trinity team.
Stamp Duty Calculator
Fill in the details below to estimate your stamp duty
The above calculator above is for general interest only and should not be relied upon
Meet the Team
There has been a Winkworth office on Kensington Church Street since the 1970's. The Director is Josh Grinling who has run the office since 1997, senior sales negotiator, Nick Lal has recently joined, Federico Young, the Lettings Director since 2011 and finally Dennis Lauer as the senior lettings negotiator since 2017.
See all team members