Coleshill Lane, Winchmore Hill, Amersham, Buckinghamshire, HP7
4 bedroom house in Winchmore Hill
£995,000 Freehold
- 4
- 2
- 3
PICTURES AND VIDEOS






KEY FEATURES
- Plot size circa 0.21 acres with existing three bedroom home
- 105ft South Facing Garden
- Planning permission granted for 4 bedroom home
- Popular village location
- Existing house EPC Rating E
- Existing house Council Tax band F
KEY INFORMATION
- Tenure: Freehold
Description
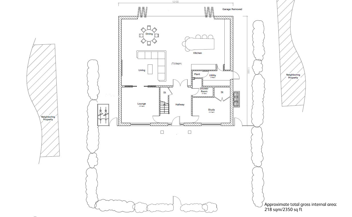
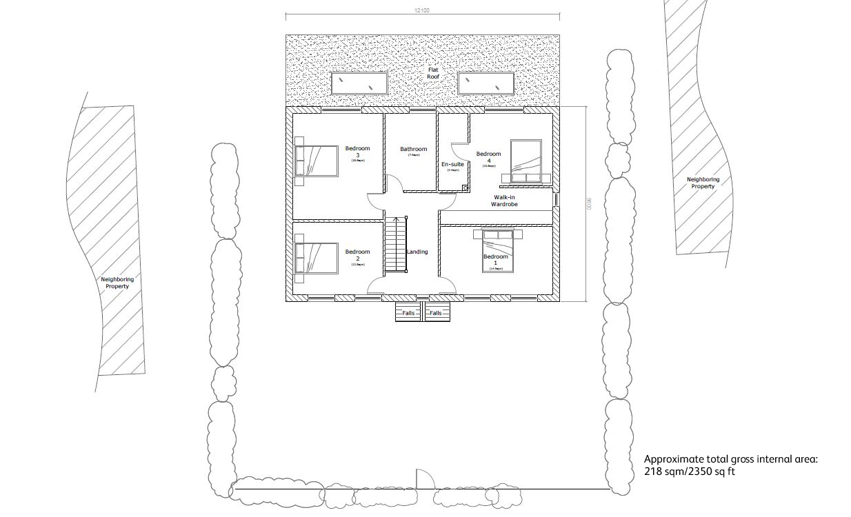
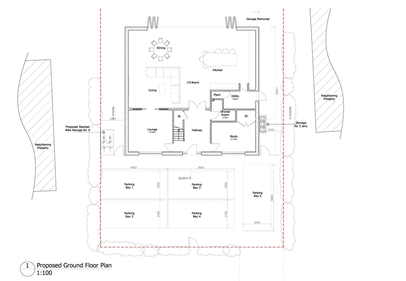
Planning permission has been granted to build a new-build four-bedroom home on this beautiful level plot with existing house on Coleshill Lane offering incoming purchasers the option to build their dream home either immediately or at a later stage. This new-build house would provide accommodation of approximately 2350sq ft comprising a spacious open plan kitchen/family room, lounge, study, utility room, four bedrooms and three bath/shower rooms. Full planning details can be found on the Buckinghamshire Council website, Chiltern and South Bucks division, planning reference PL/24/3808/FA
The existing double fronted house includes approximately 1,000 sq ft of accommodation with two reception rooms, kitchen, a conservatory style rear reception, shower room, two double bedrooms and additional reception room which would make a good study or third bedroom. The property is set on a plot of circa 0.2 acre. To the front, the garden is mainly laid to lawn with a central pathway and driveway leading to both the house and detached garage and to the rear, a large garden with mature hedging.
The property is located in a picturesque spot, just moments from the heart of Winchmore Hill village, close to both countryside walks and its popular local pub.
For a more comprehensive range of supermarkets, high street stores, leisure and practical amenities, along with direct rail access into London, both Beaconsfield and Amersham are easily accessible at approximately 3-4 miles away.
Buckinghamshire retains the selective grammar school system with schools in Beaconsfield and nearby High Wycombe both highly regarded.
Marketed by
Winkworth Beaconsfield
Properties for sale in BeaconsfieldArrange a Viewing
Fill in the form below to arrange your property viewing.
Mortgage Calculator
Fill in the details below to estimate your monthly repayments:
Approximate monthly repayment:
For more information, please contact Winkworth's mortgage partner, Trinity Financial, on +44 (0)20 7267 9399 and speak to the Trinity team.
Stamp Duty Calculator
Fill in the details below to estimate your stamp duty
The above calculator above is for general interest only and should not be relied upon
Meet the Team
Based in the heart of Beaconsfield Old Town, our team are on hand to help whether you're buying, selling or renting. While we favour the local approach, by working closely with our national and London teams alongside a dedicated Corporate Services, marketing and PR department, we will give you an unparalleled advantage, putting your home in front of the right buyers and tenants throughout London and the UK.
See all team members