Skip to main content

MyWinkworth

Picture No. 01
Picture No. 04
Picture No. 05
Picture No. 06
Picture No. 07
Picture No. 08
Picture No. 09
Picture No. 10
Picture No. 02
Picture No. 03
6/14

Cheviot Road, West Norwood, London, SE27

3 bedroom house in West Norwood

£850,000 Freehold

  • Bedrooms 3
  • Bathrooms 1
  • Reception rooms 2
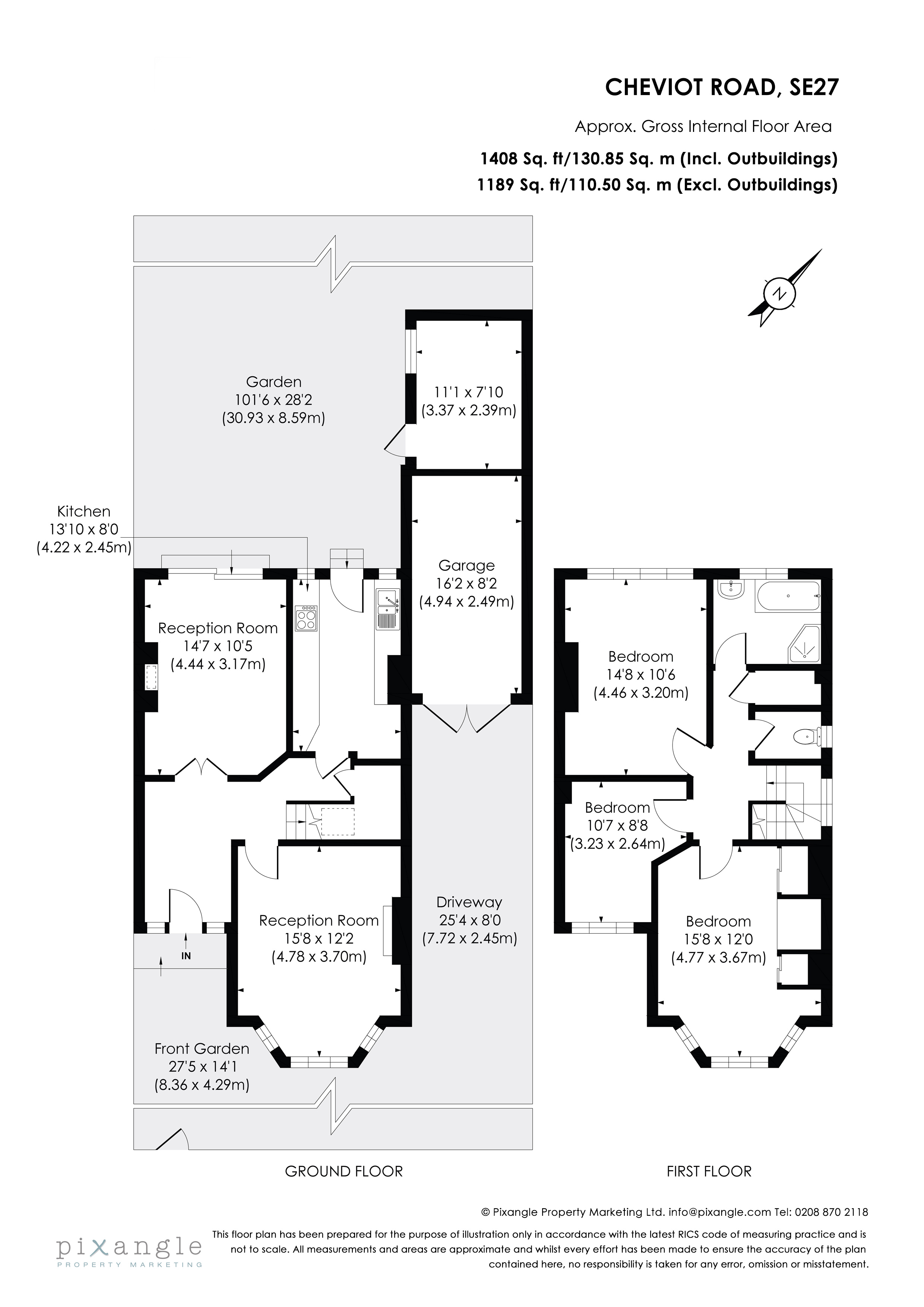
  • Floorplan

PICTURES AND VIDEOS

KEY FEATURES

  • Three bedrooms
  • Bathroom and separate W/C
  • Double reception room
  • Kitchen
  • Garage and shed
  • Private garden
  • Scope to extend with relevant planning permission

KEY INFORMATION

  • Tenure: Freehold

Description

A three-bedroom, semi-detached family home dating from the 1920s, ideally located on this popular residential road. The property offers well-proportioned accommodation comprising a double reception room, kitchen, garage, family bathroom and separate WC, along with a private rear garden and off-street parking.

Subject to the usual planning consents, there is excellent potential to extend into the loft to create an additional bedroom with en-suite, as well as to the rear to form a generous open-plan kitchen/living space. West Norwood station, providing frequent services to London Bridge and Victoria, is the nearest transport link, while the amenities of Norwood Road and Knights Hill are within easy reach.

Offered to the market chain free.

Council Tax Band - E

Marketed by

Winkworth West Norwood

Properties for sale in West Norwood

Arrange a Viewing

Fill in the form below to arrange your property viewing.

This site is protected by reCAPTCHA and the Google Privacy Policy and Terms of Service apply.
Introduction text for the mortgage calculator

Mortgage Calculator

Fill in the details below to estimate your monthly repayments:

Approximate monthly repayment:

For more information, please contact Winkworth's mortgage partner, Trinity Financial, on +44 (0)20 7267 9399 and speak to the Trinity team.

Stamp Duty Calculator

Fill in the details below to estimate your stamp duty

The above calculator above is for general interest only and should not be relied upon

6/14
Picture No. 01
Picture No. 04
Picture No. 05
Picture No. 06
Picture No. 07
Picture No. 08
Picture No. 09
Picture No. 10
Picture No. 02
Picture No. 03

Meet the Team

Our team at Winkworth West Norwood Estate Agents are here to support and advise our customers when they need it most. We understand that buying, selling, letting or renting can be daunting and often emotionally meaningful. We are there, when it matters, to make the journey as stress-free as possible.

See all team members

Got a question about this property?

This site is protected by reCAPTCHA and the Google Privacy Policy and Terms of Service apply.

More Properties like this

Under Offer

Broxholm Road, West Norwood, London, SE27

Offers in excess of £1,300,000 Freehold

Under Offer

Thornlaw Road, West Norwood, London, SE27

£1,200,000 Freehold

Under Offer

Thurlestone Road, West Norwood, London, SE27

£1,150,000 Freehold

Under Offer

Hamilton Road, West Norwood, London, SE27

£1,050,000 Freehold

Under Offer

Knollys Road, West Norwood, London, SW16

£900,000 Freehold

Under Offer

Tivoli Road, West Norwood, London, SE27

£800,000 Freehold

Online Valuations Aren’t Worth The Paper They’re Printed On.

When online valuations don’t give you the whole picture - try Winkworth’s expert service. Get a free property appraisal. Accurate valuations from our local property experts. No obligation to list with Winkworth. Choose a time convenient for you with our online booking system.

Fill in your details and someone will be in touch soon:

You have provisionally booked a valuation for . Please confirm your details below

We don't have date info available for this property, but if you fill in your details below, someone will be in touch to arrange a date soon

Please fill in the required fields below marked with *

This site is protected by reCAPTCHA and the Google Privacy Policy and Terms of Service apply.