Skip to main content

MyWinkworth

Sold

Picture No. 06
Picture No. 08
Picture No. 04
Picture No. 07
Picture No. 09
Picture No. 03
Picture No. 01
Picture No. 05
Picture No. 10
Picture No. 02
Picture No. 11
6/14

Chatterton Road, London, N4

3 bedroom flat/apartment in London

£850,000 Share of Freehold

  • Bedrooms 3
  • Bathrooms 2
  • Reception rooms 1
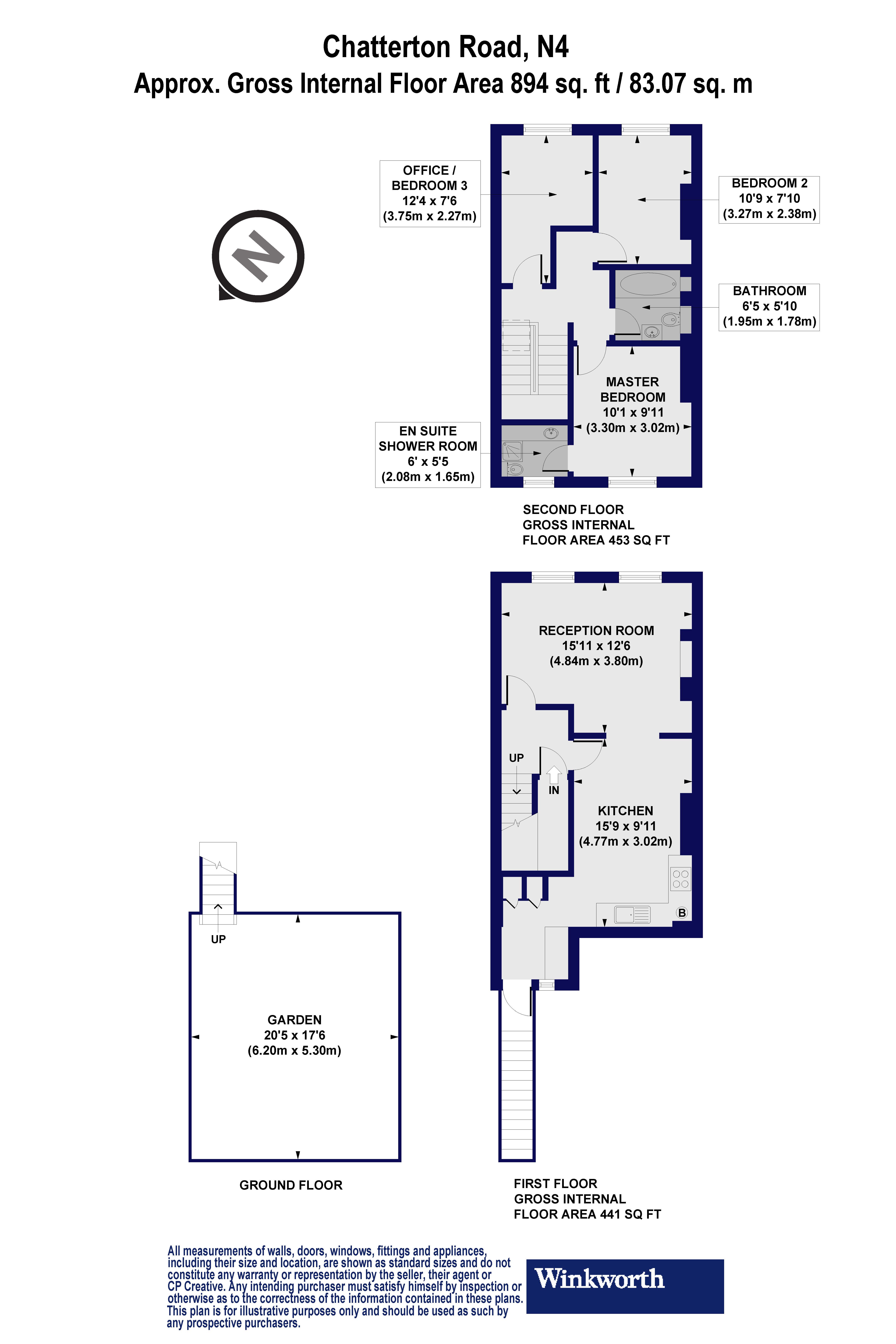
  • Dimensions 894 sq ft
    83 sq m
  • Floorplan

PICTURES AND VIDEOS

KEY INFORMATION

  • Tenure: Share of Freehold
  • Lease Length: 85 yrs left
  • Council Tax Band: D
  • Local Authority: Islington Council

Description

A sensational, three bedroom, two bathroom period finished to a very high standard in Highbury, N4. Standing close to 900 sqft, the property has been refurbished to an excellent standard throughout and offers wonderfully bright rooms throughout. Accommodation comprises of a spacious living room with south facing windows, opening directly out into a contemporary kitchen with ample dining space. A separate utility to the side leads down to a stunning, mature, private garden complete with raised decked area and artificial grass. Three good sized bedrooms occupy the top floor, the master located at the rear benefits from an en-suite bathroom, while the property is completed with a high specification family sized bathroom.
Chatterton Road is a tree-lined street in the Blackstock triangle which is renowned for its neighbourly feel. Furthermore, the property falls within the catchment area of several local schools rated “Outstanding” by Ofsted including the very popular Gillespie and Ambler Schools. The property is perfectly situated for an array of local amenities including independent shops, restaurants and coffee shops as well as being in easy reach of three local parks and Gillespie nature reserve. Upper Street is only a short distance away and transport links are some of the best around with Arsenal station providing the Piccadilly line and Finsbury Park offering overground services (including the Thameslink network serving the City/Moorgate and Gatwick Airport) and underground services on the Victoria/Piccadilly lines. Numerous bus routes offer effortless transport to the City and West End.

Service Charge = Adhoc

*Any associated charges including, but not limited to, service charge, ground rent and sinking funds outlined in the marketing material is an approximation calculated using information provided by and described by the client at the time of instruction. The actual cost may be subject to change and therefore we recommend all interested parties carry out their own enquiries.*

ACCESSIBILITY

  • Unsuitable For Wheelchairs

Utilities

  • Electricity Supply: Mains Supply
  • Water Supply: Mains Supply
  • Sewerage: Mains Supply
  • Heating: Gas Central

Rights & Restrictions

  • Listed Property: No

Risks

  • Flood Risk: There has not been flooding in the last 5 years
  • Flood Defence: No
Introduction text for the mortgage calculator

Mortgage Calculator

Fill in the details below to estimate your monthly repayments:

Approximate monthly repayment:

For more information, please contact Winkworth's mortgage partner, Trinity Financial, on +44 (0)20 7267 9399 and speak to the Trinity team.

Stamp Duty Calculator

Fill in the details below to estimate your stamp duty

The above calculator above is for general interest only and should not be relied upon

6/14
Picture No. 06
Picture No. 08
Picture No. 04
Picture No. 07
Picture No. 09
Picture No. 03
Picture No. 01
Picture No. 05
Picture No. 10
Picture No. 02
Picture No. 11

Meet the Team

From our office on Highbury Park, we pride ourselves on our unrivalled local knowledge. Many of the team here at Winkworth Highbury Estate Agents live locally and whether it's sales, lettings or property management, we're always striving to provide an unparalleled service and tailor it to your exacting needs.

See all team members

Got a question about this property?

This site is protected by reCAPTCHA and the Google Privacy Policy and Terms of Service apply.

More Properties like this

Under Offer

Petherton Road, London, N5

£1,000,000 Leasehold

Under Offer

Finsbury Park Road, London, N4

£950,000 Leasehold

Under Offer

Aberdeen Road, London, N5

Offers in excess of £895,000 Share of Freehold

Under Offer

Poets Road, London, N5

Offers in excess of £850,000 Leasehold

Highbury Park, London, N5

Guide Price £850,000 Share of Freehold

New Instruction

Highbury Park, Highbury, London, N5

Offers in excess of £825,000 Share of Freehold

Online Valuations Aren’t Worth The Paper They’re Printed On.

When online valuations don’t give you the whole picture - try Winkworth’s expert service. Get a free property appraisal. Accurate valuations from our local property experts. No obligation to list with Winkworth. Choose a time convenient for you with our online booking system.

Fill in your details and someone will be in touch soon:

You have provisionally booked a valuation for . Please confirm your details below

We don't have date info available for this property, but if you fill in your details below, someone will be in touch to arrange a date soon

Please fill in the required fields below marked with *

This site is protected by reCAPTCHA and the Google Privacy Policy and Terms of Service apply.