Skip to main content

MyWinkworth

Picture No. 04
Picture No. 11
Picture No. 03
Picture No. 02
Picture No. 05
Picture No. 09
Picture No. 07
Picture No. 08
Picture No. 06
Picture No. 13
Picture No. 10
Picture No. 12
6/14

Charlmont Road, London, SW17

2 bedroom flat/apartment in London

£475,000 Leasehold

  • Bedrooms 2
  • Bathrooms 1
  • Reception rooms 1
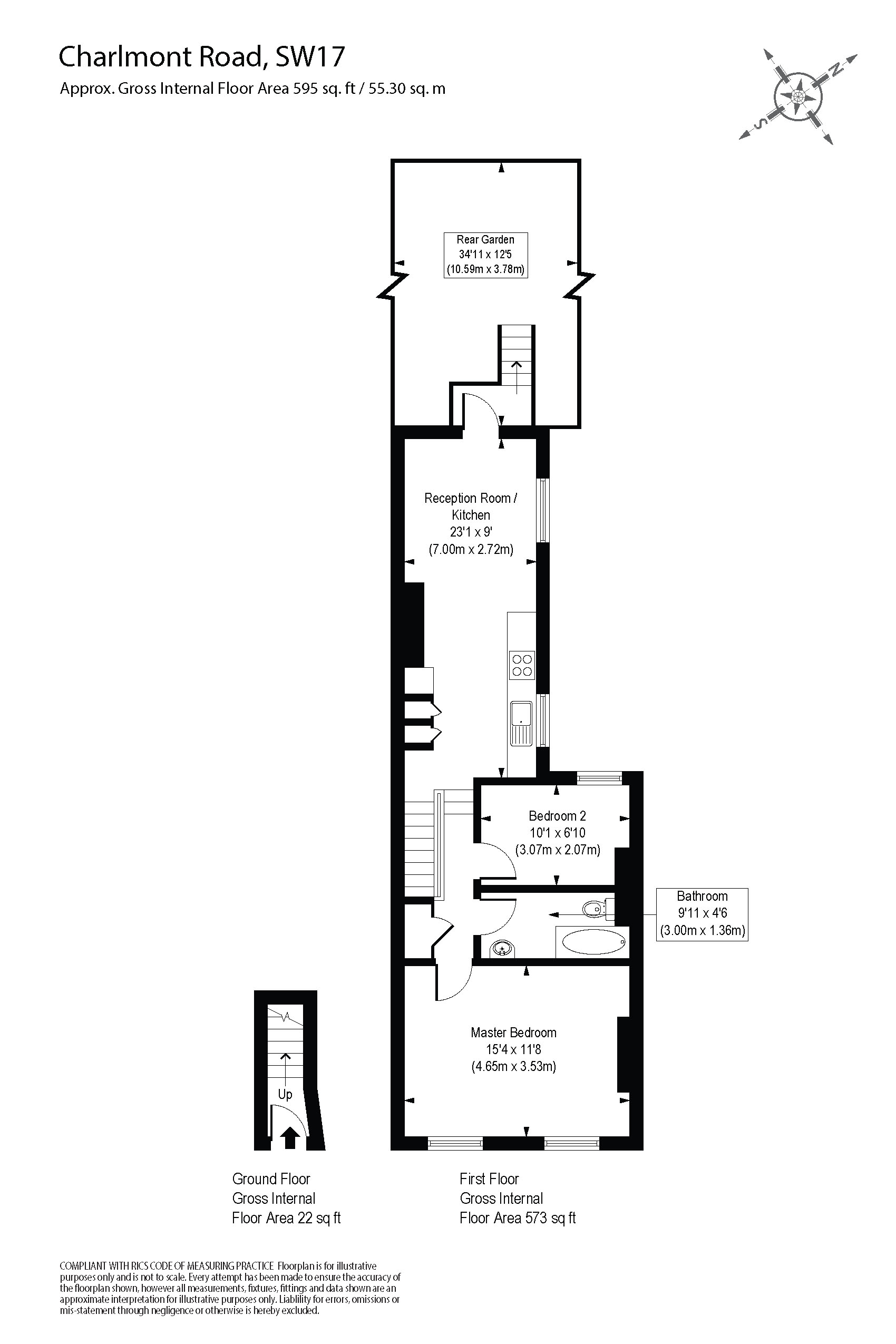
  • Dimensions 595 sq ft
    55 sq m
  • Floorplan

PICTURES AND VIDEOS

KEY FEATURES

  • Victorian Conversion Flat
  • First Floor Flat
  • Two Large Double Bedrooms
  • Beautifully Refurbished
  • Private Garden
  • 595 sqft
  • Chain Free
  • Close To Excellent Transport Links

KEY INFORMATION

  • Tenure: Leasehold
  • Lease Length: 96 yrs left

Description

A beautifully presented two double bedroom first-floor flat for sale with a wonderful private garden.

The accommodation comprises a beautifully light full width reception room to the front of the property. Two well proportioned double bedrooms with the master having generous built in wardrobes. A large family bathroom with stylish and chic fixtures, a fully fitted kitchen with stairs leading down to the garden. This stunning flat offers huge potential to convert the loft subject to the necessary consent and planning, with the freehold available for purchase as well.

Charlmont Road a popular tree-lined residential road in Tooting Broadway. All local amenities, bars and restaurants are within a short walk, with local bus routes as well as Tooting Broadway station (Northern line, Zone 3) only a small distance away, both allowing frequent access into and out of the City.

Marketed by

Winkworth Tooting

Properties for sale in Tooting

Arrange a Viewing

Fill in the form below to arrange your property viewing.

This site is protected by reCAPTCHA and the Google Privacy Policy and Terms of Service apply.
Introduction text for the mortgage calculator

Mortgage Calculator

Fill in the details below to estimate your monthly repayments:

Approximate monthly repayment:

For more information, please contact Winkworth's mortgage partner, Trinity Financial, on +44 (0)20 7267 9399 and speak to the Trinity team.

Stamp Duty Calculator

Fill in the details below to estimate your stamp duty

The above calculator above is for general interest only and should not be relied upon

6/14
Picture No. 04
Picture No. 11
Picture No. 03
Picture No. 02
Picture No. 05
Picture No. 09
Picture No. 07
Picture No. 08
Picture No. 06
Picture No. 13
Picture No. 10
Picture No. 12

Meet the Team

Our team at Winkworth Tooting Estate Agents are here to support and advise our customers when they need it most. We understand that buying, selling, letting or renting can be daunting and often emotionally meaningful. We are there, when it matters, to make the journey as stress-free as possible.

See all team members

Got a question about this property?

This site is protected by reCAPTCHA and the Google Privacy Policy and Terms of Service apply.

More Properties like this

Garratt Lane, Tooting, London, SW17

£795,000 Leasehold

Foulser Road, London, SW17

£725,000 Share of Freehold

Garratt Lane, Tooting, London, SW17

Offers in excess of £699,950 Leasehold

Garratt Lane, Tooting, London, SW17

Offers in excess of £650,000 Leasehold

Under Offer

Boundaries Road, London, SW12

£625,000 Leasehold

Trevelyan Road, London, SW17

£625,000 Share of Freehold

Online Valuations Aren’t Worth The Paper They’re Printed On.

When online valuations don’t give you the whole picture - try Winkworth’s expert service. Get a free property appraisal. Accurate valuations from our local property experts. No obligation to list with Winkworth. Choose a time convenient for you with our online booking system.

Fill in your details and someone will be in touch soon:

You have provisionally booked a valuation for . Please confirm your details below

We don't have date info available for this property, but if you fill in your details below, someone will be in touch to arrange a date soon

Please fill in the required fields below marked with *

This site is protected by reCAPTCHA and the Google Privacy Policy and Terms of Service apply.