Skip to main content

MyWinkworth

New Instruction

Reception
Reception
Reception
Kitchen
Kitchen/Hallway
Balcony
Balcony
Bedroom One
Bedroom One
Bedroom Two
Bathroom
External
External
External
External
6/14

Champion Hill, Camberwell, London, SE5

2 bedroom flat/apartment

Offers in excess of £475,000 Leasehold

  • Bedrooms 2
  • Bathrooms 1
  • Reception rooms 1
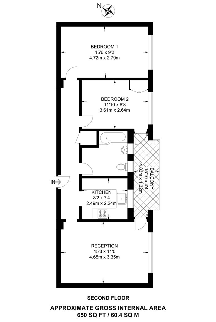
  • Floorplan

PICTURES AND VIDEOS

KEY FEATURES

  • Two-bedroom second floor flat
  • Bright and spacious reception room
  • Private balcony
  • South-facing aspect
  • Long lease (130y+)
  • Resident-run committee of management
  • Retains some original design features

KEY INFORMATION

  • Tenure: Leasehold
  • Lease Length: 136 yrs left
  • Service charge: £3500.00 per annum
  • Council Tax Band: C
  • Local Authority: London Borough Of Southwark

Description

This well-presented second floor two-bedroom flat offers bright, well-balanced accommodation throughout, complete with a private balcony.



The property features a generous reception room with ample space for both comfortable seating and a dining area, beautifully enhanced by natural light and a contemporary finish. A separate fitted kitchen provides excellent storage and worktop space, ideal for everyday living.

There are two well-proportioned bedrooms, including a particularly spacious principal bedroom, alongside a versatile second bedroom perfect as a guest room, nursery or home office. The bathroom is neatly arranged off the central hallway, creating a practical and functional layout.

A private balcony is accessed from the main living space, providing a pleasant outdoor spot to relax or entertain.

Situated within Ruskin House, SE5, the property is conveniently located for local amenities, transport links and nearby green open spaces, making it an ideal first-time purchase or investment opportunity.

Mobile phone coverage:
EE ( Good outdoor and variable in-home)
Three (Good outdoor and in-home)
O2 (Good outdoor and in-home)
Vodaphone (Good outdoor and variable in-home)

(Potential purchasers are advised to seek their own advice as to the suitability of the services and mobile phone coverage, the above is for guidance only.)

Available broadband:
Superfast Broadband: FTTC / Fibre to the Cabinet / Superfast / SoGEA
Networks in your area: Virgin media, Openreach
(Information supplied by Ofcom)

Flood Risk: Very low risk of surface water flooding / Very low risk river and sea flooding (Information supplied by gov.uk and purchasers are advised to seek their own legal advice)

Tenure: Leasehold

Local Council: Southwark / Tax Band: C
EPC Rating: D

Floor plan: Whilst every attempt has been made to ensure accuracy, all measurements are approximate and not to scale. The floor plan is for illustrative purposes only.

Marketed by

Winkworth Dulwich

Properties for sale in Dulwich

Arrange a Viewing

Fill in the form below to arrange your property viewing.

This site is protected by reCAPTCHA and the Google Privacy Policy and Terms of Service apply.
Introduction text for the mortgage calculator

Mortgage Calculator

Fill in the details below to estimate your monthly repayments:

Approximate monthly repayment:

For more information, please contact Winkworth's mortgage partner, Trinity Financial, on +44 (0)20 7267 9399 and speak to the Trinity team.

Stamp Duty Calculator

Fill in the details below to estimate your stamp duty

The above calculator above is for general interest only and should not be relied upon

6/14
Reception
Reception
Reception
Kitchen
Kitchen/Hallway
Balcony
Balcony
Bedroom One
Bedroom One
Bedroom Two
Bathroom
External
External
External
External

Meet the Team

Our team at Winkworth Dulwich Estate Agents are here to support and advise our customers when they need it most. We understand that buying, selling, letting or renting can be daunting and often emotionally meaningful. We are there, when it matters, to make the journey as stress-free as possible.

See all team members

Got a question about this property?

This site is protected by reCAPTCHA and the Google Privacy Policy and Terms of Service apply.

More Properties like this

Under Offer

Marmora Road, East Dulwich, London, SE22

£825,000 Leasehold

Under Offer

Dunstans Road, East Dulwich, London, SE22

Offers in excess of £800,000 Share of Freehold

Under Offer

Lordship Lane, East Dulwich, London, SE22

Offers in excess of £800,000 Share of Freehold

Lordship Lane, East Dulwich, London, SE22

Offers in excess of £800,000 Share of Freehold

Under Offer

Oakhurst Grove, East Dulwich, London, SE22

£799,950 Share of Freehold

New Instruction

East Dulwich Road, East Dulwich, London, SE22

£750,000 Share of Freehold

Online Valuations Aren’t Worth The Paper They’re Printed On.

When online valuations don’t give you the whole picture - try Winkworth’s expert service. Get a free property appraisal. Accurate valuations from our local property experts. No obligation to list with Winkworth. Choose a time convenient for you with our online booking system.

Fill in your details and someone will be in touch soon:

You have provisionally booked a valuation for . Please confirm your details below

We don't have date info available for this property, but if you fill in your details below, someone will be in touch to arrange a date soon

Please fill in the required fields below marked with *

This site is protected by reCAPTCHA and the Google Privacy Policy and Terms of Service apply.