Skip to main content

MyWinkworth

Picture No. 04
Picture No. 10
Picture No. 07
Picture No. 05
Picture No. 08
Picture No. 06
Picture No. 03
Picture No. 01
Picture No. 02
Picture No. 09
6/14

Bloemfontein Road, London, W12

4 bedroom house in London

£1,150,000 Freehold

  • Bedrooms 4
  • Bathrooms 2
  • Reception rooms 2
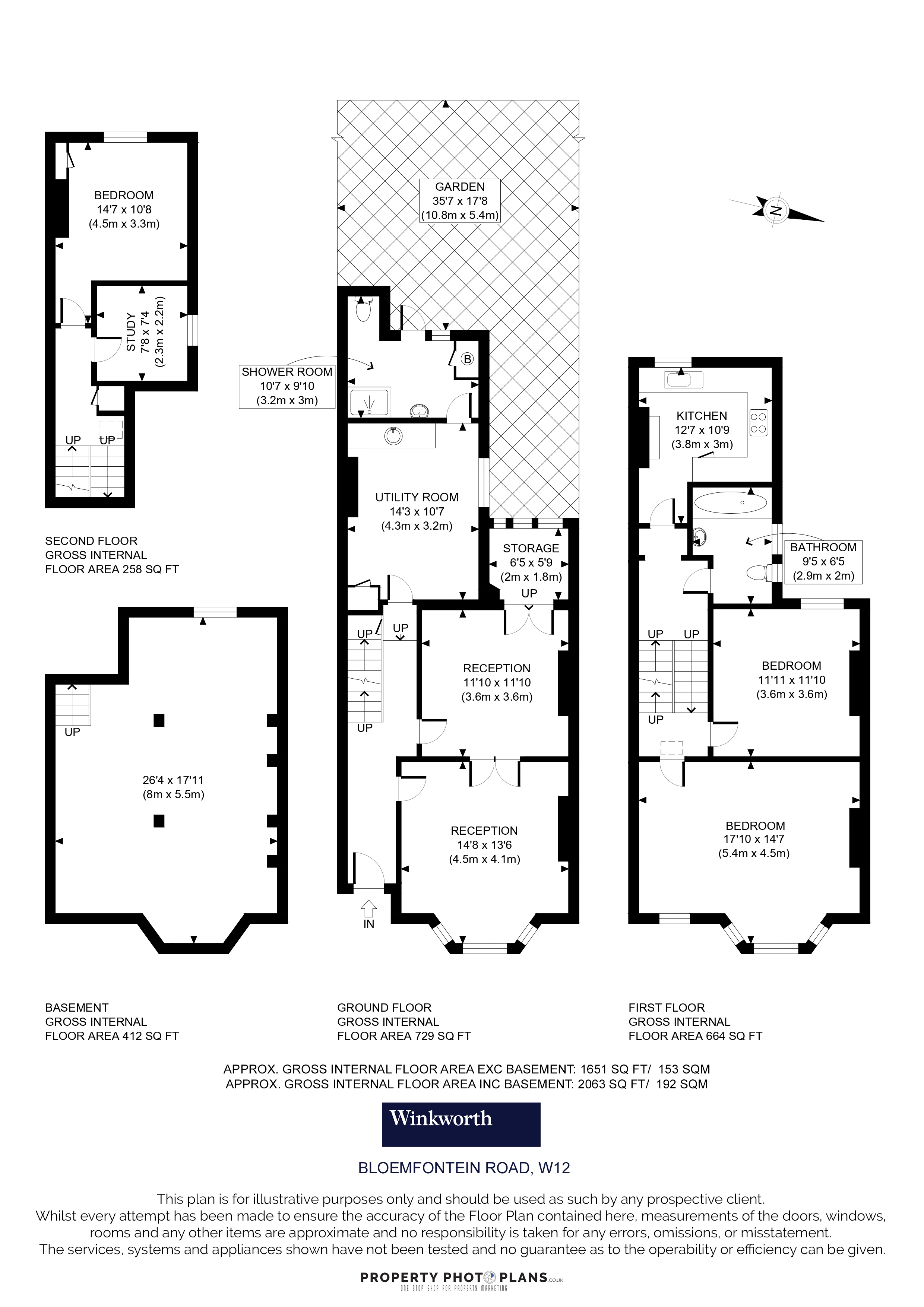
  • Floorplan

PICTURES AND VIDEOS

KEY FEATURES

  • 2 Reception Rooms
  • Kitchen
  • 3 Bedrooms
  • Bathroom
  • Shower Room
  • Utility Room
  • Study
  • Basement
  • Garden
  • 2063 Sq Ft / 192 Sq M
  • Council Tax Band G
  • EPC Rating Band C

KEY INFORMATION

  • Tenure: Freehold
  • Council Tax Band: G
  • Local Authority: Hammersmith & Fulham

Description

A substantial mid-terrace Victorian house, with scope for further extension and improvement.

The house offers accommodation comprising entrance hall, two reception rooms, utility room and bathroom on the ground floor, kitchen, bathroom and two bedrooms on the first floor and further bedroom and study on the second floor. The house offers huge potential for a buyer to extend in to both the loft space and side return, subject to the usual necessary consents, whilst further benefitting from a large cellar and west facing rear garden.

Location

Bloemfontein Road is close to Shepherd's Bush Green, Westfield London shopping centre, an abundance of independent shops, restaurants and an internationally famous music venue, as well as outstanding transport links. A variety of highly regarded schools in both state and private sectors are also close by, whilst public transport is second to none, with numerous bus routes, Underground and London Overground stations within easy reach.

Marketed by

Winkworth Shepherds Bush & Acton

Properties for sale in Shepherds Bush & Acton

Arrange a Viewing

Fill in the form below to arrange your property viewing.

This site is protected by reCAPTCHA and the Google Privacy Policy and Terms of Service apply.
Introduction text for the mortgage calculator

Mortgage Calculator

Fill in the details below to estimate your monthly repayments:

Approximate monthly repayment:

For more information, please contact Winkworth's mortgage partner, Trinity Financial, on +44 (0)20 7267 9399 and speak to the Trinity team.

Stamp Duty Calculator

Fill in the details below to estimate your stamp duty

The above calculator above is for general interest only and should not be relied upon

6/14
Picture No. 04
Picture No. 10
Picture No. 07
Picture No. 05
Picture No. 08
Picture No. 06
Picture No. 03
Picture No. 01
Picture No. 02
Picture No. 09

Meet the Team

At Winkworth Shepherds Bush Estate Agents, we pride ourselves on offering high standards and a personal service. As the longest serving agent in W12, we've been matching people with homes for over 30 years from our prominent position on Uxbridge Road. We love our area and between us, our close-knit team of 15 has over 120 years combined experience, so you'll be in safe hands.

See all team members

Got a question about this property?

This site is protected by reCAPTCHA and the Google Privacy Policy and Terms of Service apply.

More Properties like this

Alexandra Mansions, 75 Stanlake Road, Shepherds Bush, London, W12

£3,100,000 Freehold

Warbeck Road, London, W12

£2,250,000 Freehold

Under Offer

Arminger Road, London, W12

£1,675,000 Freehold

Friars Place Lane, London, W3

£1,500,000 Freehold

Ingersoll Road, London, W12

£1,425,000 Freehold

Under Offer

Thornfield Road, Shepherds Bush, London, W12

£1,295,000 Freehold

Online Valuations Aren’t Worth The Paper They’re Printed On.

When online valuations don’t give you the whole picture - try Winkworth’s expert service. Get a free property appraisal. Accurate valuations from our local property experts. No obligation to list with Winkworth. Choose a time convenient for you with our online booking system.

Fill in your details and someone will be in touch soon:

You have provisionally booked a valuation for . Please confirm your details below

We don't have date info available for this property, but if you fill in your details below, someone will be in touch to arrange a date soon

Please fill in the required fields below marked with *

This site is protected by reCAPTCHA and the Google Privacy Policy and Terms of Service apply.