Skip to main content

MyWinkworth

New Instruction

Front
Kitchen/Diner
Lounge
Bathroom
Rear
Driveway
Kitcehn/Diner
Garden Room
Bedroom 2
Lounge
Bedroom 1
Hall
Bedroom 1
Bedroom 3
Garden Room
Rear
Garden
Front
6/14

Blackheath, Wenhaston, Halesworth, Suffolk, IP19

3 bedroom bungalow in Wenhaston

Offers in excess of £500,000 Freehold

  • Bedrooms 3
  • Bathrooms 2
  • Reception rooms 2
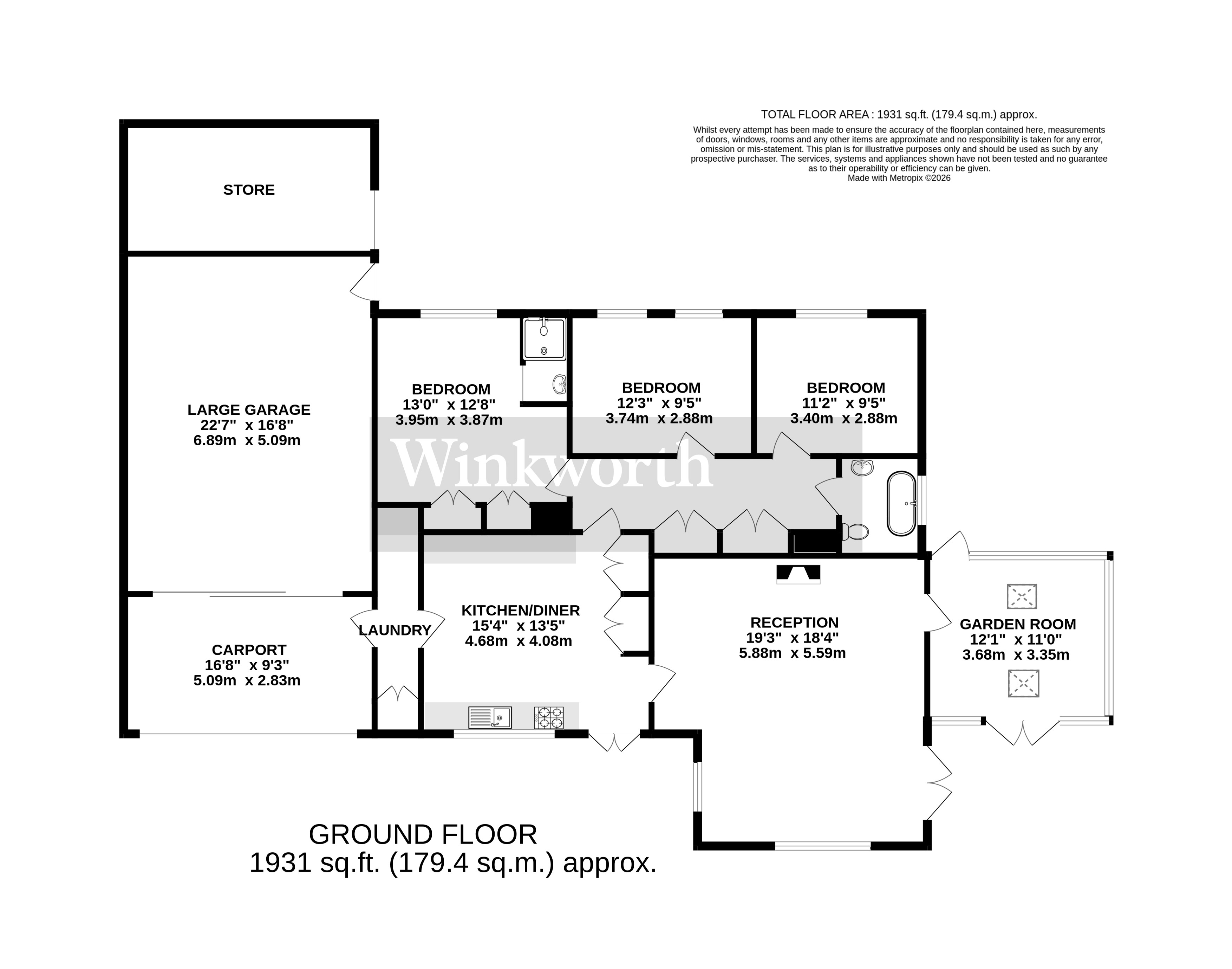
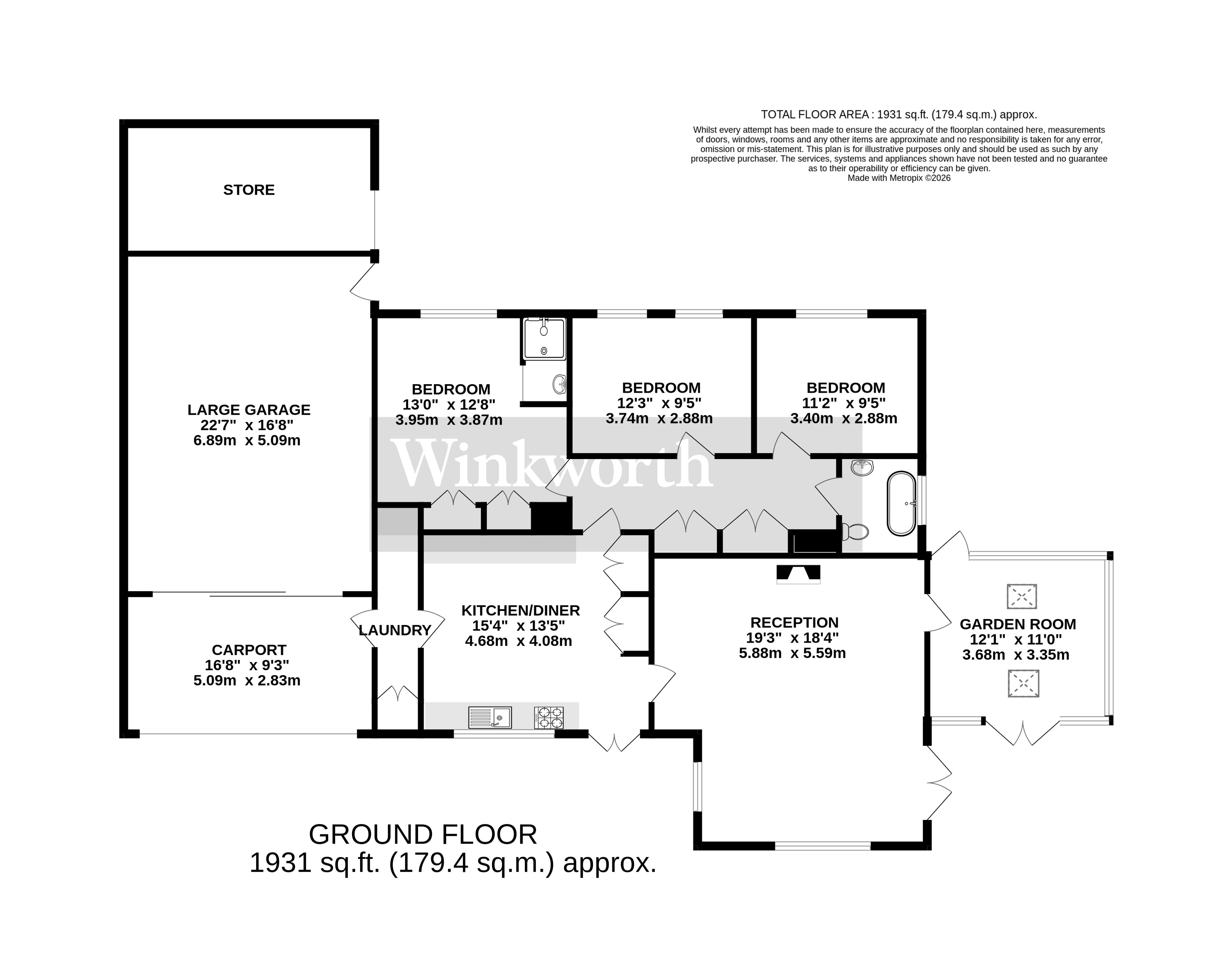
  • Floorplan

PICTURES AND VIDEOS

KEY FEATURES

  • Detached bungalow set on a private road in the heart of the village
  • Secluded position with generous driveway, carport and oversized garage
  • Spacious kitchen-dining room with characterful fitted units
  • Impressive 19-foot triple-aspect reception room with log burner
  • Garden room with doors opening front and rear
  • Three well-proportioned bedrooms
  • Principal bedroom with built-in wardrobes and en-suite shower room
  • Stylish family bathroom with roll-top bath
  • • Walking distance to village pub, community amenities and countryside walks

KEY INFORMATION

  • Tenure: Freehold
  • Council Tax Band: E

Description

Approached via a generous driveway providing extensive off-road parking, the property immediately conveys a feeling of ease and practicality, with access to both a carport and an oversized garage.

Entry is gained through a welcoming lobby that also serves as a useful utility space, ideal for modern day living. The accommodation unfolds into a spacious kitchen-dining room, fitted with a range of characterful orange and yellow-fronted base and eye-level units, complemented by an inset stainless steel oven and hob.

This sociable space flows naturally into the principal reception room, an impressive room extending to approximately 19 feet in length, flooded with natural light from its triple aspect.

Double doors open directly onto the garden, while a further door leads through to the garden room. A cast-iron log burner forms a warm and inviting focal point, making this an ideal space for both entertaining and quiet evenings in.

The garden room itself enjoys views to both the front and rear, with doors opening at either end, creating a seamless connection between inside and out and offering a perfect retreat during the summer months.

All bedrooms are positioned to the rear of the property, enhancing privacy and tranquillity. The principal bedroom benefits from built-in wardrobes and a dedicated shower room, while the two further well-proportioned bedrooms are served by a beautifully refitted family bathroom featuring a roll-top bath, fully tiled walls, a close-coupled WC and wash hand basin.

The property is ideally placed for enjoying the village lifestyle, with the local pub within walking distance, direct access to a number of popular dog-walking routes, and a thriving community known for its active book clubs and welcoming atmosphere.

Additional Information:

Council Tax Band: E

Local Authority – East Suffolk Council

We have been advised that the property has the following services. Mains water, mains drainage, oil central heating and mains electricity.

Winkworth wishes to inform prospective buyers and tenants that these particulars are a guide and act as information only. All our details are given in good faith and believed to be correct at the time of printing, but they do not form part of an offer or contract. No Winkworth employee has authority to make or give any representation or warranty in relation to this property. All fixtures and fittings, whether fitted or not, are deemed removable by the vendor unless stated otherwise and room sizes are measured between internal wall surfaces, including furnishings. The services, systems and appliances have not been tested, and no guarantee as to their operability or efficiency can be given.

Marketed by

Winkworth Southwold

Properties for sale in Southwold

Arrange a Viewing

Fill in the form below to arrange your property viewing.

This site is protected by reCAPTCHA and the Google Privacy Policy and Terms of Service apply.
Introduction text for the mortgage calculator

Mortgage Calculator

Fill in the details below to estimate your monthly repayments:

Approximate monthly repayment:

For more information, please contact Winkworth's mortgage partner, Trinity Financial, on +44 (0)20 7267 9399 and speak to the Trinity team.

Stamp Duty Calculator

Fill in the details below to estimate your stamp duty

The above calculator above is for general interest only and should not be relied upon

6/14
Front
Kitchen/Diner
Lounge
Bathroom
Rear
Driveway
Kitcehn/Diner
Garden Room
Bedroom 2
Lounge
Bedroom 1
Hall
Bedroom 1
Bedroom 3
Garden Room
Rear
Garden
Front

Meet the Team

As the area's newest independent agent, we bring with us a combined 65 years of experience, and a love for what we do and the local community around us. Understanding the individual needs of our clients is paramount to who we are. Located in the heart of Southwold's High Street our prominent office can be seen by all the right people. Please come and talk to us about your property requirements, and get to know the team from the Winkworth Estate Agents in Southwold.

See all team members

Got a question about this property?

This site is protected by reCAPTCHA and the Google Privacy Policy and Terms of Service apply.

More Properties like this

New Instruction

Blackheath, Wenhaston, Halesworth, Suffolk, IP19

Offers in excess of £500,000 Freehold

Under Offer

Green Lane, Reydon, Southwold, Suffolk, IP18

Guide Price £475,000 Freehold

Jermyns Road, Reydon, Southwold, Suffolk, IP18

Offers in excess of £475,000 Freehold

Under Offer

Mendham, Harleston, Suffolk, IP20

Guide Price £425,000 Freehold

Under Offer

St. Margaret South Elmham, Harleston, Suffolk, IP20

Guide Price £425,000 Freehold

The Chestnuts, Wrentham, Beccles, Suffolk, NR34

Offers in excess of £400,000 Freehold

Online Valuations Aren’t Worth The Paper They’re Printed On.

When online valuations don’t give you the whole picture - try Winkworth’s expert service. Get a free property appraisal. Accurate valuations from our local property experts. No obligation to list with Winkworth. Choose a time convenient for you with our online booking system.

Fill in your details and someone will be in touch soon:

You have provisionally booked a valuation for . Please confirm your details below

We don't have date info available for this property, but if you fill in your details below, someone will be in touch to arrange a date soon

Please fill in the required fields below marked with *

This site is protected by reCAPTCHA and the Google Privacy Policy and Terms of Service apply.