Beltran Road, London, SW6
3 bedroom house in London
£1,500,000 Freehold
- 3
- 1
- 1
PICTURES AND VIDEOS











KEY INFORMATION
- Tenure: Freehold
- Council Tax Band: G
Description
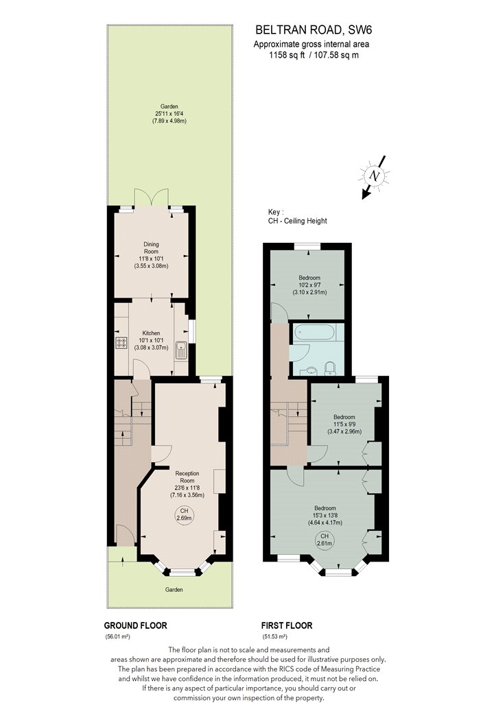
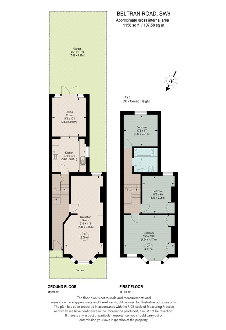
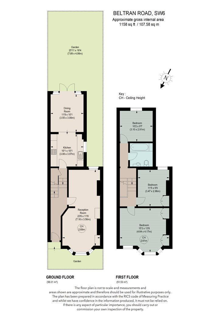
Upon entering the house, you are greeted by a welcoming hallway that leads through to a generous double reception room, featuring excellent natural light from the charming bay window at the front. This elegant space, with its high ceilings, offers a wonderful setting for both entertaining and everyday family living.
To the rear of the property lies a superb dining room, seamlessly connected to a well-proportioned kitchen. French doors open directly onto a private south facing garden, providing the ideal layout for al fresco dining and indoor-outdoor living.
Upstairs, the first floor is arranged to provide three well-sized bedrooms. The principal bedroom, located at the front of the house, enjoys the same bay window as the reception below and offers excellent proportions with built in wardrobes. A further two double bedrooms on this floor provide ample space for family or guests. A family bathroom is conveniently positioned to serve all rooms.
There is potential to extend into the loft and side return subject to planning consent. The house is being sold with no onward chain.
Beltran Road is a quiet residential street in the heart of Fulham, ideally situated within walking distance of Fulham Broadway and Parsons Green, both of which offer excellent transport links via the District Line. West Brompton and Earls Court are also easily accessible. An excellent array of local shops, restaurants, and cafés can be found on Fulham Road and North End Road, while the amenities of Fulham Broadway – including Waitrose and a cinema – are just moments away.
Marketed by
Winkworth Fulham & Parsons Green
Properties for sale in Fulham & Parsons GreenArrange a Viewing
Fill in the form below to arrange your property viewing.
Mortgage Calculator
Fill in the details below to estimate your monthly repayments:
Approximate monthly repayment:
For more information, please contact Winkworth's mortgage partner, Trinity Financial, on +44 (0)20 7267 9399 and speak to the Trinity team.
Stamp Duty Calculator
Fill in the details below to estimate your stamp duty
The above calculator above is for general interest only and should not be relied upon
Meet the Team
Our knowledgeable, friendly team are on hand to help whether you're buying, selling or renting. While we favour the local approach, by working closely with our London and national network alongside dedicated Corporate Services, marketing and PR departments, we give our clients an unparalleled advantage, matching homes with buyers and tenants throughout London and the UK. Please come and talk to us about your property requirements, and get to know the team from the Winkworth Estate Agents in Fulham.
See all team members