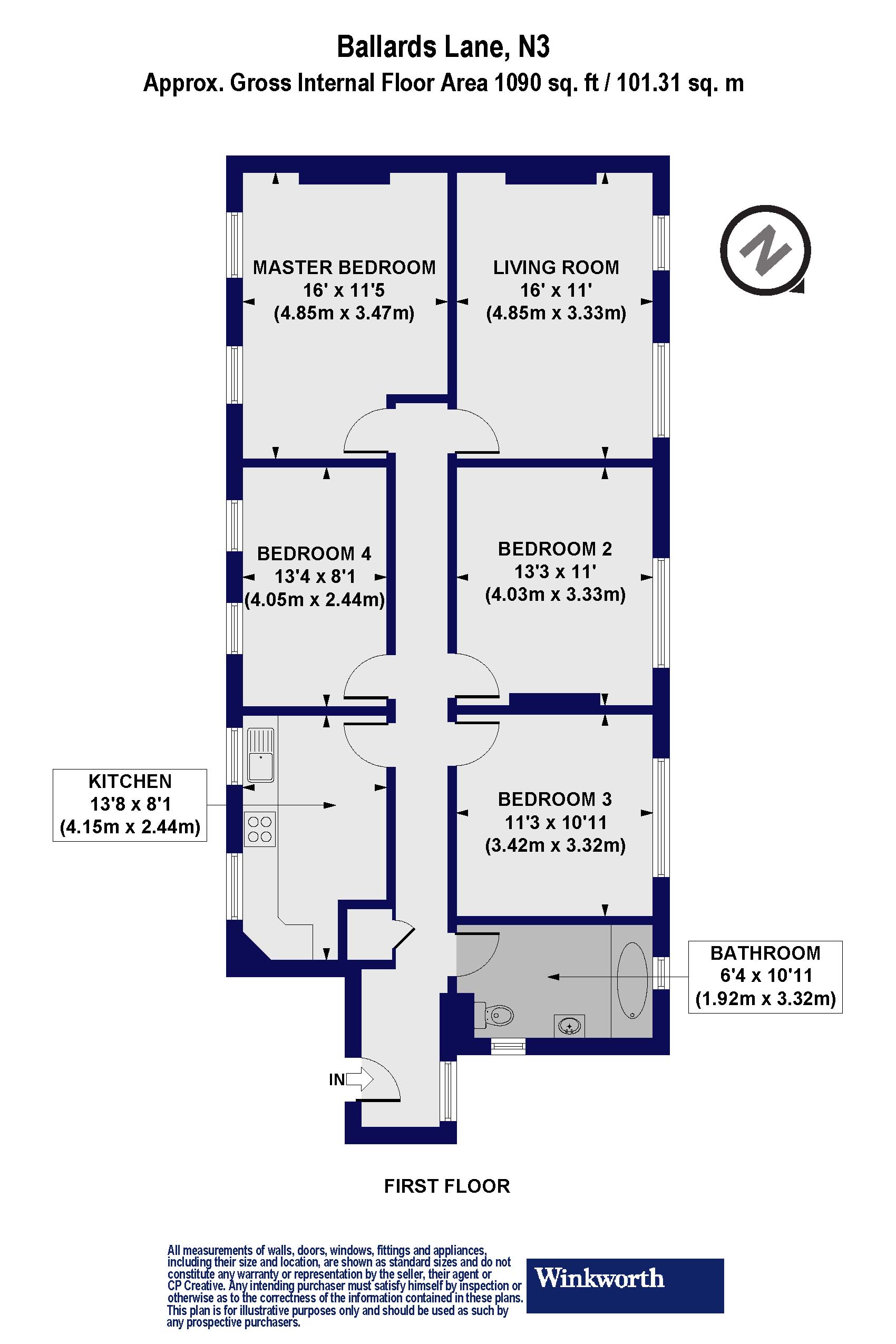
Ballards Lane, Finchley, London, N3
4 bedroom flat/apartment
£425,000 Leasehold
- 4
- 1
- 1
PICTURES AND VIDEOS














KEY FEATURES
- Ideal location for amenities & transport links
- First floor
- Over 1000 sq ft of living space
- Three / Four bedrooms
- Option of having two reception rooms
- Original features
- Chain free
KEY INFORMATION
- Tenure: Leasehold
Description
The spacious flat requires modernisation throughout, but it has the scope to be a wonderful home.
Further benefits include double glazing, parquet flooring and original features throughout.
Offered on a chain free basis.
An internal viewing is highly recommended.
Marketed by
Winkworth Finchley
Properties for sale in FinchleyArrange a Viewing
Fill in the form below to arrange your property viewing.
Mortgage Calculator
Fill in the details below to estimate your monthly repayments:
Approximate monthly repayment:
For more information, please contact Winkworth's mortgage partner, Trinity Financial, on +44 (0)20 7267 9399 and speak to the Trinity team.
Stamp Duty Calculator
Fill in the details below to estimate your stamp duty
The above calculator above is for general interest only and should not be relied upon
Meet the Team
Here at Winkworth Finchley Estate Agents, our local knowledge and expertise will give you the advantage. Thanks to 25 years serving the Finchley community, we know the area inside out and we always ensure our service is friendly, professional and personal from start to finish.
See all team members